Hallen
ID S0920Premium JLL
Provisionsfrei
Hallen - Stuttgart, Degerloch - S0920
Degerloch, 70597, Stuttgart, Baden-Württemberg
12 € / m²
- Fläche110 m²
- VerfügbarkeitSofort
- Objekt
- Ausstattung
- Lage und Verkehrsanbindung
- Grundrisse
- Exposé herunterladen
- Ihr Kontakt
- Anfrage senden
Objekt
Die gepflegte Gewerbeimmobilie befindet sich in bester Lage von Stuttgart-Degerloch mit direkter Anbindung an die Bundesstraße B27 und steht ab sofort zur Anmietung zur Verfügung.
Das Objekt besticht durch seinen attraktiven Mix aus Lager- und Büroflächen, der vielseitige und flexible Nutzungskonzepte ermöglicht.
Darüber hinaus wurde eine umfängliche Renovierung der Sanitäranlagen durchgeführt.
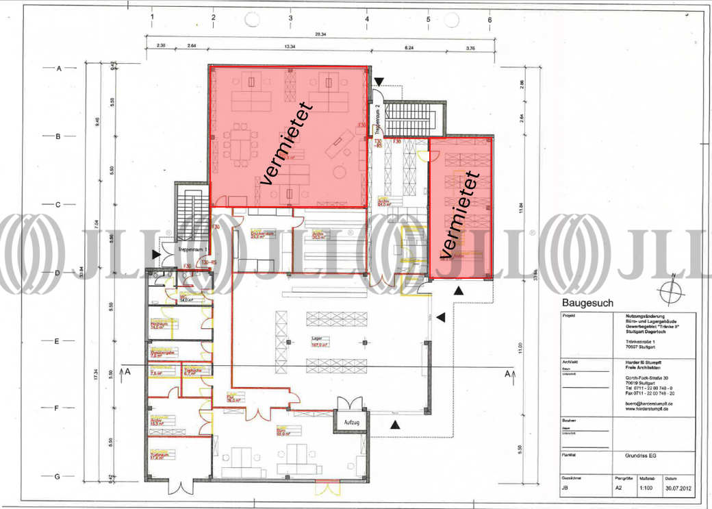
Mietfläche Erdgeschoss
Zur Vermietung steht im Erdgeschoss eine ca. 110 m² große Lagerfläche, die sich ideal für Lagerung oder leichte gewerbliche Tätigkeiten eignet
- Gesamtfläche: ca. 110 m²
- Aufteilung: Die Einheit ist in zwei separate, miteinander verbundene Bereiche von jeweils ca. 55 m² unterteilt
- Andienung: Der Zugang erfolgt über ein ebenerdiges Rolltor. Zudem kann die Fläche über ein Treppenhaus erschlossen werden
- Verfügbarkeit: Die Fläche ist ab sofort verfügbar
- Zusatzoptionen: Bei Bedarf können am Standort zusätzlich Büroflächen sowie Pkw-Stellplätze angemietet werden
Mietzins: 12,00€/m² (netto, kalt) zzgl. Nebenkosten
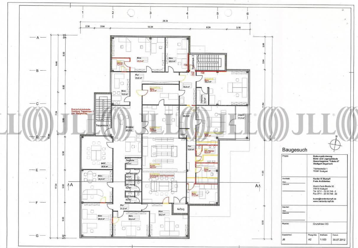
Mietfläche Obergeschoss:
Im Obergeschoss stehen Ihnen sanierte Büroflächen zur flexiblen Anmietung mit folgenden Mietkonditionen zur Verfügung:
- EUR 7,90/m² (netto, kalt) zzgl. Nebenkosten - bei Anmietung von mindestens ca. 280 m² Bürofläche (entspricht ca. 50 % der Gesamtmietfläche im OG)
- EUR 9,50/m² (netto, kalt) zzgl. Nebenkosten - bei Anmietung von mindestens 100 m² Bürofläche
- EUR 10,50/m² (netto, kalt) zzgl. Nebenkosten - bei Anmietung von mindestens 50 m² Bürofläche
Das Objekt besticht durch seinen attraktiven Mix aus Lager- und Büroflächen, der vielseitige und flexible Nutzungskonzepte ermöglicht.
Darüber hinaus wurde eine umfängliche Renovierung der Sanitäranlagen durchgeführt.
Mietfläche Erdgeschoss
Zur Vermietung steht im Erdgeschoss eine ca. 110 m² große Lagerfläche, die sich ideal für Lagerung oder leichte gewerbliche Tätigkeiten eignet
- Gesamtfläche: ca. 110 m²
- Aufteilung: Die Einheit ist in zwei separate, miteinander verbundene Bereiche von jeweils ca. 55 m² unterteilt
- Andienung: Der Zugang erfolgt über ein ebenerdiges Rolltor. Zudem kann die Fläche über ein Treppenhaus erschlossen werden
- Verfügbarkeit: Die Fläche ist ab sofort verfügbar
- Zusatzoptionen: Bei Bedarf können am Standort zusätzlich Büroflächen sowie Pkw-Stellplätze angemietet werden
Mietzins: 12,00€/m² (netto, kalt) zzgl. Nebenkosten
Mietfläche Obergeschoss:
Im Obergeschoss stehen Ihnen sanierte Büroflächen zur flexiblen Anmietung mit folgenden Mietkonditionen zur Verfügung:
- EUR 7,90/m² (netto, kalt) zzgl. Nebenkosten - bei Anmietung von mindestens ca. 280 m² Bürofläche (entspricht ca. 50 % der Gesamtmietfläche im OG)
- EUR 9,50/m² (netto, kalt) zzgl. Nebenkosten - bei Anmietung von mindestens 100 m² Bürofläche
- EUR 10,50/m² (netto, kalt) zzgl. Nebenkosten - bei Anmietung von mindestens 50 m² Bürofläche
Verfügbare Fläche
Lage und Verkehrsanbindung
Die Immobilie befindet sich in der Tränkestraße 1 im Stuttgarter Stadtbezirk Degerloch, einer etablierten Gewerbe- und Wohnlage im Süden der Landeshauptstadt. Der Standort zeichnet sich durch seine verkehrsgünstige Lage mit direkter Anbindung an die Bundesstraße B27 aus, die eine schnelle Verbindung zum Stuttgarter Stadtzentrum sowie zu den überregionalen Verkehrsachsen A8 und A81 gewährleistet. Degerloch profitiert von seiner erhöhten Lage auf den Fildern und bietet sowohl gewerblichen als auch privaten Nutzern eine attraktive Infrastruktur. Die Anbindung an den öffentlichen Personennahverkehr erfolgt über mehrere Buslinien sowie die nahegelegene Zahnradbahn, die eine direkte Verbindung in die Stuttgarter Innenstadt ermöglicht. Die Umgebung ist geprägt von einer Mischung aus Gewerbe, Dienstleistung und Wohnen, was für eine lebendige und wirtschaftlich stabile Nachbarschaft sorgt. Einzelhandels- und Versorgungseinrichtungen sowie gastronomische Angebote sind in unmittelbarer Nähe vorhanden und tragen zur Attraktivität des Standorts bei.
Ihr Kontakt

Florentin Layer
Ihr Kontakt













