Hallen
ID D2461Provisionsfrei
Aktualisiert
Hallen - Düsseldorf, Rath - D2461
Rath, 40472, Düsseldorf, Nordrhein-Westfalen
Kontaktieren Sie uns für den Preis
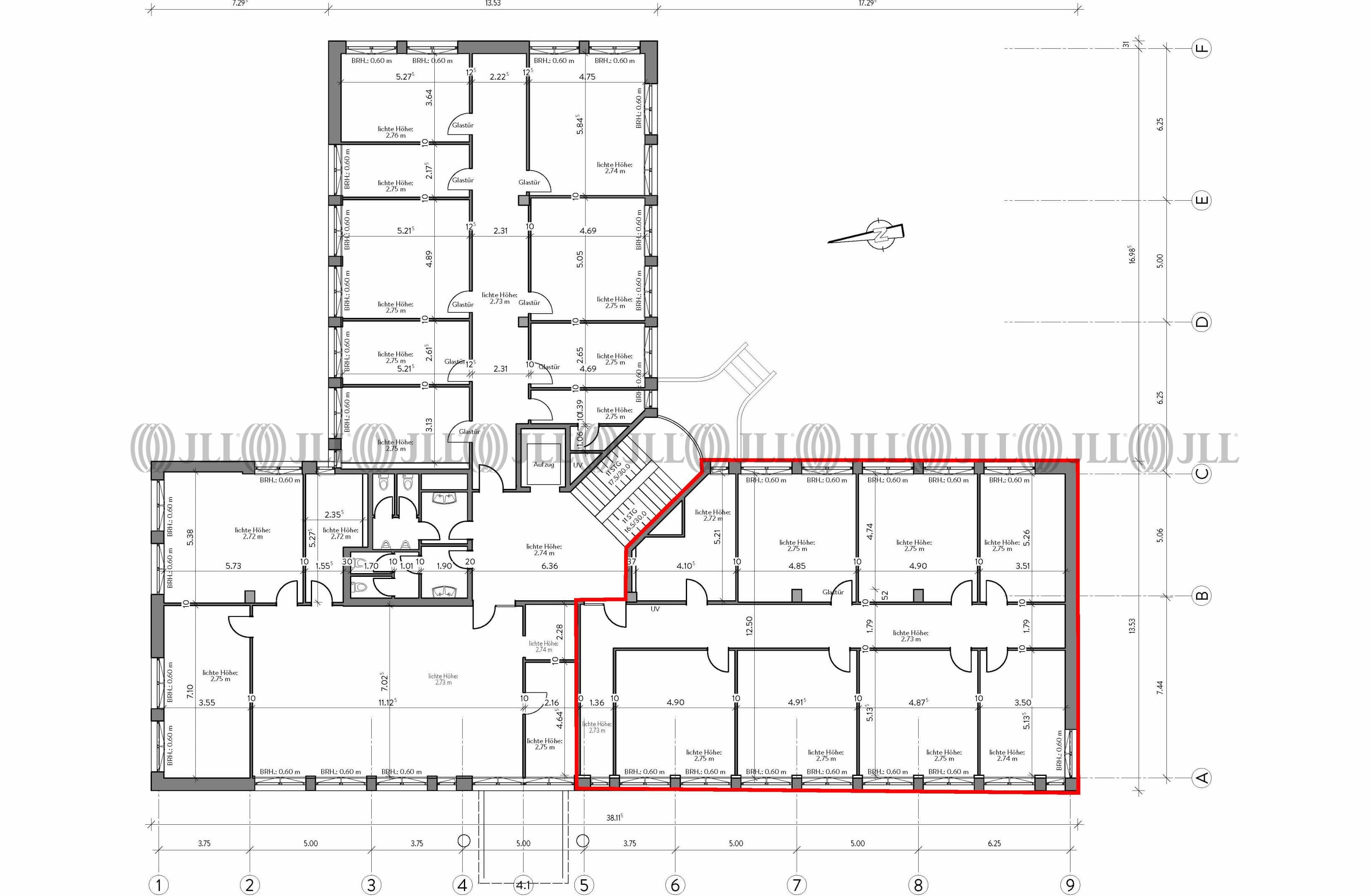
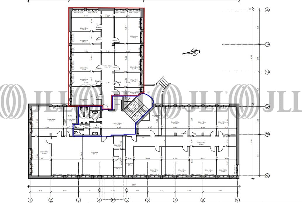
- Fläche896 m²
- VerfügbarkeitSofort
- Objekt
- Ausstattung
- Lage und Verkehrsanbindung
- Grundrisse
- Exposé herunterladen
- Ihr Kontakt
- Anfrage senden
Objekt
Im Wahler Park mit insgesamt mehr als 34.000 m² finden Mieter und Kunden ein ansprechendes Umfeld mit der Kombination aus hochwertigen Büroflächen sowie Lager und Servicebereichen.
Zertifizierungen
Energieausweis
Für diese Liegenschaft liegt ein Verbrauchsausweis vom 26.05.2020 vom Eigentümer/Vermieter vor. Der wesentliche Energieträger der Liegenschaft ist Erdgas schwer. Der Endenergieverbrauch Strom beträgt 28.00 kWh/(m²*a). Der Endenergieverbrauch Wärme beträgt 93.00 kWh/(m²*a).Verfügbare Fläche
Lage und Verkehrsanbindung
Das Bürogebäude liegt im nördlichen Stadtteil Rath. Die Nähe zum „Nördlichen Zubringer“ sorgt für eine perfekte Anbindung an das Autobahnnetz, sodass Flughafen und Messe schnell zu erreichen sind.
- Bus, Wittener Straße, Gehzeit: 1 min
- U-Bahn, Rath-S, Gehzeit: 4 min
- Straßenbahn/Tram, Rath-S, Gehzeit: 4 min
- S-Bahn, Rath-S, Gehzeit: 6 min
- Bundesautobahn, A 52, Fahrzeit: 6 min
- Bundesautobahn, A 44, Fahrzeit: 6 min
- Flughafen, Düsseldorf-International, Fahrzeit: 8 min
Ihr Kontakt

Janice Lehmann
Ihr Kontakt


