Hallen
ID B3247Provisionsfrei
Hallen - Erfurt - B3247
99092, Erfurt, Thüringen
Kontaktieren Sie uns für den Preis
- Fläche11.938 - 17.366 m²
- VerfügbarkeitAuf Anfrage
- Objekt
- Ausstattung
- Lage und Verkehrsanbindung
- Grundrisse
- Exposé herunterladen
- Ihr Kontakt
- Anfrage senden
Objekt
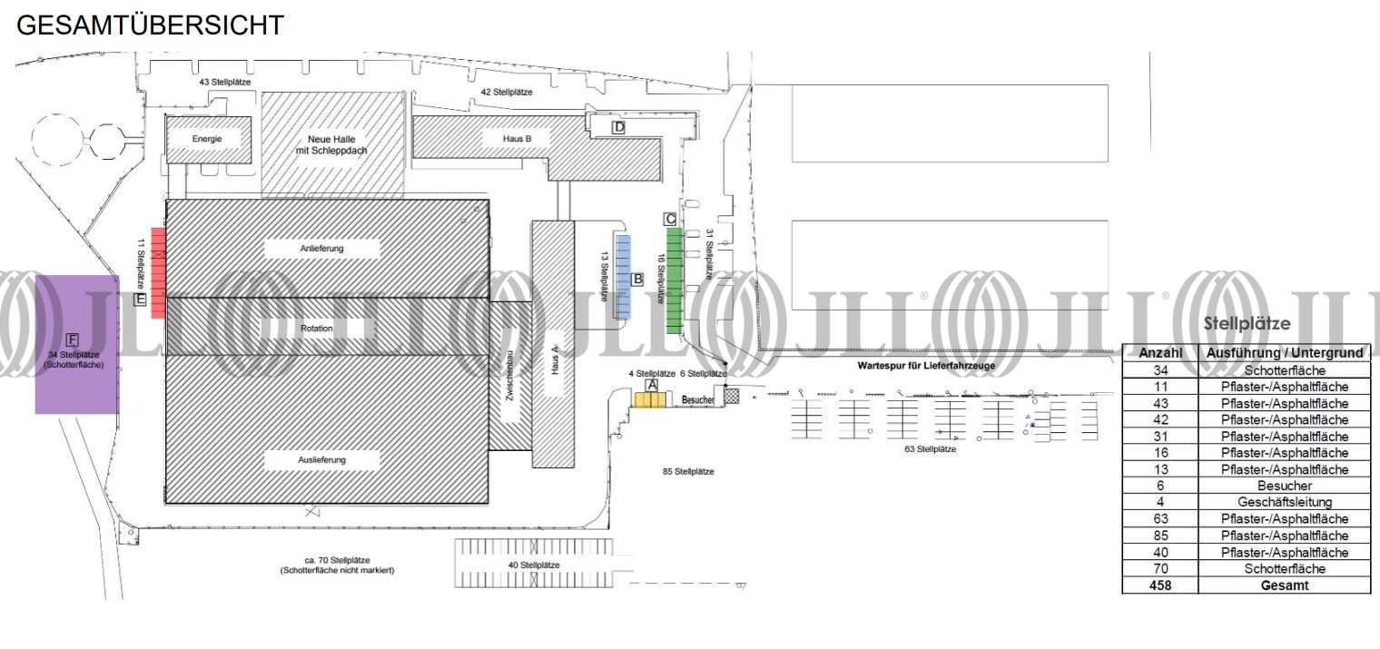
Der angebotene Gewerbekomplex ist das ehem. Druckzentrum der Thüringer Allgemeinen Zeitung. Auf einem rd. 72.000 m² großen Grundstück wurden einen Hallenkomplex sowie 2 große Bürohäuser sowie diverse Nebengebäude errichtet. Die Flächen hängen teilweise miteinander zusammen, können aber separat vermietet werden. Das Gelände ist eingezäunt. Innerhalb und außerhalb der Einzäunung befinden sich diverse Areale für Pkw-Stellplätze.
Die Infrastruktur des Areals ist umfassend und auf industrielle Anforderungen ausgelegt. Die Anlieferung zu den Hallen ist ebenerdig über diverse Rolltore und Sektionaltore, mit großzügigen Maßen von ca. 3 x 4,6 Meter bis ca. 16 x 18 Meter, flexibel möglich.
Die Energieversorgung ist durch leistungsstarke Industrie-Stromanschlüsse sowie eine redundante Versorgung über zwei separate Umspannwerke zuverlässig gesichert. Ein massiv gebautes Energiegebäude mit fünf Trafos dient als zentraler Standort der Energieversorgung und unterstreicht die technische Autonomie des Areals. Für die Mitarbeiter sind WCs und Sanitäreinrichtungen an mehreren Stellen im gesamten Produktionsbereich vorhanden. Ergänzend dazu befinden sich Aufenthaltsräume und Büros in den Produktionsbereichen, primär im 1. Obergeschoss, deren Anbindung über interne Treppen und einen Lastenaufzug erfolgt.
Der Hallenkomplex teilt sich in 5 Nutzflächen. Es gibt einen Wareneingang und -ausgang. Beide Teilflächen sind als Durchfahrtshalle konzipiert und ermöglichen so witterungsunabhängige Be- Entladeprozesse. Im Warenausgang befindet sich eine feststehendes Plateau, an welchem 9 Andockstationen (Sägezahnanrampen) vorhanden sind.
Vor dem Warenausgang liegt der Warenversand mit über 3.600 m², daran anschließt das Hochlager mit einer Nutzhöhe von rd. 18 m. Zwischen diesem Hochlager und dem Wareneingang liegt ein weiterer Lagerbereich, in dem bis dato die Papierrollen gelagert worden sind.
Alle 5 Halleneinheiten haben Nebenräume für Kleinlager, WC, Meisterbüros oder Staplerwerkstatt.
Der Hallenkomplex ist komplett umfahrbar.
Der jüngste Baukörper auf dem Gelände ist eine Lagerhalle, die in 2017/2018 errichtet wurde. Die Halle hat ein ebenerdiges Tor. Die Be-/ Entladung erfolgt vor der Halle unter einem Schleppdach. Die Halle verfügt über eine Regalanlage für Paletten. In der Halle ist noch ein Teilbereich für Kommissionierung baulich abgetrennt.
Die Zufahrt erfolgt zentral über ein Zuwegung, die mit Pförtner gesichert werden kann.
Die Infrastruktur des Areals ist umfassend und auf industrielle Anforderungen ausgelegt. Die Anlieferung zu den Hallen ist ebenerdig über diverse Rolltore und Sektionaltore, mit großzügigen Maßen von ca. 3 x 4,6 Meter bis ca. 16 x 18 Meter, flexibel möglich.
Die Energieversorgung ist durch leistungsstarke Industrie-Stromanschlüsse sowie eine redundante Versorgung über zwei separate Umspannwerke zuverlässig gesichert. Ein massiv gebautes Energiegebäude mit fünf Trafos dient als zentraler Standort der Energieversorgung und unterstreicht die technische Autonomie des Areals. Für die Mitarbeiter sind WCs und Sanitäreinrichtungen an mehreren Stellen im gesamten Produktionsbereich vorhanden. Ergänzend dazu befinden sich Aufenthaltsräume und Büros in den Produktionsbereichen, primär im 1. Obergeschoss, deren Anbindung über interne Treppen und einen Lastenaufzug erfolgt.
Der Hallenkomplex teilt sich in 5 Nutzflächen. Es gibt einen Wareneingang und -ausgang. Beide Teilflächen sind als Durchfahrtshalle konzipiert und ermöglichen so witterungsunabhängige Be- Entladeprozesse. Im Warenausgang befindet sich eine feststehendes Plateau, an welchem 9 Andockstationen (Sägezahnanrampen) vorhanden sind.
Vor dem Warenausgang liegt der Warenversand mit über 3.600 m², daran anschließt das Hochlager mit einer Nutzhöhe von rd. 18 m. Zwischen diesem Hochlager und dem Wareneingang liegt ein weiterer Lagerbereich, in dem bis dato die Papierrollen gelagert worden sind.
Alle 5 Halleneinheiten haben Nebenräume für Kleinlager, WC, Meisterbüros oder Staplerwerkstatt.
Der Hallenkomplex ist komplett umfahrbar.
Der jüngste Baukörper auf dem Gelände ist eine Lagerhalle, die in 2017/2018 errichtet wurde. Die Halle hat ein ebenerdiges Tor. Die Be-/ Entladung erfolgt vor der Halle unter einem Schleppdach. Die Halle verfügt über eine Regalanlage für Paletten. In der Halle ist noch ein Teilbereich für Kommissionierung baulich abgetrennt.
Die Zufahrt erfolgt zentral über ein Zuwegung, die mit Pförtner gesichert werden kann.
Zertifizierungen
Energieausweis
Für diese Liegenschaft liegt ein Verbrauchsausweis vom 15.07.2022 vom Eigentümer/Vermieter vor. Der wesentliche Energieträger der Liegenschaft ist Erdgas leicht. Der Endenergieverbrauch Strom beträgt 239,3 kWh/(m²*a). Der Endenergieverbrauch Wärme beträgt 170,0 kWh/(m²*a).Verfügbare Fläche
Lage und Verkehrsanbindung
Die Liegenschaft liegt am Stadtrand der Landeshauptstadt, unweit des Erfurter Flughafens. Der Anschluss an das Autobahnnetz erfolgt über eine Ausfallstraße. Die Anschlussstelle an die A 71 ist rd. 7 km entfernt. Über die A 71 erreicht nach weiteren 6 km das Erfurter Kreuz und die A 4. Das ÖPNV-Netz ist fußläufig innerhalb weniger Minuten erreichbar.
- Flughafen, Erfurt, Entfernung: 4 km
- Bundesautobahn, A4 & A71, Entfernung: 7 km
- Hauptbahnhof, PKW, Entfernung: 8 km
- S-Bahn, Erfurt, Binderleben, Gehzeit: 20 min
- Bus, Erfurt, Alacher Chaussee - 91 & 92, Gehzeit: 6 min
Ihr Kontakt

Daniel Sehnert
Ihr Kontakt





















