Einzelhandel
ID E1309Einzelhandel - Hamburg, Neustadt - E1309
Neustadt, 20355, Hamburg, Hamburg
Provisionspflichtig: bei Anmietung 3.6 Netto-Monatsmieten zzgl. gesetzlicher Umsatzsteuer.** der Wert kann je nach Vertragslaufzeit variieren.
Kontaktieren Sie uns für den Preis
- Objekt
- Lage und Verkehrsanbindung
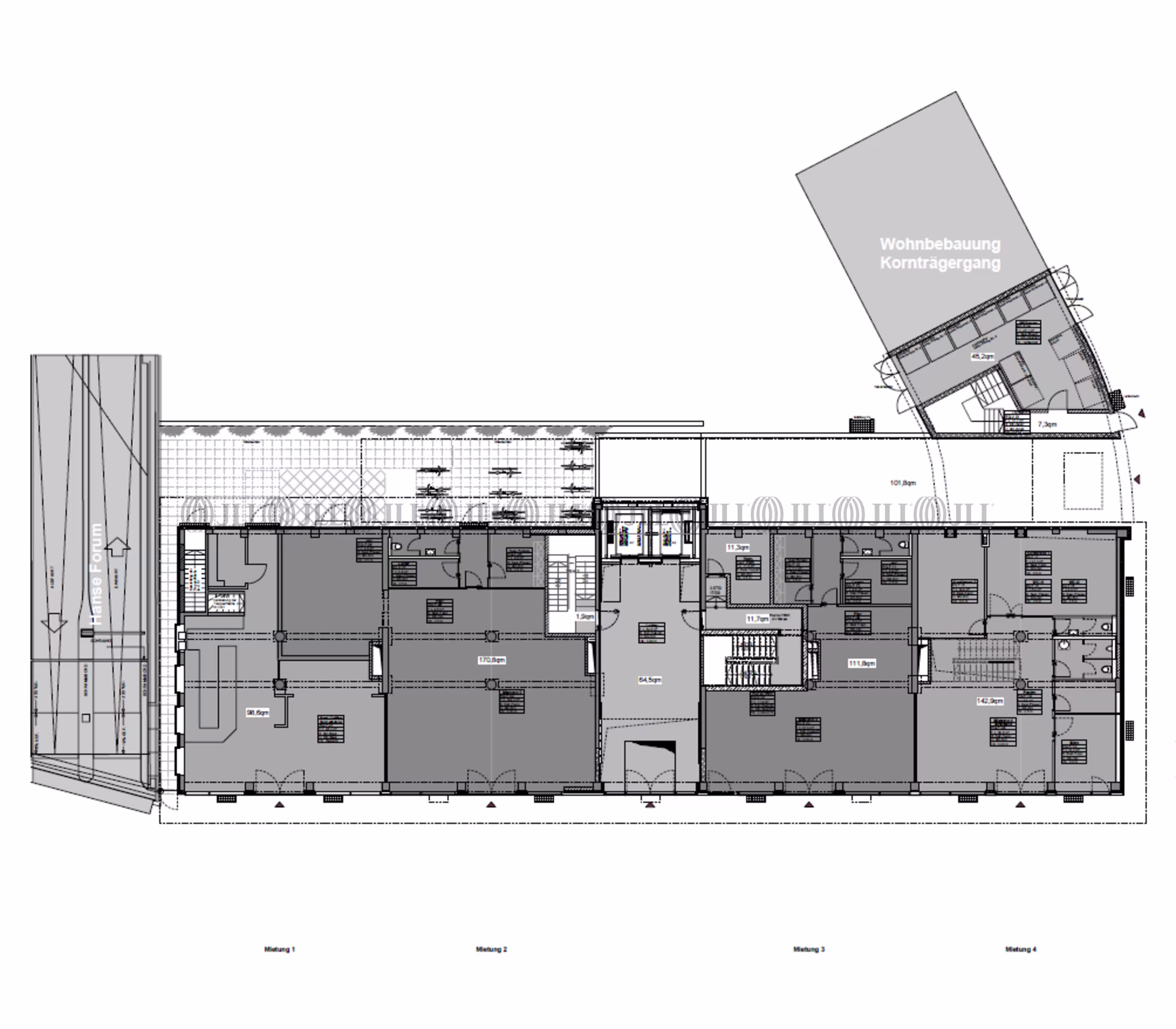
- Grundriss
- Exposé herunterladen
- Ihr Kontakt
- Anfrage senden
Objekt
Die Mietfläche befindet sich in Ecklage des Erdgeschosses eines Geschäftshauses in Hamburg-Mitte. Der Laden hat einen vielseitig nutzbaren Zuschnitt mit großen Fenstern zur Straße, wodurch eine gute Sichtbarkeit gegeben ist. Er bietet zahlreiche Möglichkeiten des Verkaufs oder als Nutzung durch weitere Dienstleistungen. Die Verkaufsfläche befindet sich auf Straßenniveau und ist barrierefrei zugänglich. Am Rande der Handelslage Große Bleichen / Hohe Bleichen, bietet das durch Geschäftshäuser geprägte Umfeld hier eine hohe Kaufkraft durch tägliche Besucher und Angestellte.
Lage und Verkehrsanbindung
Das Mietobjekt befindet sich im Stadtteil Neustadt, im Zentrum von Hamburg, wodurch eine hohe Zentralität im Stadtgebiet gegeben ist. Die belebte Gegend ist gut erreichbar und von Geschäften, Restaurants, Cafés, Wohnhäusern und Bürogebäuden geprägt. Die Verkehrsanbindung ist sehr gut, da sich in der Nähe mehrere U-Bahn- und S-Bahn-Stationen befinden, die eine schnelle Anbindung an den öffentlichen Nahverkehr ermöglichen. Gegenüber des Mietobjekts befindet sich eine Bushalte. Der Hauptbahnhof Hamburg ist nur 1,7 km erreichbar.
Ihr Kontakt

Moritz Scharbatke
Ihr Kontakt
Marktinformationen
Mietmarkt
Neustadt, Hamburg
siehe 28 passende MietobjekteErfahren Sie mehr
* Durchschnittspreis auf Grundlage historischer Transaktionen.





