Büros
ID M2481Premium JLL
Provisionsfrei
Büroimmobilie - München, Altstadt - M2481
Altstadt, 80333, München, Bayern
50 € / m²
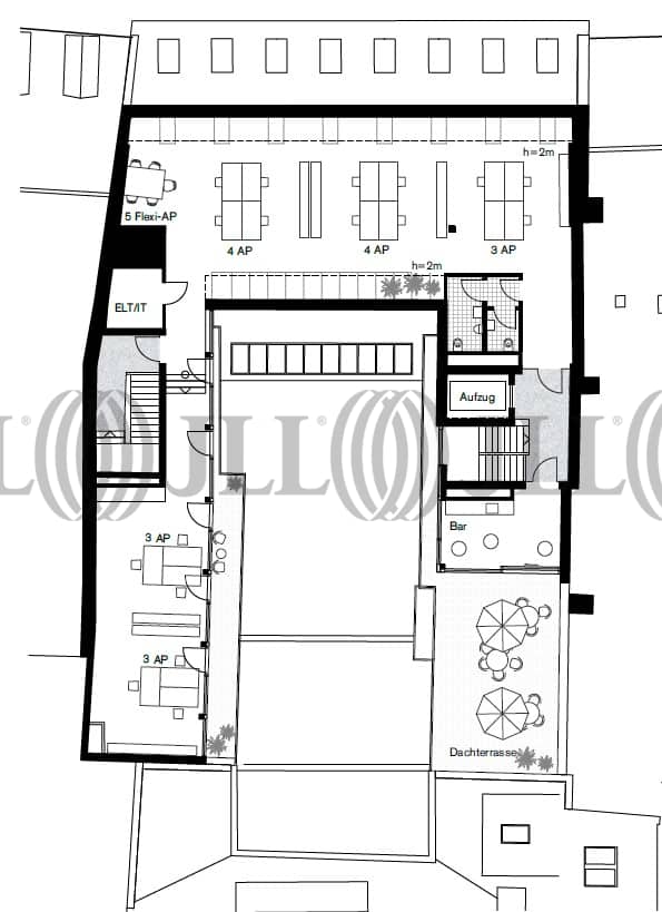
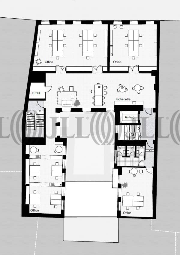
- Fläche1.733 - 3.320 m²
- VerfügbarkeitIII quartal 2027
- Objekt
- Ausstattung
- Lage und Verkehrsanbindung
- Grundrisse
- Exposé herunterladen
- Ihr Kontakt
- Anfrage senden
Zertifizierungen
Energieausweis
DGNB: SilverVerfügbare Fläche
Lage und Verkehrsanbindung
Das Objekt ist im Münchner Bankenviertel zwischen Karlsplatz, Marienplatz und Odeonsplatz gelegen. Über den Altstadtring sind alle umliegenden Autobahnen schnell und bequem zu erreichen. Dienstleister des täglichen Bedarfs befinden sich in der Nähe.
- Hauptbahnhof, München, Fahrzeit: 7 min
- U-Bahn, Karlsplatz, Linien U4/5, Gehzeit: 6 min
- Bundesautobahn, A 94, Fahrzeit: 11 min
- Bundesautobahn, A 8, Fahrzeit: 15 min
- Flughafen, München, Fahrzeit: 32 min
Ihr Kontakt

Pia Winkler
Ihr Kontakt
Marktinformationen
Mietmarkt
Altstadt, München
siehe 0 passende MietobjekteErfahren Sie mehr
* Durchschnittspreis auf Grundlage historischer Transaktionen.





