Büros
ID M2471Büroimmobilie - München, Schwabing-West - M2471
Schwabing-West, 80801, München, Bayern
Provisionspflichtig: bei Anmietung 3 Netto-Monatsmieten zzgl. gesetzlicher Umsatzsteuer.** der Wert kann je nach Vertragslaufzeit variieren.
Kontaktieren Sie uns für den Preis
- Fläche170 m²
- VerfügbarkeitSofort
- Objekt
- Ausstattung
- Lage und Verkehrsanbindung
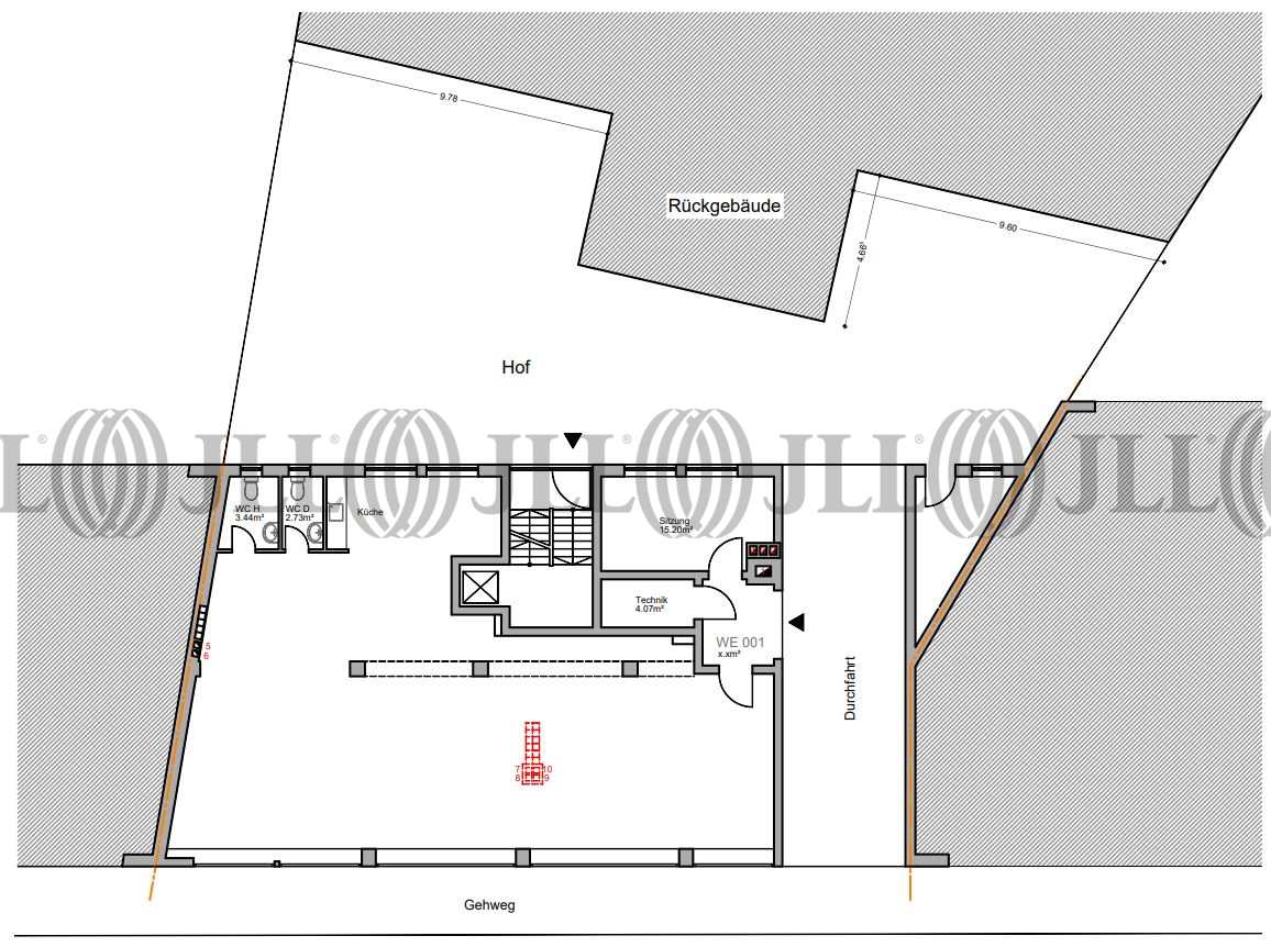
- Grundriss
- Exposé herunterladen
- Ihr Kontakt
- Anfrage senden
Objekt
Das mehrgeschossige Büro- und Wohnhaus verfügt über helle Büroflächen mit moderner Ausstattung.
Verfügbare Fläche
Lage und Verkehrsanbindung
Die Liegenschaft befindet sich in einer lebhaften und historisch reichen Gegend, umgeben von vielen Geschäften, Restaurants und Kulturorten. In Bezug auf den öffentlichen Nahverkehr ist der Standort hervorragend angebunden. Die nächstgelegene U-Bahn-Station ist der Hohenzollernplatz, welcher nur wenige Gehminuten entfernt ist und Zugang zu den U-Bahnlinien U2 und U8 bietet. Verschiedene Bus- und Straßenbahnlinien sind ebenso leicht erreichbar, was den Standort zu einem sehr gut erreichbaren Teil der Stadt macht.
- Flughafen, München, Fahrzeit: 31 min
- Bundesautobahn, A9, Fahrzeit: 15 min
- Bundesautobahn, A99, Fahrzeit: 15 min
- Hauptbahnhof, München, Fahrzeit: 16 min
- Straßenbahn/Tram, Elisabethplatz, Linien 27, 28, Gehzeit: 2 min
- U-Bahn, Hohenzollernplatz, Linien U2/U8, Gehzeit: 12 min
Ihr Kontakt

Tobias Schneider
Ihr Kontakt
Marktinformationen
Mietmarkt
Schwabing-West, München
siehe 5 passende MietobjekteErfahren Sie mehr
* Durchschnittspreis auf Grundlage historischer Transaktionen.







