Büros
ID M0924Provisionsfrei
Aktualisiert
Büroimmobilie - Unterhaching - M0924
82008, Unterhaching, Bayern
14,50 € / m²
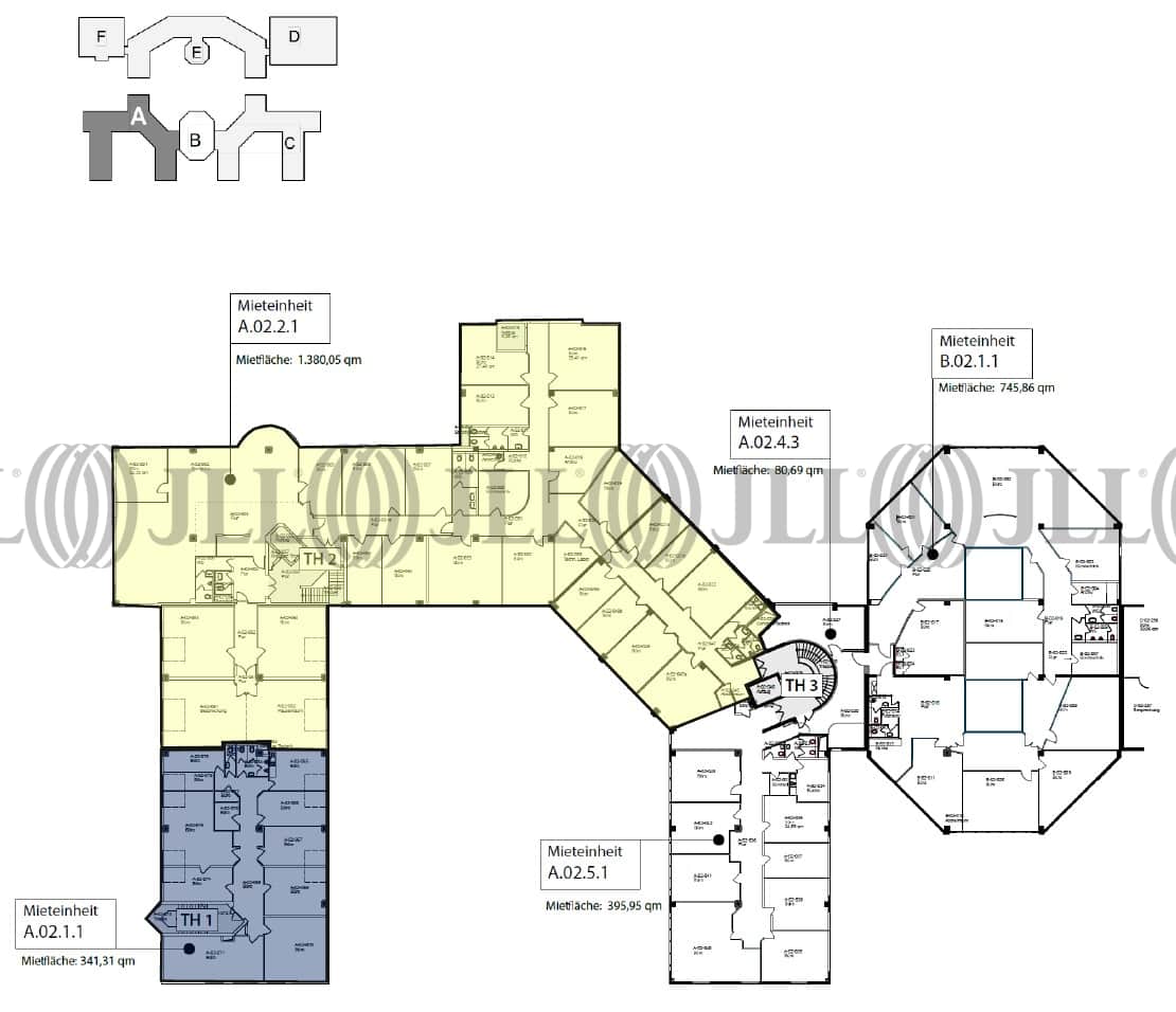
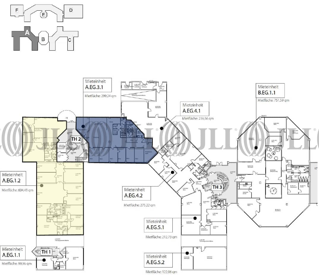
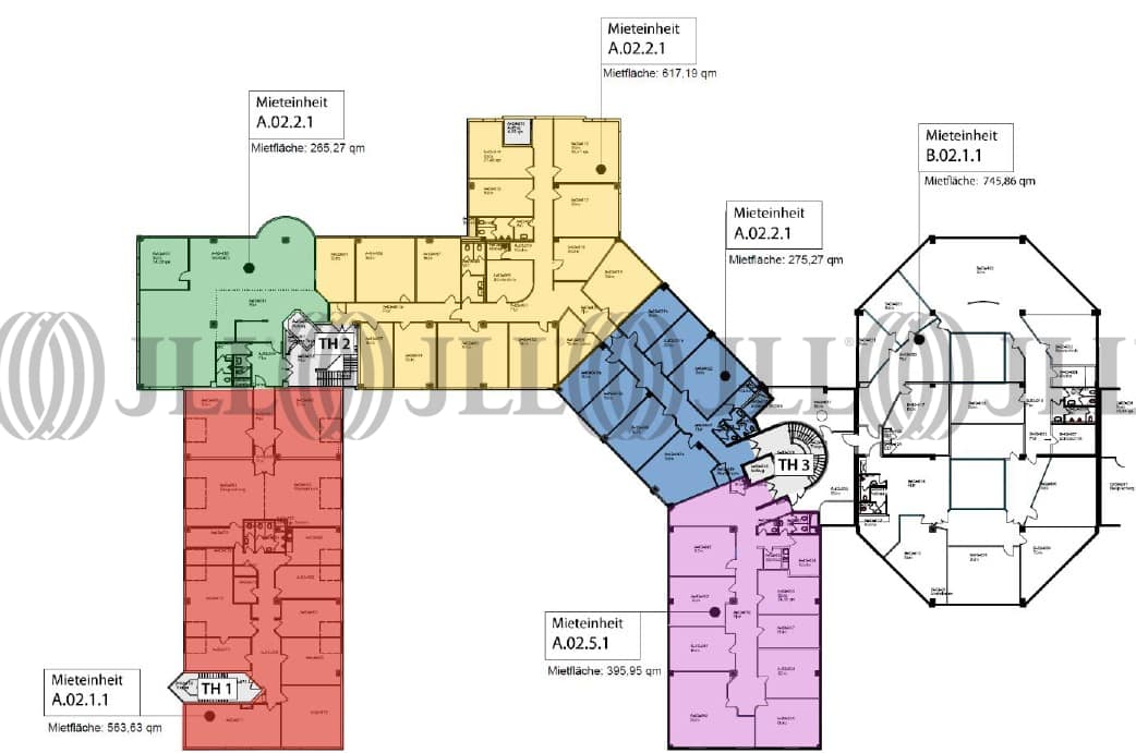
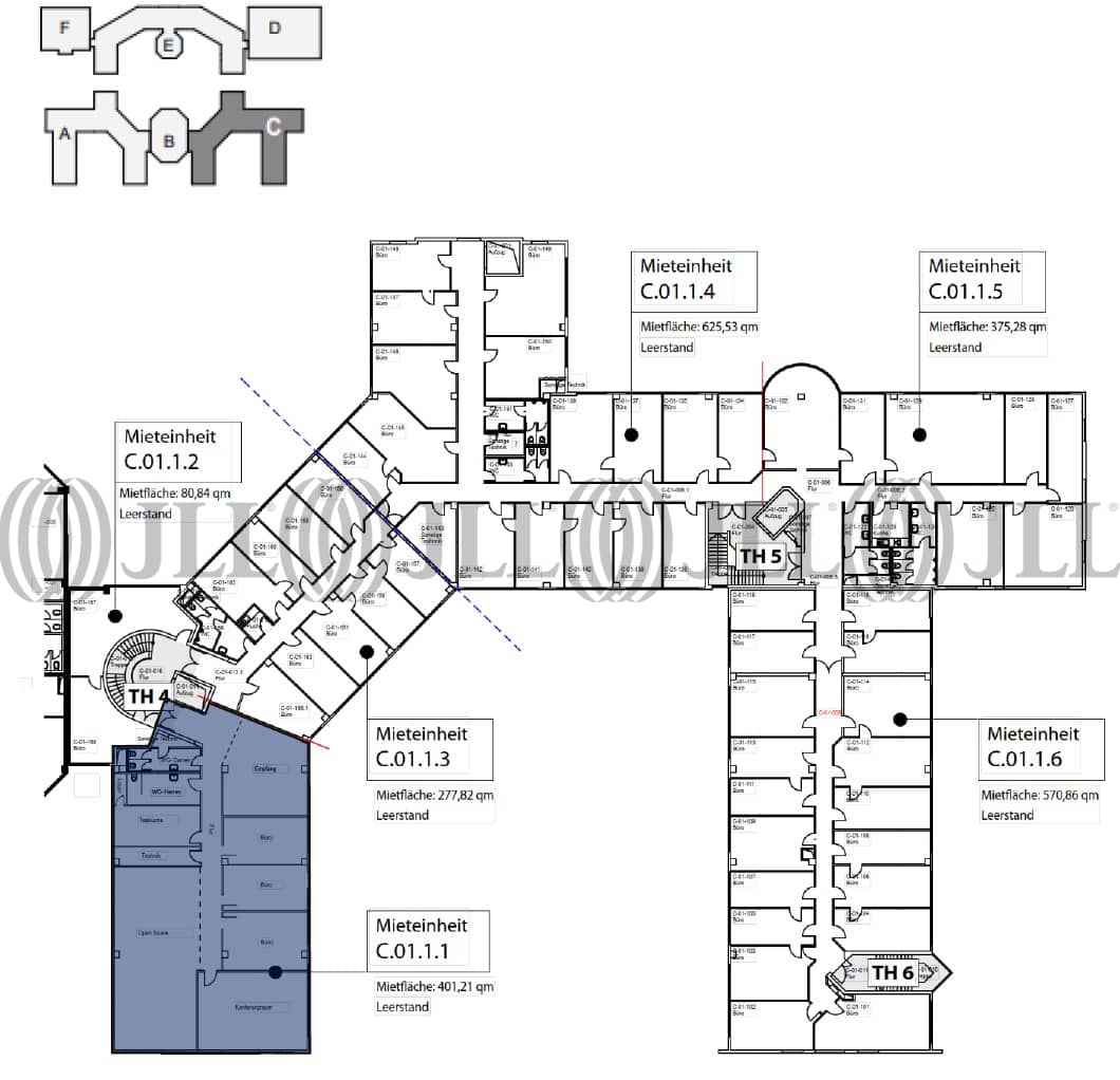
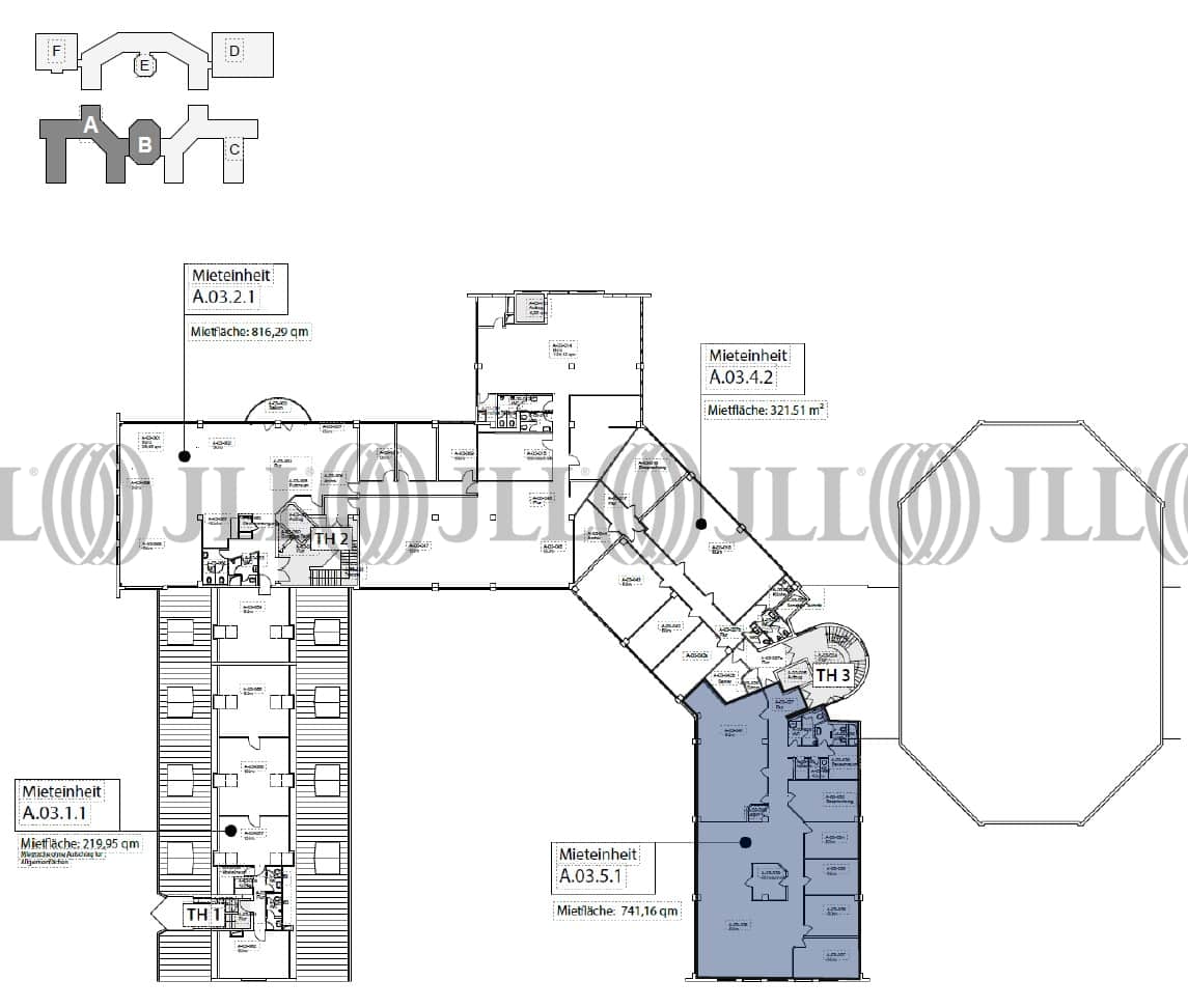
- Fläche265 - 3.225 m²
- VerfügbarkeitAuf Anfrage
- Objekt
- Ausstattung
- Lage und Verkehrsanbindung
- Grundrisse
- Exposé herunterladen
- Ihr Kontakt
- Anfrage senden
Objekt
Die Sonnenhöfe bieten neben Büroflächen auch Lager und Produktion. Auf dem Gelände befindet sich auch das Hotel und Boardinghouse Erlenhof, dass über ein Casino sowie Konferenz- und Veranstaltungsräume verfügt. Die Sonnenhöfe bieten repräsentative Arbeitswelten mit atemberaubendem Alpenblick, Raumkonzepte in exklusivem Design und technisch anspruchsvoller Machart, attraktive Mietkonditionen und einen günstigen Gewerbesteuer-Hebesatz. Die Flächen sind flexibel und je nach Anspruch des Mieters gestalt- und ausbaubar.
Zertifizierungen
Energieausweis
Für diese Liegenschaft liegt ein Verbrauchsausweis vom 18.02.2021 vom Eigentümer/Vermieter vor. Die wesentlichen Energieträger der Liegenschaft sind Fernwärme, KWK, Nahwärme, Strom. Der Endenergieverbrauch Strom beträgt 31.00 kWh/(m²*a). Der Endenergieverbrauch Wärme beträgt 75.00 kWh/(m²*a).Verfügbare Fläche
Lage und Verkehrsanbindung
Das Objekt ist am südlichen Stadtrand von München in Unterhaching gelegen. In direkter Nachbarschaft befindet sich ein dynamisches Gewerbegebiet. Die Sonnenhöfe sind bestens angebunden und erreichbar, umgeben von einer lebendigen, vielfältigen Infrastruktur.
- Flughafen, München, Fahrzeit: 38 min
- Bundesautobahn, A 995, Fahrzeit: 3 min
- Bundesautobahn, A 8, Fahrzeit: 7 min
- Bus, Eichenstraße, Linie 241, Gehzeit: 3 min
- S-Bahn, Taufkirchen, Linien S3/S7, Gehzeit: 10 min
- Hauptbahnhof, München, Fahrzeit: 25 min
Ihr Kontakt

Nicolas Salbeck
Ihr Kontakt

























