Büros
ID M0875Provisionsfrei
Aktualisiert
Büroimmobilie - München, Schwanthalerhöhe - M0875
Schwanthalerhöhe, 80339, München, Bayern
25 € / m²
- Fläche203 m²
- VerfügbarkeitSofort
- Objekt
- Ausstattung
- Lage und Verkehrsanbindung
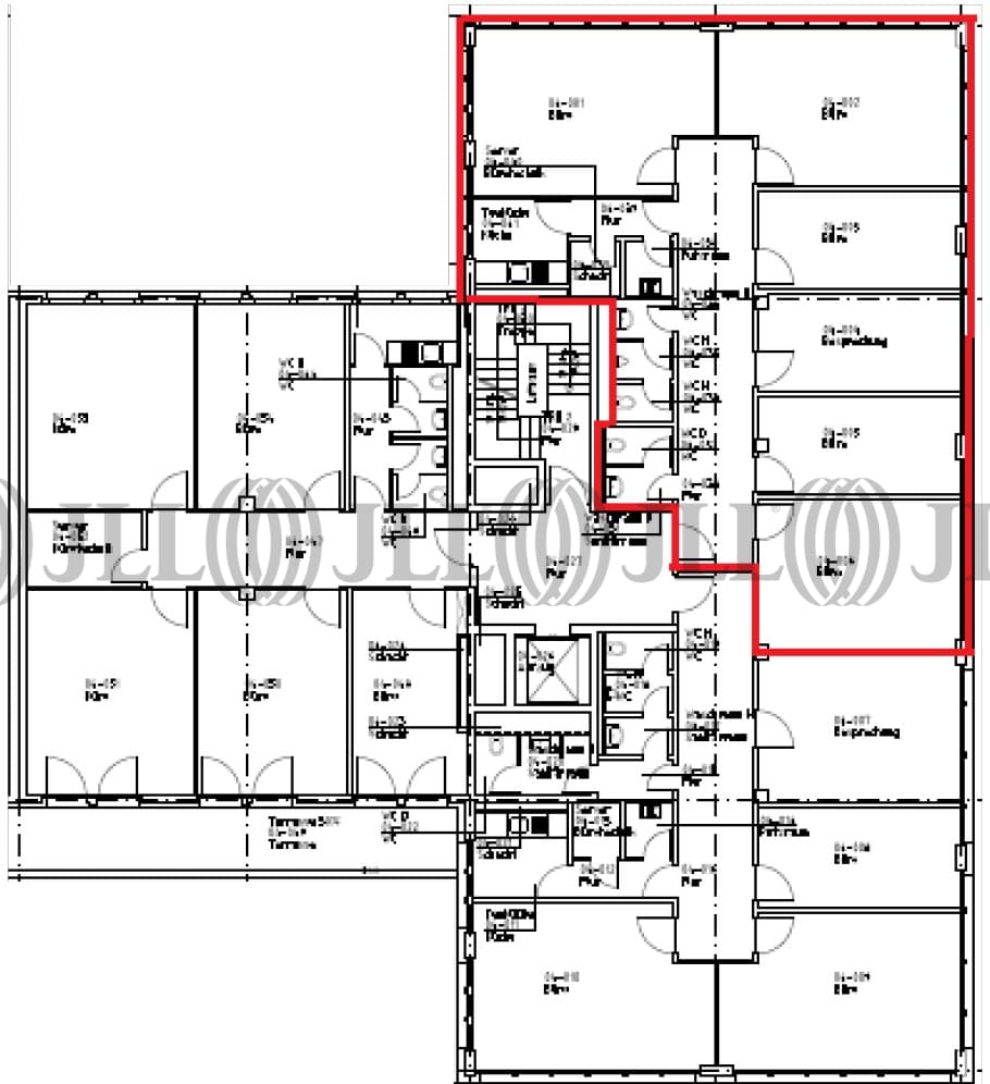
- Grundriss
- Exposé herunterladen
- Ihr Kontakt
- Anfrage senden
Objekt
Im Jahre 2002 mit liebevollem Blick auf Symmetrie und architektonische Details erbaut, verfügt das Objekt 7 Geschosse und ein zweigeschossiges Untergeschoss. Die Fassade ist mit Naturstein verkleidet und hat bodentiefe Metallfenster erhalten. Über ein zentrales Treppenhaus sowie eine Aufzugsanlage, die alle Ebenen ansteuert, lassen sich bequem alle Etagen erreichen. Das in zweihüftiger Bauweise, vom Wiener Architekten Adolf Krischanitz erbaute Bürohaus, verfügt über optimale Raumparameter wie lichtdurchflutete Räume, Kühlungsoptionen, außen liegenden Sonnenschutz, Hohlraumböden und den Mieterbedürfnissen anpassbare Beleuchtungs- und Raumaufteilungskonzepte. Stellplätze können in der hauseigenen Tiefgarage angemietet werden.
Zertifizierungen
Energieausweis
Für diese Liegenschaft liegt ein Bedarfsausweis vom 03.03.2020 vom Eigentümer/Vermieter vor. Die wesentlichen Energieträger der Liegenschaft sind Heizwerk, fossil, Strom. Endenergiebedarf: 42,30 kWh/(m²*a)Verfügbare Fläche
Lage und Verkehrsanbindung
Das Objekt befindet sich im Münchner Westen, im Stadtteil Isarvorstadt-Ludwigsvorstadt, nördlich des Bavariaparks und westlich der Theresienwiese. Über den nahe gelegenen Mittleren Ring sind alle umliegenden Autobahnen sowie der Flughafen München und die Neue Messe München schnell und bequem zu erreichen. In unmittelbarer Nähe zum Objekt befinden sich die U- und S-Bahn-Haltestelle Heimeranplatz der Linien U4/U5 sowie S7/S20/S27 und die U-Bahn-Haltestelle Theresienwiese der Linien U4/U5. Dienstleister des täglichen Bedarfs befinden sich in der Nähe.
- Flughafen, München, Fahrzeit: 35 min
- Bundesautobahn, A 96, Fahrzeit: 6 min
- Bundesautobahn, A 95, Fahrzeit: 8 min
- Bus, Schwanthalerhöhe, Linien 53, 134, Gehzeit: 2 min
- Hauptbahnhof, München, Fahrzeit: 7 min
- Straßenbahn/Tram, Schwanthalerhöhe, Gehzeit: 2 min
Ihr Kontakt

Nicolas Harmuth
Ihr Kontakt
Marktinformationen
Mietmarkt
Schwanthalerhöhe, München
Gew. Ø-Miete
25 € / m²
siehe 11 passende MietobjekteErfahren Sie mehr* Durchschnittspreis auf Grundlage historischer Transaktionen.



