Büros
ID M0868Provisionsfrei
Büroimmobilie - München, Altstadt - M0868
Altstadt, 80331, München, Bayern
Kontaktieren Sie uns für den Preis
- Fläche192 - 793 m²
- VerfügbarkeitAuf Anfrage
- Objekt
- Ausstattung
- Lage und Verkehrsanbindung
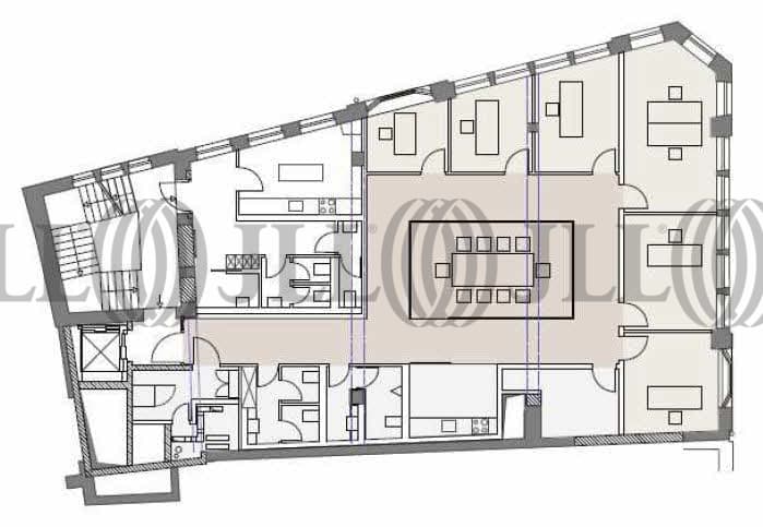
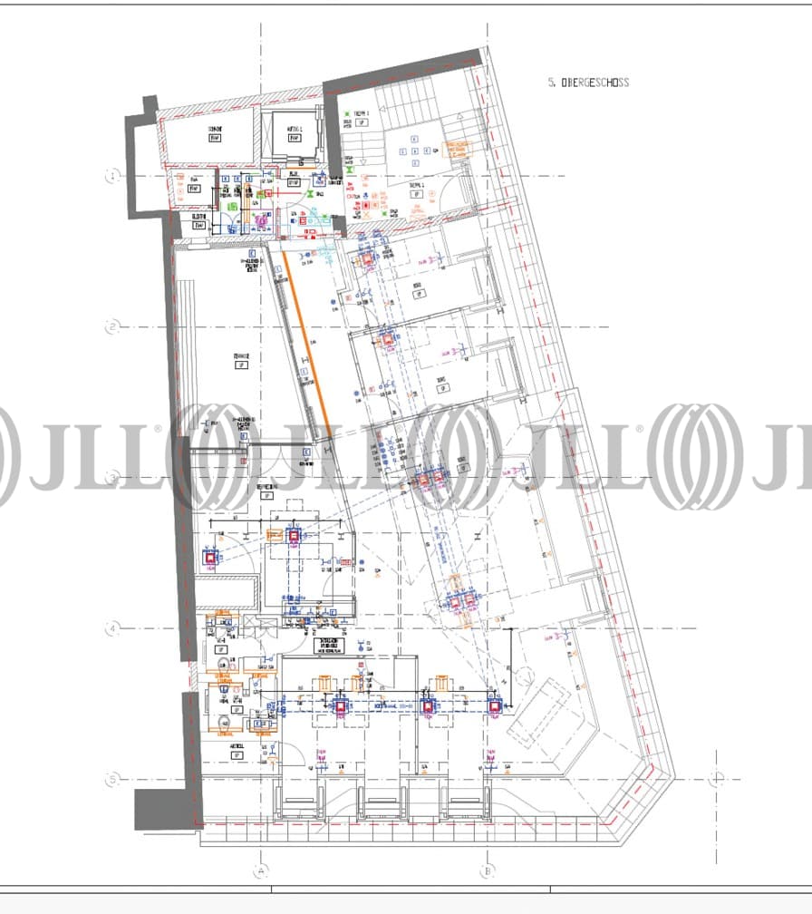
- Grundrisse
- Exposé herunterladen
- Ihr Kontakt
- Anfrage senden
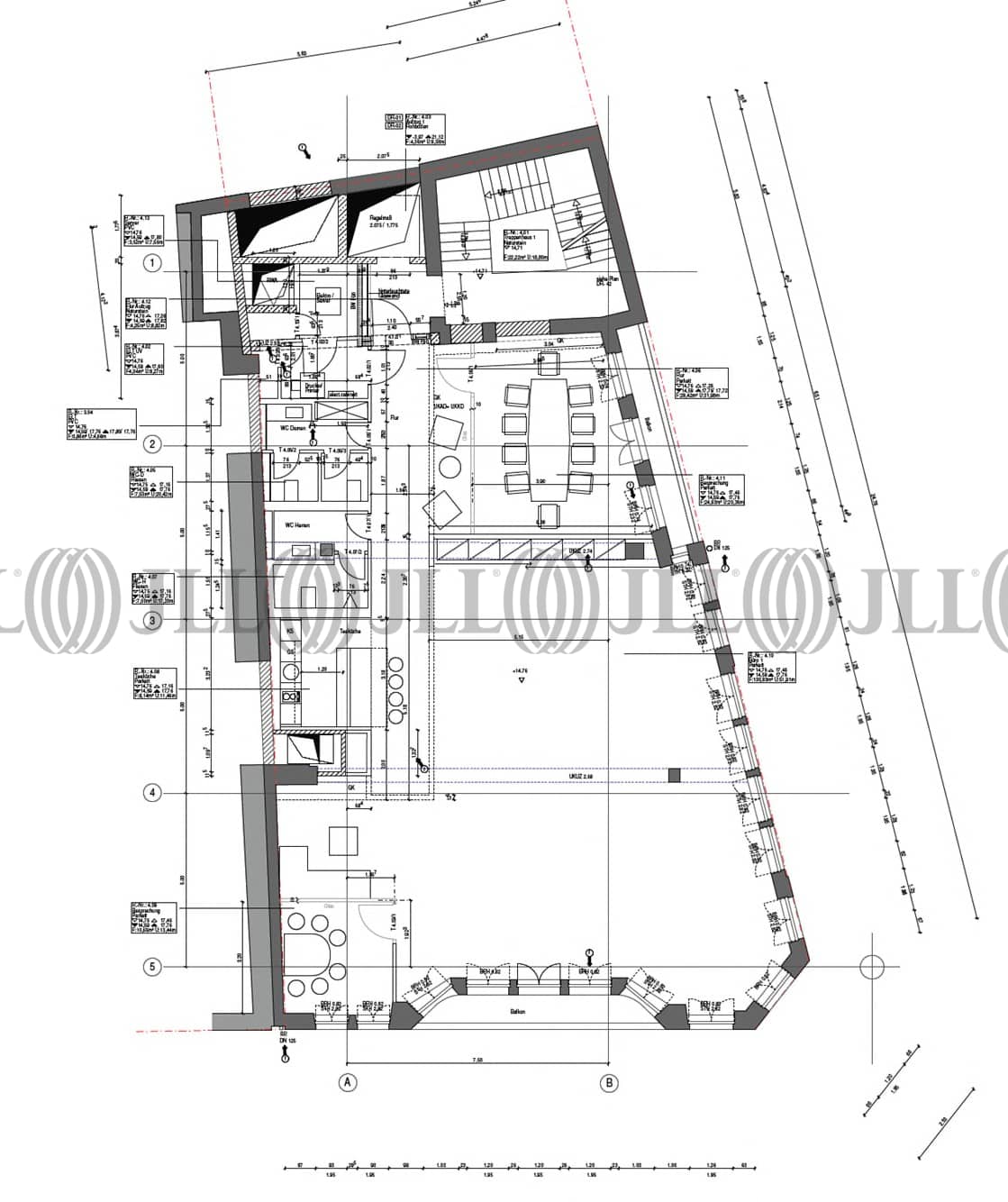
Objekt
Das denkmalgeschützte Gebäude verfügt über ein repräsentatives Eingangsfoyer mit denkmalgeschütztem Treppenhaus. Im Dachgeschoss der Liegenschaft befindet sich eine schöne Dachterrasse. Die Flächenangabe ist durch die Dachschrägen bedingt.
Zertifizierungen
Energieausweis
Für diese Liegenschaft liegt ein Bedarfsausweis vom 09.02.2015 vom Eigentümer/Vermieter vor. Die wesentlichen Energieträger der Liegenschaft sind Fernwärme, Strom. Der Endenergiebedarf Strom beträgt 72.00 kWh/(m²*a). Der Endenergiebedarf Wärme beträgt 106.00 kWh/(m²*a).Verfügbare Fläche
Lage und Verkehrsanbindung
Das Objekt befindet sich in absoluter Innenstadtlage, direkt an die Fußgängerzone angrenzend. Durch die Haltestelle Marienplatz und Sendlinger Tor ist eine perfekte Anbindung an den öffentlichen Nahverkehr gegeben. Über den Mittleren Ring sind alle umliegenden Autobahnen sowie der Flughafen München und die Neue Messe München schnell und bequem zu erreichen. Geschäfte des täglichen Bedarfs sind in näherer Umgebung zahlreich vorhanden.
- Flughafen, München, Fahrzeit: 40 min
- Bundesautobahn, A 8, Fahrzeit: 15 min
- Bundesautobahn, A 94, Fahrzeit: 15 min
- Hauptbahnhof, München, Fahrzeit: 5 min
- U-Bahn, Marienplatz, Linien U3/6, Gehzeit: 4 min
Ihr Kontakt

Tobias Schneider
Ihr Kontakt
Marktinformationen
Mietmarkt
Altstadt, München
siehe 0 passende MietobjekteErfahren Sie mehr
* Durchschnittspreis auf Grundlage historischer Transaktionen.






