Büros
ID M0692Provisionsfrei
Büroimmobilie - München, Altstadt - M0692
Altstadt, 80333, München, Bayern
38 € / m²
- Fläche120 - 263 m²
- VerfügbarkeitSofort
- Objekt
- Ausstattung
- Lage und Verkehrsanbindung
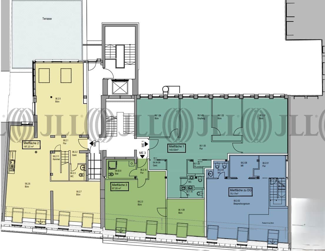
- Grundrisse
- Exposé herunterladen
- Ihr Kontakt
- Anfrage senden
Objekt
Das 6-geschossige repräsentative Büro- und Geschäftshaus wurde im Jahr 2005 aufwendig saniert. Über eine schön gestaltete Passage wird das Gebäude erschlossen, ein Personenaufzug dient die einzelnen Etagen an.
Zertifizierungen
Energieausweis
Für diese Liegenschaft liegt ein Verbrauchsausweis vom 29.04.2019 vom Eigentümer/Vermieter vor. Die wesentlichen Energieträger der Liegenschaft sind Fernwärme, Strom. Der Endenergieverbrauch Strom beträgt 249.00 kWh/(m²*a). Der Endenergieverbrauch Wärme beträgt 62.00 kWh/(m²*a).Verfügbare Fläche
Lage und Verkehrsanbindung
Die Theatinerstraße gehört zu Münchens Top-Adressen und befindet sich in der Nähe des Marienplatzes sowie der Maximilianstraße. Die ÖPNV-Anbindung erfolgt entweder über die U-Bahnstation Odeonsplatz der Linien U3, U4, U5 und U6 oder über die Stammstrecken-Haltestelle Marienplatz. Der Altstadtring ist mit dem PKW schnell erreicht und bietet so einen guten Anschluss an den Individualverkehr. Diverse Geschäfte, Restaurants, Cafés und Hotels sind in der Umgebung vorhanden. Dienstleister des täglichen Bedarfs befinden sich in der Nähe.
- Flughafen, München, Fahrzeit: 30 min
- Bundesautobahn, A 94, Fahrzeit: 13 min
- Bundesautobahn, A 9, Fahrzeit: 16 min
- Bundesautobahn, A 96, Fahrzeit: 19 min
- Bus, Bushaltestelle Marienplatz Buslinien 52, Gehzeit: 5 min
- U-Bahn, Marienplatz, Gehzeit: 4 min
- Hauptbahnhof, München, Gehzeit: 12 min
Ihr Kontakt

Nicolas Salbeck
Ihr Kontakt
Marktinformationen
Mietmarkt
Altstadt, München
siehe 0 passende MietobjekteErfahren Sie mehr
* Durchschnittspreis auf Grundlage historischer Transaktionen.














