Büros
ID M0637Provisionsfrei
Büroimmobilie - München, Altstadt - M0637
Altstadt, 80331, München, Bayern
30 € / m²
- Fläche183 - 641 m²
- VerfügbarkeitSofort
- Objekt
- Ausstattung
- Lage und Verkehrsanbindung
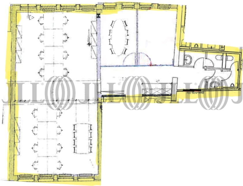
- Grundriss
- Exposé herunterladen
- Ihr Kontakt
- Anfrage senden
Objekt
Das Objekt verfügt über einen modernen Eingangsbereich und ist hochwertig revitalisiert. Die Mieteinheiten liegen in einer kleinen Passage und haben einen Zugang zur gemeinschaftlichen Dachterrasse. Die Nutzung des Foyers für Veranstaltungen ist nach Absprache möglich.
Zertifizierungen
Energieausweis
Für diese Liegenschaft liegt ein Verbrauchsausweis vom 10.01.2024 vom Eigentümer/Vermieter vor. Der wesentliche Energieträger der Liegenschaft ist Fernwärme. Der Endenergieverbrauch Strom beträgt 15,1 kWh/(m²*a). Der Endenergieverbrauch Wärme beträgt 57,3 kWh/(m²*a).Verfügbare Fläche
Lage und Verkehrsanbindung
Das Objekt befindet sich im Herzen der Münchener Innenstadt und ist direkt in der Fußgängerzone, unweit des Karlsplatzes und dem Sendlinger Tor gelegen. Über den Altstadtring sind alle wichtigen Ausfallstraßen schnell und bequem zu erreichen. Über den Mittleren Ring sind alle umliegenden Autobahnen sowie der Flughafen München und die Neue Messe München schnell erreichbar.
- Hauptbahnhof, München, Gehzeit: 7 min
- U-Bahn, Sendlinger Tor, Gehzeit: 1 min
- Bus, Sendlinger Tor, Linien 52, 62, Gehzeit: 4 min
- Bundesautobahn, A 94, Fahrzeit: 15 min
- Bundesautobahn, A 96, Fahrzeit: 11 min
- Bundesautobahn, A 8, Fahrzeit: 10 min
- Flughafen, München, Fahrzeit: 40 min
Ihr Kontakt

Tobias Schneider
Ihr Kontakt
Marktinformationen
Mietmarkt
Altstadt, München
siehe 0 passende MietobjekteErfahren Sie mehr
* Durchschnittspreis auf Grundlage historischer Transaktionen.










