Büros
ID M0540Provisionsfrei
Büroimmobilie - München, Schwanthalerhöhe - M0540
Schwanthalerhöhe, 80339, München, Bayern
36 € / m²
- Fläche419 m²
- VerfügbarkeitAugust 2026
- Objekt
- Ausstattung
- Lage und Verkehrsanbindung
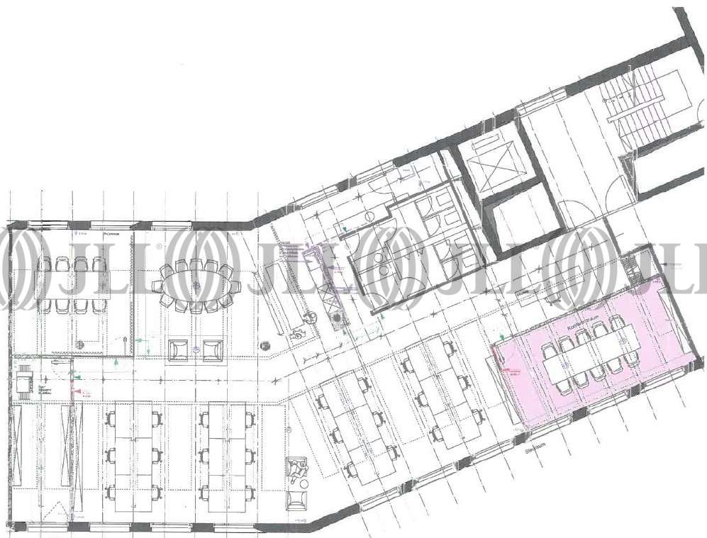
- Grundriss
- Exposé herunterladen
- Ihr Kontakt
- Anfrage senden
Objekt
Die Adresse Theresienhöhe 30 steht für ein modernes Arbeitsumfeld mit herausragendem Charakter. Seine beiden markanten Baukörper bilden durch ein dreigeschossiges Verbindungsstück eine komplexe Einheit. Das betont großzügige Raumambiente und die zentrumsnahe Lage schaffen eine Attraktivität, die alle Arbeitsprozesse spürbar bereichert.Das Objekt hat ein elegantes Erscheinungsbild. Großzügige, begrünte Innenhöfe laden zum Verweilen ein. Die Liegenschaft ist Green Building zertifiziert.
Zertifizierungen
Energieausweis
Für diese Liegenschaft liegt ein Bedarfsausweis vom 31.05.2023 vom Eigentümer/Vermieter vor. Die wesentlichen Energieträger der Liegenschaft sind Fernwärme, Strom. Der Endenergiebedarf Strom beträgt 13.00 kWh/(m²*a). Der Endenergiebedarf Wärme beträgt 88.40 kWh/(m²*a).Verfügbare Fläche
Lage und Verkehrsanbindung
Exklusive Bürofläche im neuen und urbanen Stadtteil Theresienhöhe, fußläufig zur U-Bahn-Haltestelle Poccistraße gelegen. Der Münchener Hauptbahnhof liegt in der Nähe (ca. 2 km).
- Flughafen, München, Fahrzeit: 25 min
- Bundesautobahn, A 96, Fahrzeit: 8 min
- Bundesautobahn, A 95, Fahrzeit: 10 min
- Bundesautobahn, A 8, Fahrzeit: 15 min
- Bus, Hans-Fischer-Straße, Linie 62, Gehzeit: 2 min
- U-Bahn, Poccistraße, Linien U3/6, Gehzeit: 8 min
- Hauptbahnhof, München, Fahrzeit: 7 min
Ihr Kontakt

Nicolas Salbeck
Ihr Kontakt
Marktinformationen
Mietmarkt
Schwanthalerhöhe, München
Gew. Ø-Miete
36 € / m²
siehe 11 passende MietobjekteErfahren Sie mehr* Durchschnittspreis auf Grundlage historischer Transaktionen.




