Büros
ID M0429Provisionsfrei
Aktualisiert
Büroimmobilie - Unterhaching - M0429
82008, Unterhaching, Bayern
9,80 € / m²
- Fläche88 - 2.947 m²
- VerfügbarkeitSofort
- Objekt
- Ausstattung
- Lage und Verkehrsanbindung
- Grundrisse
- Exposé herunterladen
- Ihr Kontakt
- Anfrage senden
Objekt
Das Objekt verfügt neben Büroflächen über Produktionsflächen mit Lastenaufzügen. In der Anlage befindet sich das Hotel und Boardinghouse Erlenhof, das über ein Casino sowie Konferenz- und Veranstaltungsräume verfügt.
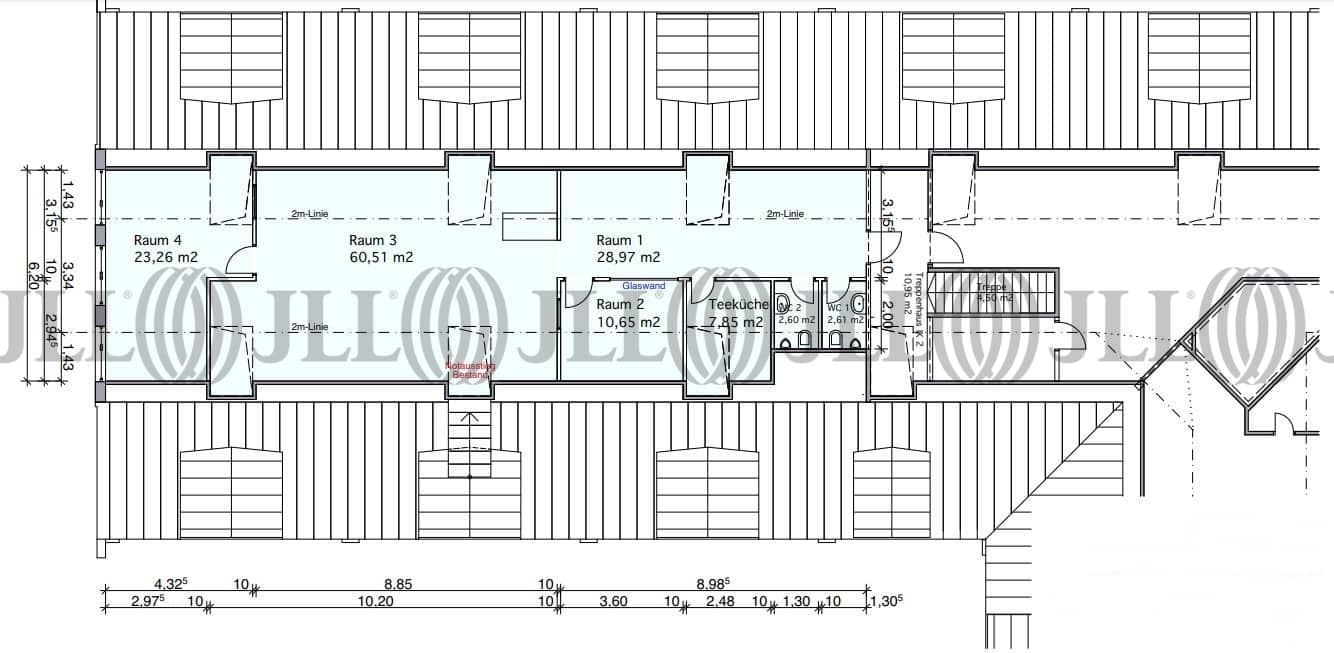
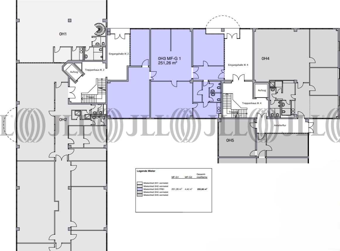
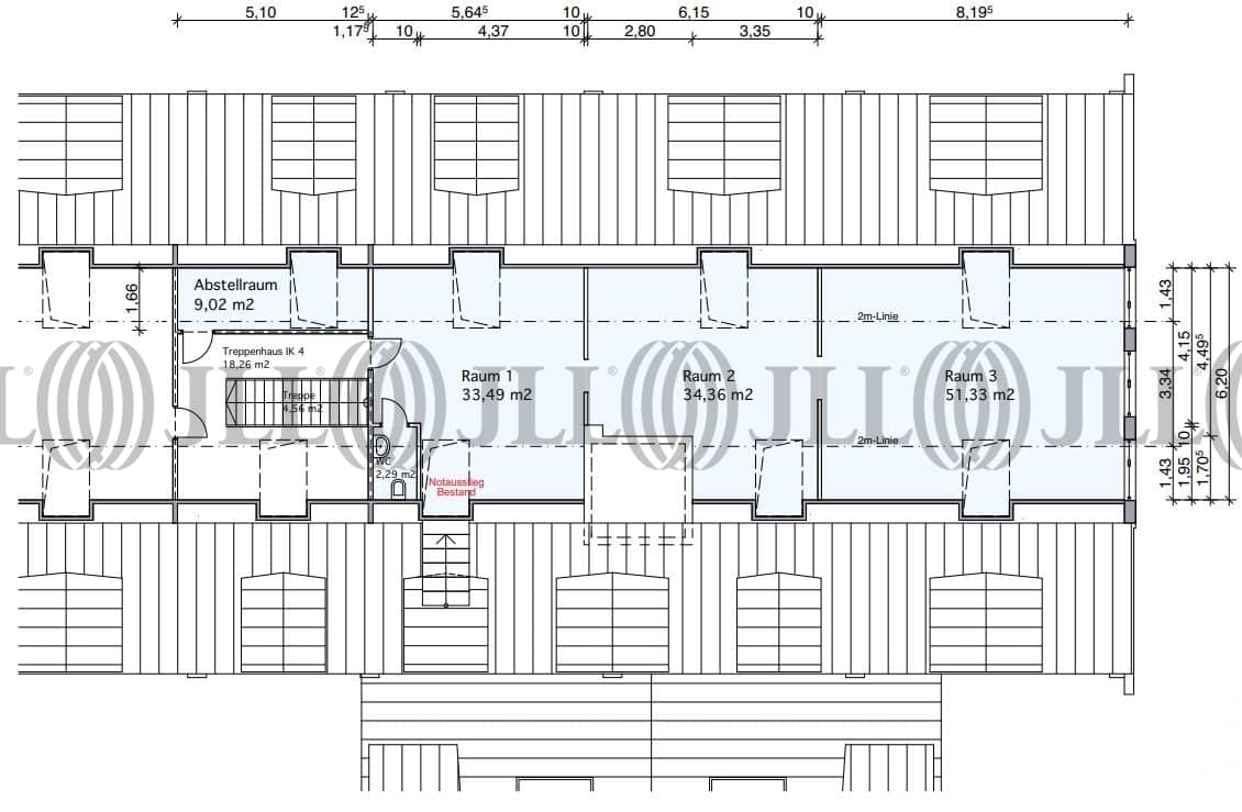
Verfügbare Fläche
Lage und Verkehrsanbindung
Das Objekt ist am südlichen Stadtrand von München, in Unterhaching gelegen. In direkter Nachbarschaft befindet sich ein dynamisches Gewerbegebiet.
- Flughafen, München, Fahrzeit: 25 min
- Bundesautobahn, A 995, Fahrzeit: 3 min
- Bundesautobahn, A 8, Fahrzeit: 7 min
- Bus, Eichenstraße, Linie 241, Gehzeit: 3 min
- S-Bahn, Taufkirchen, Linien S3/S7, Gehzeit: 9 min
- Hauptbahnhof, München, Fahrzeit: 25 min
Ihr Kontakt

Nicolas Salbeck
Ihr Kontakt













