Büros
ID M0407Provisionsfrei
Aktualisiert
Büroimmobilie - München, Schwanthalerhöhe - M0407
Schwanthalerhöhe, 80339, München, Bayern
Kontaktieren Sie uns für den Preis
- Fläche171 - 10.128 m²
- VerfügbarkeitSofort
- Objekt
- Ausstattung
- Lage und Verkehrsanbindung
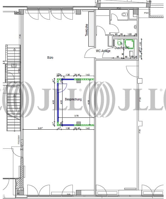
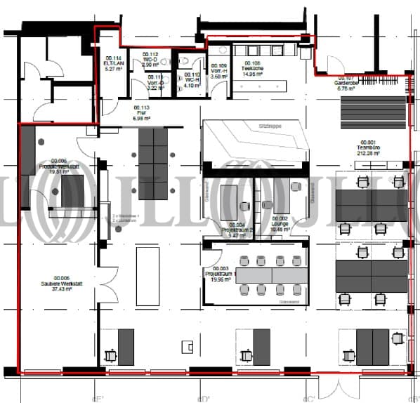
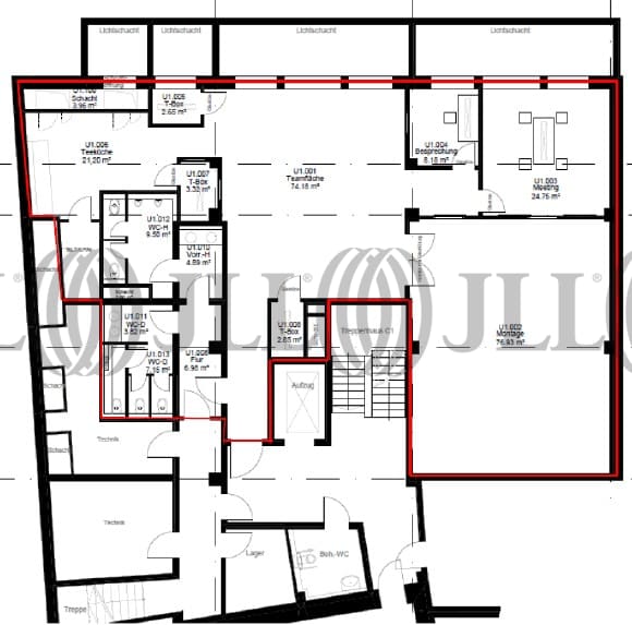
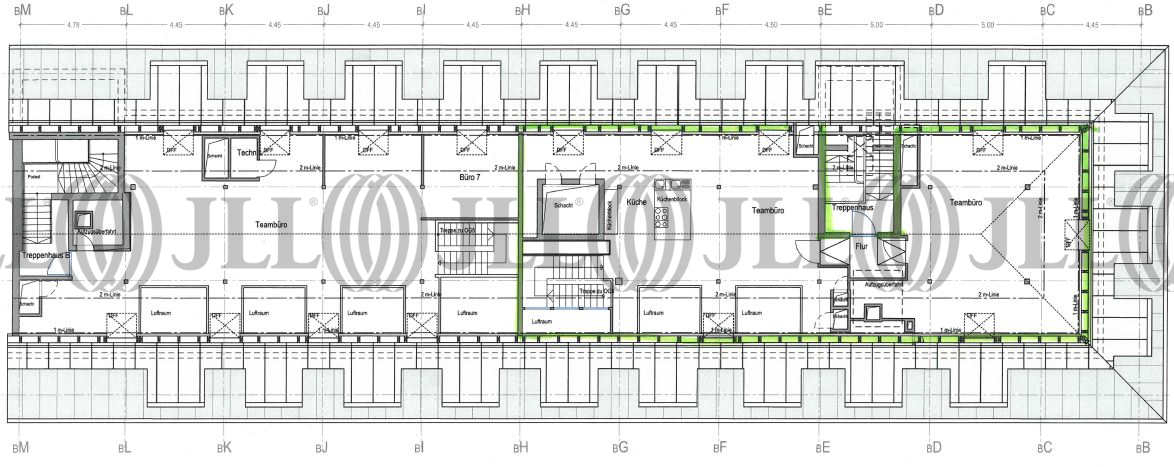
- Grundrisse
- Exposé herunterladen
- Ihr Kontakt
- Anfrage senden
Objekt
Der moderne Bürocampus besteht aus 5 unterschiedlichen Gebäudetypen mit einer großen Nutzungsvielfalt und wurde nach Feng-Shui Richtlinien gebaut. Angeboten werden sehr flexible und individuelle New Work Büroflächen. Eine Kita befindet sich auf dem barrierefreien Campus, sowie E-Charger für Autos und E-Bikes. Ein großer Außenbereich mit Schmetterlingswiese/Insektenhotels (Bienenstöcke inkl. eigenem Honig), Obstbäumen und Hochbeeten runden das Angebot ab.
Zertifizierungen
Energieausweis
DGNB: GoldFür diese Liegenschaft liegt ein Verbrauchsausweis vom 29.06.2015 vom Eigentümer/Vermieter vor. Der wesentliche Energieträger der Liegenschaft ist Fernwärme. Der Endenergieverbrauch Strom beträgt 40.5 kWh/(m²*a). Der Endenergieverbrauch Wärme beträgt 71.5 kWh/(m²*a).
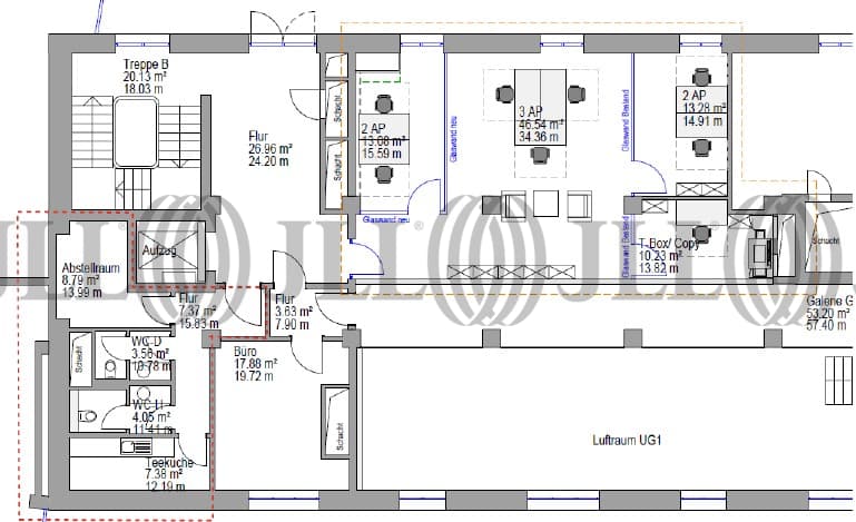
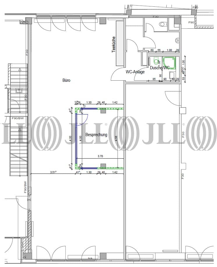
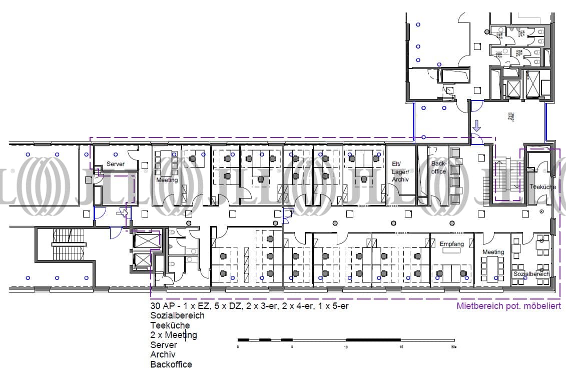
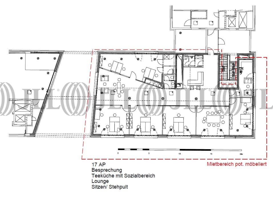
Verfügbare Fläche
Lage und Verkehrsanbindung
Das Objekt ist in der westlichen Innenstadt von München im Stadtteil „Schwanthalerhöhe“ gelegen. Mit dem Auto gelangt man in kürzester Zeit auf den Altstadtring oder den Mittleren Ring (ca. 3 Minuten) und somit schnell und bequem zu allen umliegenden Autobahnen sowie zum Flughafen München und zur Neuen Messe München. Geschäfte des täglichen Bedarfs sind in näherer Umgebung zahlreich vorhanden.
- Flughafen, München, Fahrzeit: 35 min
- Bundesautobahn, A 96, Fahrzeit: 5 min
- Bundesautobahn, A 95, Fahrzeit: 8 min
- Bundesautobahn, A 99, Fahrzeit: 10 min
- Bus, Ridlerstraße Linien 53, 134, 153, Gehzeit: 1 min
- Hauptbahnhof, Hauptbahnhof, Fahrzeit: 7 min
- U-Bahn, Schwanthalerhöhe, Linien U4/U5, Gehzeit: 5 min
Ihr Kontakt

Nicolas Harmuth
Ihr Kontakt
Marktinformationen
Mietmarkt
Schwanthalerhöhe, München
siehe 10 passende MietobjekteErfahren Sie mehr
* Durchschnittspreis auf Grundlage historischer Transaktionen.














