Büros
ID M0007Provisionsfrei
Aktualisiert
Büroimmobilie - München, Schwanthalerhöhe - M0007
Schwanthalerhöhe, 80339, München, Bayern
20 € / m²
- Fläche376 - 3.307 m²
- VerfügbarkeitSofort
- Objekt
- Ausstattung
- Lage und Verkehrsanbindung
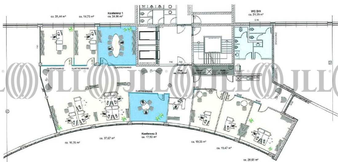
- Grundrisse
- Exposé herunterladen
- Ihr Kontakt
- Anfrage senden
Objekt
Das Objekt verfügt über 2 Geschosse reichende, repräsentative Eingangshallen, sowie eine hochwertige Naturstein-Putz-/ Glas-Fassade. Die Raumaufteilung ist nach Mieterwunsch möglich.
Zertifizierungen
Energieausweis
Für diese Liegenschaft liegt ein Verbrauchsausweis vom 2019-12-04 vom Eigentümer/Vermieter vor. Die wesentlichen Energieträger der Liegenschaft sind Strom,Erdgas schwer. Der Endenergieverbrauch Strom beträgt 85.80 kWh/(m²*a). Der Endenergieverbrauch Wärme beträgt 103.70 kWh/(m²*a).Verfügbare Fläche
Lage und Verkehrsanbindung
Das Objekt ist im Westen von München, im Stadtteil „Schwanthalerhöhe“ gelegen. Das Bürozentrum RONDO liegt besonders verkehrsgünstig in einer ruhigen Seitenstraße der Landsberger Straße. Durch diese sind der Mittlere Ring und somit die Münchner Innenstadt, sowie alle umliegenden Autobahnen, der Flughafen München und die Neue Messe München sehr gut zu erreichen. Die S- bzw. U-Bahn-Haltestellen „Donnersberger Brücke“ sowie „Heimeranplatz“ und „Westendstraße“ sind fußläufig in wenigen Minuten erreichbar (S-Bahn-Stammstrecke, U5 sowie diverse Bus-Linien). Die Tram-Haltestellen „Barthstraße“ der Linien 18/19 befinden sich am Gebäude. Geschäfte des täglichen Bedarfs, Restaurants und Hotels befinden sich in der Umgebung. Dienstleister des täglichen Bedarfs befinden sich in der Nähe.
- Flughafen, München, Fahrzeit: 25 min
- Bundesautobahn, A 96, Fahrzeit: 6 min
- Bundesautobahn, A 95, Fahrzeit: 7 min
- Bundesautobahn, A 8, Fahrzeit: 11 min
- Hauptbahnhof, München, Fahrzeit: 7 min
- U-Bahn, Heimeranplatz, U4/5, Gehzeit: 8 min
Ihr Kontakt

Tobias Schneider
Ihr Kontakt
Marktinformationen
Mietmarkt
Schwanthalerhöhe, München
Gew. Ø-Miete
20 € / m²
siehe 11 passende MietobjekteErfahren Sie mehr* Durchschnittspreis auf Grundlage historischer Transaktionen.

