Büros
ID H1714Büroimmobilie - Hannover, List - H1714
List, 30161, Hannover, Niedersachsen
Provisionspflichtig: bei Anmietung 3 Brutto-Monatsmieten zzgl. gesetzlicher Umsatzsteuer.** der Wert kann je nach Vertragslaufzeit variieren.
13 € / m²
- Fläche469 - 2.876 m²
- VerfügbarkeitSofort
- Objekt
- Ausstattung
- Lage und Verkehrsanbindung
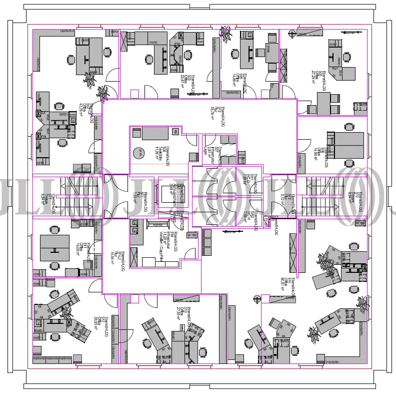
- Grundriss
- Exposé herunterladen
- Ihr Kontakt
Objekt
Herzlich willkommen in Ihrem zukünftigen Bürogebäude in Hannover-List. Diese moderne Immobilie bietet erstklassige Arbeitsräume mit flexiblen Grundrissen, die individuell an Ihre Bedürfnisse angepasst werden können. Profitieren Sie von hellen Räumen, moderner Ausstattung und hervorragender Anbindung an den öffentlichen Nahverkehr. Zahlreiche gastronomische Angebote und Einkaufsmöglichkeiten befinden sich in unmittelbarer Nähe und runden die ideale Arbeitsumgebung ab. Entdecken Sie Ihren neuen Arbeitsplatz in einem der beliebtesten Stadtteile Hannovers.
Der Business Park mit einer Gesamtnutzfläche von ca. 23.200 m² gliedert sich in 10 einzelne Bürogebäude, die teilweise miteinander verbunden sind. Als zentrale Anlaufstelle des Büroparks dient der begrünte Innenplatz. In der Tiefgarage stehen insgesamt 432 PKW-Stellplätze mit direktem Aufzug in jedes Gebäude für die Nutzer zur Verfügung. Über eine Rampe kann ein barrierefreier Zugang gewährleistet werden. Eine variable Aufteilung der Büroflächen ist gemäß der Ansprüche des Mieters möglich.
Ausstattung:
- Aufzug: vorhanden
- Bodenbelag: Teppichboden
- Beheizungsart: Fernwärme
- Beleuchtung: Einbauleuchten
- Decke: Abhangdecke
- Kabelführung: Hohlraumboden inkl. Bodentanks
- Sonnenschutz: außenliegend elektrisch
- Teeküche: vorhanden
Objektdetails:
- Etagenanzahl: 7 Etagen
- Büroflächen: 469 m² - ca. 1.511 m²
- Baujahr: 1993
- Zustand: gepflegt
- Verfügbar ab: sofort
Der Business Park mit einer Gesamtnutzfläche von ca. 23.200 m² gliedert sich in 10 einzelne Bürogebäude, die teilweise miteinander verbunden sind. Als zentrale Anlaufstelle des Büroparks dient der begrünte Innenplatz. In der Tiefgarage stehen insgesamt 432 PKW-Stellplätze mit direktem Aufzug in jedes Gebäude für die Nutzer zur Verfügung. Über eine Rampe kann ein barrierefreier Zugang gewährleistet werden. Eine variable Aufteilung der Büroflächen ist gemäß der Ansprüche des Mieters möglich.
Ausstattung:
- Aufzug: vorhanden
- Bodenbelag: Teppichboden
- Beheizungsart: Fernwärme
- Beleuchtung: Einbauleuchten
- Decke: Abhangdecke
- Kabelführung: Hohlraumboden inkl. Bodentanks
- Sonnenschutz: außenliegend elektrisch
- Teeküche: vorhanden
Objektdetails:
- Etagenanzahl: 7 Etagen
- Büroflächen: 469 m² - ca. 1.511 m²
- Baujahr: 1993
- Zustand: gepflegt
- Verfügbar ab: sofort
Zertifizierungen
Energieausweis
Für diese Liegenschaft liegt ein Verbrauchsausweis vom 2020-09-14 vom Eigentümer/Vermieter vor. Die wesentlichen Energieträger der Liegenschaft sind Heizwerk, fossil,Strom. Der Endenergieverbrauch Strom beträgt 43.90 kWh/(m²*a). Der Endenergieverbrauch Wärme beträgt 84.50 kWh/(m²*a).Verfügbare Fläche
Lage und Verkehrsanbindung
Die zentrale Lage im Hannoveraner Stadtteil List bietet Nähe zu allen wichtigen Eckpunkten Hannovers eine schnelle Anbindung an die Bundesautobahnen A2 und A7 sowie zum Flughafen Hannover-Langenhagen. Zudem bietet das Umfeld eine hervorragende Nahversorgung mit verschiedensten Cafés und Restaurants sowie Einkaufsmöglichkeiten und Dienstleistern des täglichen Bedarfs. Der Hauptbahnhof Hannover befindet sich in ca. 1 km Entfernung. Über diverse Bus- und Stadtbahnhaltestellen wird die ÖPNV-Anbindung gesichert. Eine Tankstelle befindet sich in der Nähe. Dienstleister des täglichen Bedarfs befinden sich in der Nähe. - Fußläufige Erreichbarkeit wichtiger Geschäftsviertel - Ärzte und medizinische Einrichtungen in unmittelbarer Nähe - Schulen und Bildungseinrichtungen im Umfeld - Vielfältige Gastronomie-Angebote (Restaurants, Cafés, Imbisse) - Einkaufsmöglichkeiten (Supermärkte, Einzelhandelsgeschäfte, Einkaufszentren) - Fitnessstudios und Sportanlagen - Hotels für Geschäftsreisende und Kunden - Banken und Finanzdienstleister - Post- und Paketdienste - Apotheken - Reinigungen und Wäschereien - Kindertagesstätten und Kindergärten - Bibliotheken und Mediatheken - Coworking Spaces und Konferenzzentren - Öffentliche Verwaltungseinrichtungen, Behörden und Polizeistation - Freizeitangebote für After-Work-Aktivitäten
- Flughafen, Hannover-Langenhagen, Fahrzeit: 15 min
- Bundesautobahn, A 2, Fahrzeit: 10 min
- Bundesautobahn, A 7, Fahrzeit: 18 min
- Bus, Bushaltestelle Kriegerstraße Buslinien 128, Gehzeit: 2 min
- Hauptbahnhof, Hauptbahnhof, Gehzeit: 15 min
- Hauptbahnhof, Hauptbahnhof, Fahrzeit: 5 min
Ihr Kontakt

Valentin Wiesemann
Ihr Kontakt
Marktinformationen
Mietmarkt
List, Hannover
siehe 10 passende MietobjekteErfahren Sie mehr
* Durchschnittspreis auf Grundlage historischer Transaktionen.



