Büros
ID H1483Provisionsfrei
Büroimmobilie - Hannover, List - H1483
List, 30177, Hannover, Niedersachsen
12,50 € / m²
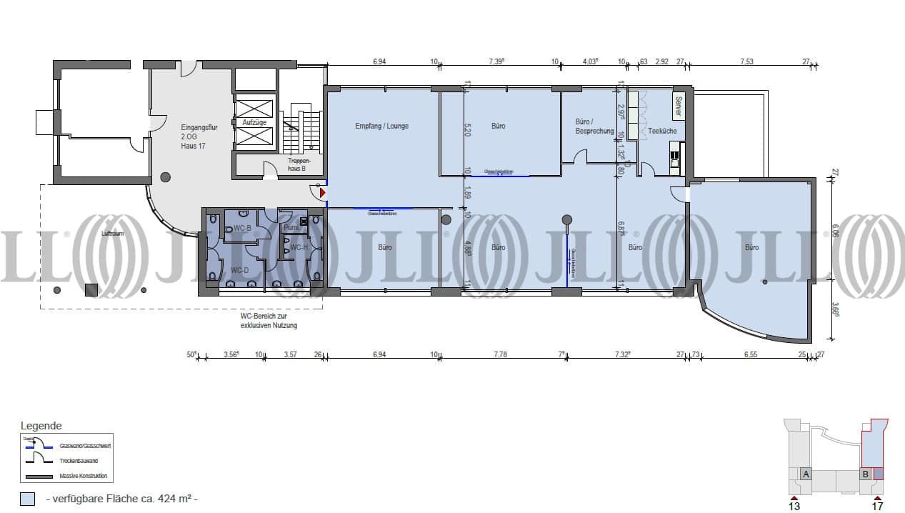
- Fläche424 - 878 m²
- VerfügbarkeitSofort
- Objekt
- Ausstattung
- Lage und Verkehrsanbindung
- Grundriss
- Exposé herunterladen
- Ihr Kontakt
- Anfrage senden
Objekt
Das Gebäude besticht durch die großen Fensterfronten sowie die charakteristische Außenfassade. Die Aufteilung der Bürofläche kann nach den Bedürfnissen des Mieters erfolgen. Es lassen sich alle gängigen Bürotypen darstellen. Des Weiteren lässt sich die Büroeinheit über das Treppenhaus, sowie über den Aufzug erreichen.
Zertifizierungen
Energieausweis
Für diese Liegenschaft liegt ein Bedarfsausweis vom 19.05.2020 vom Eigentümer/Vermieter vor. Der wesentliche Energieträger der Liegenschaft ist Fernwärme. Der Endenergiebedarf Strom beträgt 39,00 kWh/(m²*a). Der Endenergiebedarf Wärme beträgt 139,00 kWh/(m²*a).Verfügbare Fläche
Lage und Verkehrsanbindung
Die Liegenschaft befindet sich im historischen Pelikanviertel, in unmittelbarer Nähe zur Podbielskistraße, einer der Hauptverkehrsstraßen Hannovers. Die Umgebung bietet eine hervorragende Nahversorgung mit diversen Einkaufsmöglichkeiten und gastronomischen Angeboten. Die Anbindung an den ÖPNV erfolgt über die fußläufig erreichbare Stadtbahnhaltestelle Pelikanstraße sowie diverse umliegende Bushaltestellen. Der Messeschnellweg ist innerhalb weniger PKW-Minuten zugänglich. Eine Tankstelle befindet sich in der Nähe. Dienstleister des täglichen Bedarfs befinden sich in der Nähe.
- Flughafen, Hannover-Langenhagen, Fahrzeit: 20 min
- Bundesautobahn, A 2, Fahrzeit: 12 min
- Bundesautobahn, A 37, Fahrzeit: 15 min
- Bus, Bushaltestelle Vier Grenzen Buslinien 133, Gehzeit: 8 min
Ihr Kontakt

Sebastian Roth
Ihr Kontakt
Marktinformationen
Mietmarkt
List, Hannover
siehe 9 passende MietobjekteErfahren Sie mehr
* Durchschnittspreis auf Grundlage historischer Transaktionen.







