Büros
ID H0267Büroimmobilie - Hamburg, HafenCity - H0267
HafenCity, 20457, Hamburg, Hamburg
Provisionspflichtig: bei Anmietung 3 Brutto-Monatsmieten zzgl. gesetzlicher Umsatzsteuer.** der Wert kann je nach Vertragslaufzeit variieren.
Kontaktieren Sie uns für den Preis
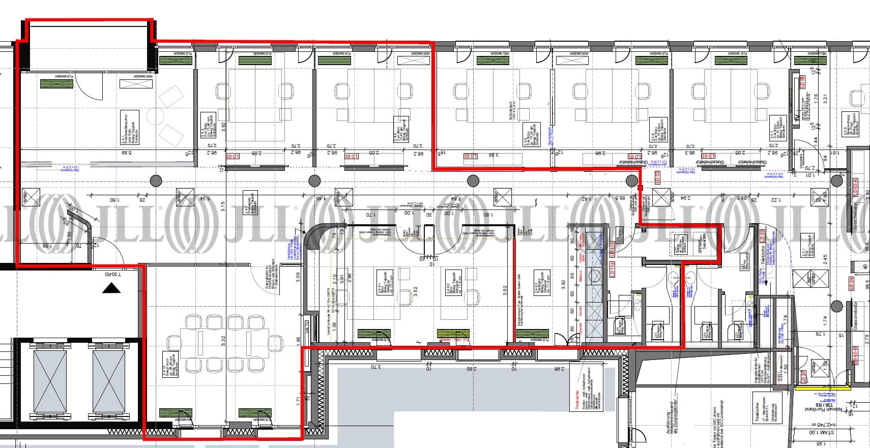
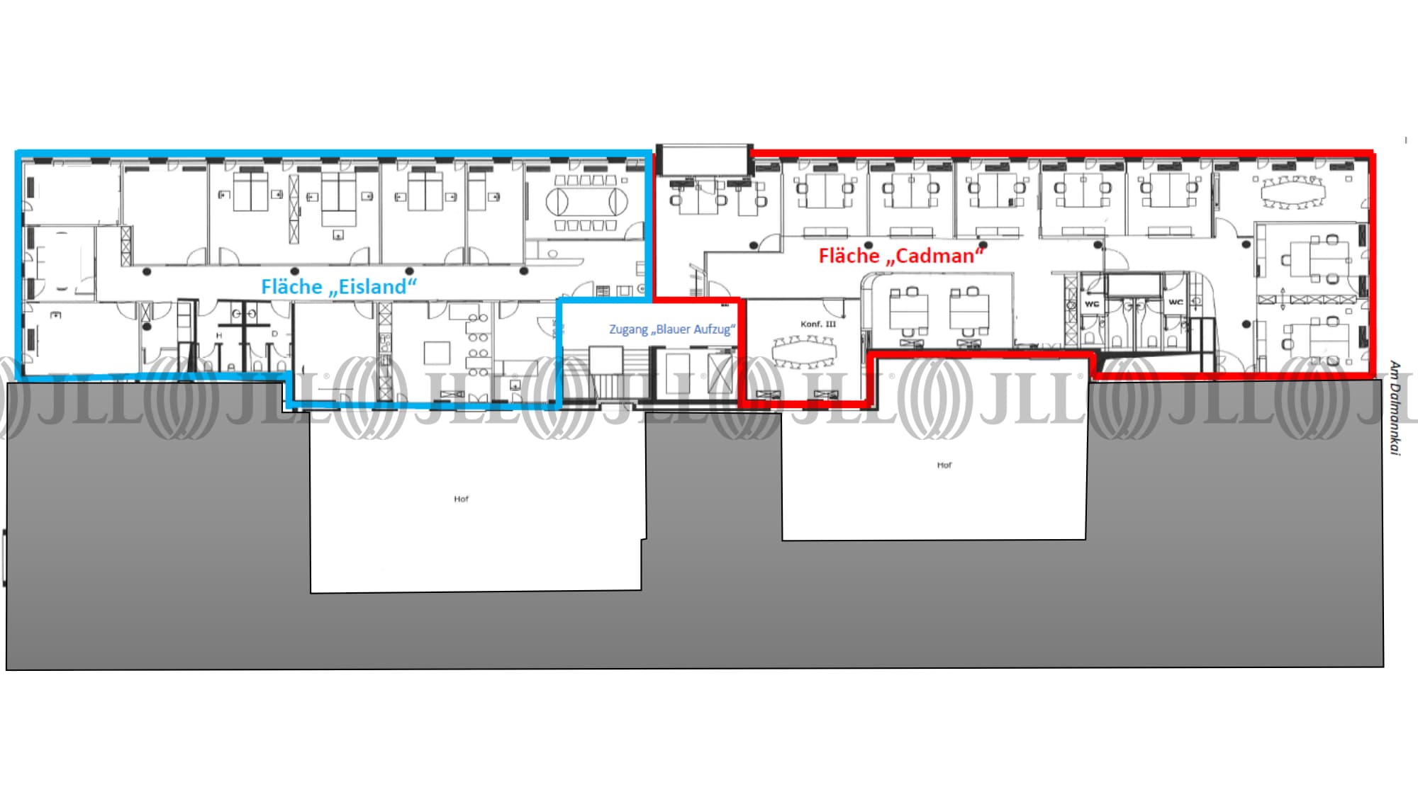
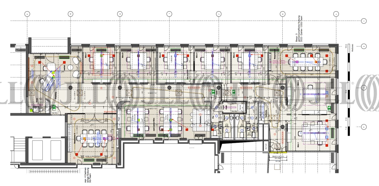
- Fläche370 - 1.529 m²
- VerfügbarkeitAuf Anfrage
- Objekt
- Ausstattung
- Lage und Verkehrsanbindung
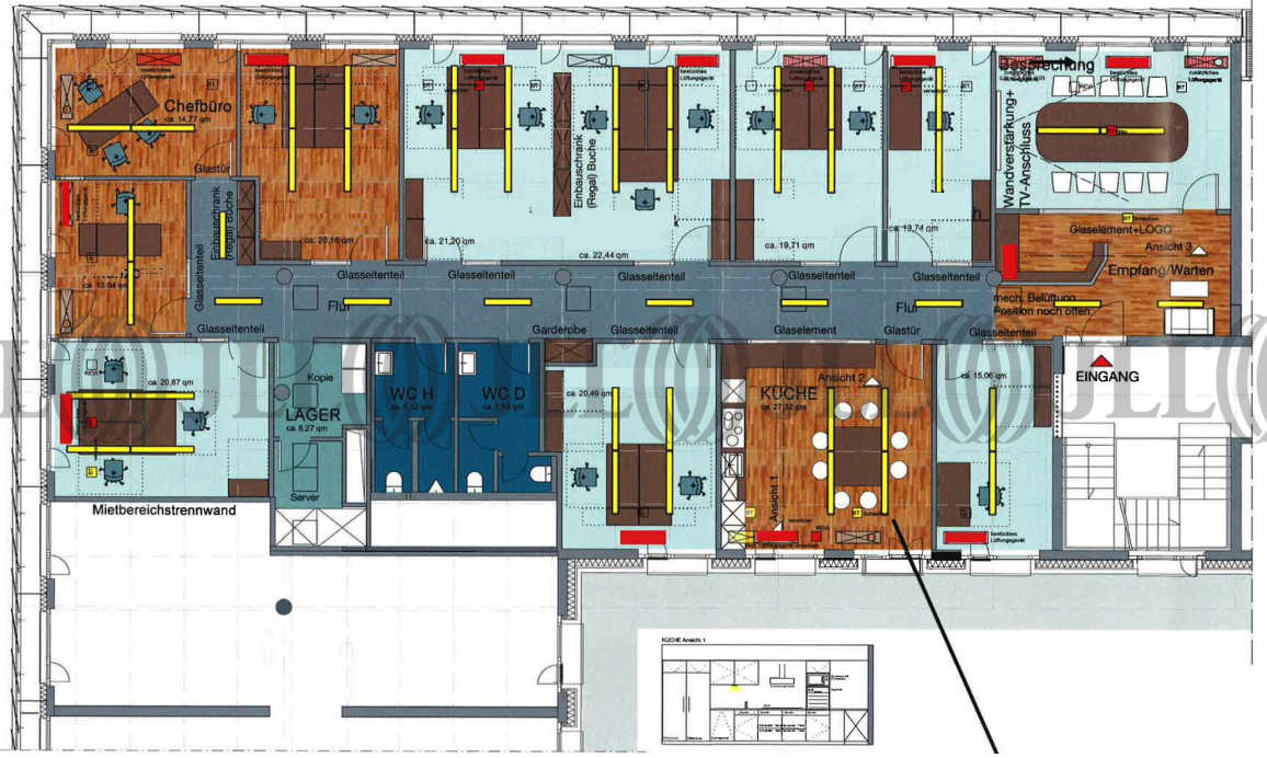
- Grundrisse
- Exposé herunterladen
- Ihr Kontakt
- Anfrage senden
Objekt
Dieses prestigeträchtige Objekt zeichnet sich durch die hochwertig in Szene gesetzten Stoffe aus, die den Bau in einem unvergleichlichem Glanz erscheinen lassen. Bis auf die verfügbare Fläche ist das Objekt vollvermietet, was für dieses Bürohaus spricht. Eine hochwertige Pantry Küche, Glaselemente, sowie viele weitere kleine Details verleihen diesem Gebäude einen ganz besonderen Charme.
Zertifizierungen
Energieausweis
DGNB: PlatinumFür diese Liegenschaft liegt ein Verbrauchsausweis vom 05.07.2018 vom Eigentümer/Vermieter vor. Die wesentlichen Energieträger der Liegenschaft sind Fernwärme, Strom. Der Endenergieverbrauch Strom beträgt 34.00 kWh/(m²*a). Der Endenergieverbrauch Wärme beträgt 70.00 kWh/(m²*a).
Verfügbare Fläche
Lage und Verkehrsanbindung
Das Objekt befindet sich in bester HafenCity Lage am Sandtorpark mit Blick zum Sandtorhafen. Dinge des täglichen Bedarfs sind ebenso wie zahlreiche gastronomische Highlights in direkter Umgebung. Darüber hinaus ist die U4-Bahnstation “Überseequartier” in nur wenigen Minuten fußläufig problemlos zu erreichen. Dienstleister des täglichen Bedarfs befinden sich in der Nähe.
- Flughafen, Hamburg, Fahrzeit: 25 min
- Bundesautobahn, A 1, Fahrzeit: 15 min
- Bundesautobahn, A 24, Fahrzeit: 15 min
- Bus, Bushaltestelle Marco-Pollo-Terassen Buslinien 111, Gehzeit: 2 min
Ihr Kontakt

Janina Voß
Ihr Kontakt
Marktinformationen
Mietmarkt
HafenCity, Hamburg
siehe 10 passende MietobjekteErfahren Sie mehr
* Durchschnittspreis auf Grundlage historischer Transaktionen.











