Büros
ID H0253Provisionsfrei
Büroimmobilie - Hamburg, HafenCity - H0253
HafenCity, 20457, Hamburg, Hamburg
22 € / m²
- Fläche208 - 4.438 m²
- VerfügbarkeitSofort
- Objekt
- Ausstattung
- Lage und Verkehrsanbindung
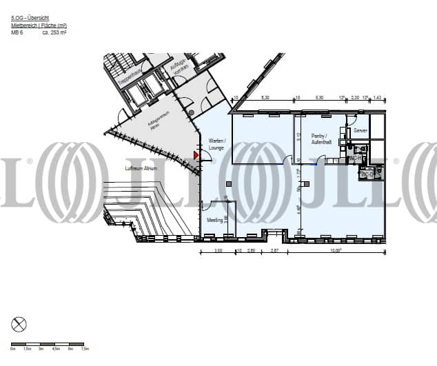
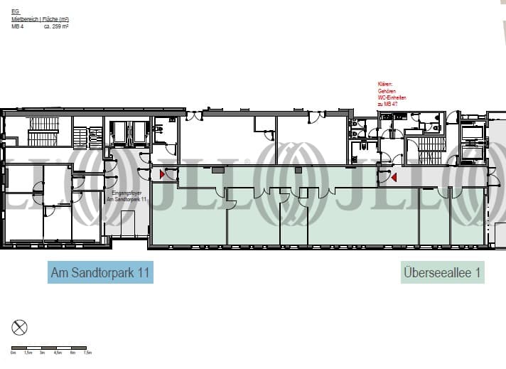
- Grundrisse
- Exposé herunterladen
- Ihr Kontakt
- Anfrage senden
Objekt
Dieses Büro-/ Wohn- und Geschäftshaus wurde im Jahr 2010 fertiggestellt. Es fasziniert auf den ersten Blick durch seine plastische und geneigte Fassade. Das Sumatrakontor ist Bestandteil des Überseequartiers, welches durch eine Vielfalt an exklusivem Einzelhandel, Gastronomie sowie anregender Kultur überzeugt.
Zertifizierungen
Energieausweis
LEED: CertifiedFür diese Liegenschaft liegt ein Bedarfsausweis vom 25.10.2021 vom Eigentümer/Vermieter vor. Die wesentlichen Energieträger der Liegenschaft sind Fernwärme, Heizwerk, fossil, KWK, Nahwärme. Der Endenergiebedarf Strom beträgt 44.00 kWh/(m²*a). Der Endenergiebedarf Wärme beträgt 113.00 kWh/(m²*a).
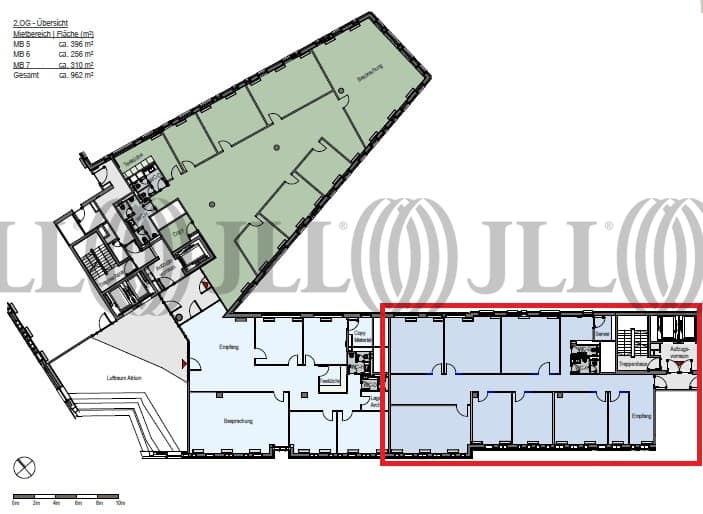
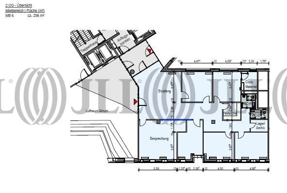
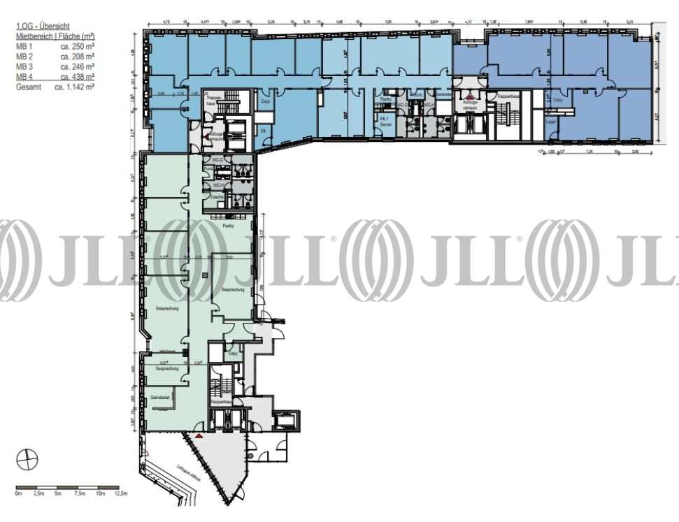
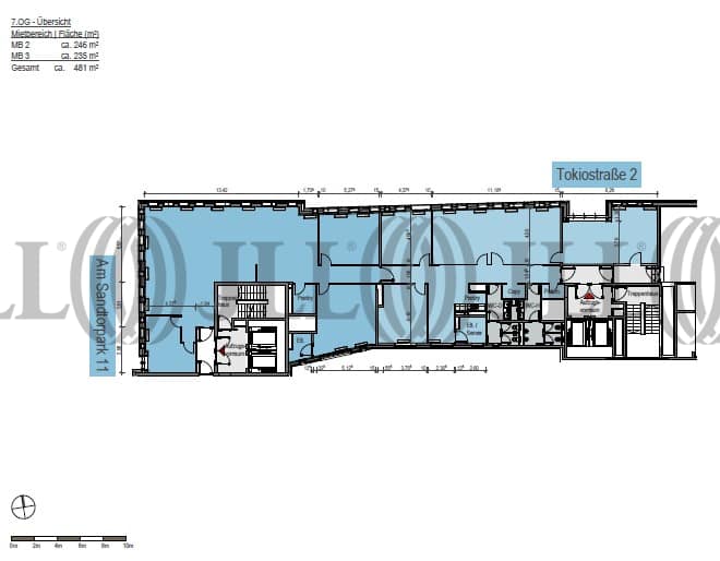
Verfügbare Fläche
Lage und Verkehrsanbindung
Der Sumatrakontor befindet sich in einer der attraktivsten und modernsten Lagen Hamburgs – im Herzen der HafenCity, Europas größtem innerstädtischen Stadtentwicklungsprojekt. Die Immobilie profitiert von der einzigartigen Kombination aus maritimem Flair, urbaner Infrastruktur und hervorragender Verkehrsanbindung. Die zentrale Lage zwischen der UNESCO-Weltkulturerbe Speicherstadt und der modernen HafenCity positioniert den Sumatrakontor in einem etablierten Büro- und Dienstleistungsstandort mit renommierten Nachbarunternehmen. Die Nahversorgung mit vielfältigen Einkaufsmöglichkeiten, hochwertiger Gastronomie und die kulturellen Highlights wie die Elbphilharmonie und das Maritime Museum schaffen ein attraktives Arbeitsumfeld. Die maritime Atmosphäre mit Wasserlage, Promenadenwegen und Marina verleiht dem Standort ein besonderes Flair und macht ihn zu einer repräsentativen Adresse in einem der dynamischsten Quartiere der Hansestadt.
- Flughafen, Hamburg, Fahrzeit: 30 min
- Bundesautobahn, A 1, Fahrzeit: 15 min
- Bundesautobahn, A 7, Fahrzeit: 20 min
- Bundesautobahn, A 24, Fahrzeit: 13 min
- Bus, Bushaltestelle Osakaallee Buslinien 111, Gehzeit: 5 min
- U-Bahn, Überseequartier, Gehzeit: 3 min
Ihr Kontakt

Zainab Bo-Hamdan
Ihr Kontakt
Marktinformationen
Mietmarkt
HafenCity, Hamburg
Gew. Ø-Miete
22 € / m²
siehe 10 passende MietobjekteErfahren Sie mehr* Durchschnittspreis auf Grundlage historischer Transaktionen.


