Büros
ID H0214Provisionsfrei
Büroimmobilie - Hamburg, HafenCity - H0214
HafenCity, 20457, Hamburg, Hamburg
18 € / m²
- Fläche142 - 3.908 m²
- VerfügbarkeitSofort
- Objekt
- Ausstattung
- Lage und Verkehrsanbindung
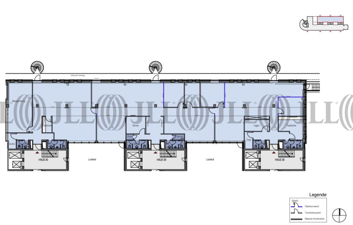
- Grundrisse
- Exposé herunterladen
- Ihr Kontakt
- Anfrage senden
Objekt
Dieses repräsentative Büro- und Geschäftshaus präsentiert sich in markanter Lage. Von hier aus haben Sie einen spektakulären Blick auf die Elbphilharmonie und den Hamburger Hafen. Die Büroflächen - teilweise mit Dachterrasse und Balkonen - werden in Absprache mit dem Mieter aufgeteilt und ausgebaut.
Zertifizierungen
Energieausweis
Für diese Liegenschaft liegt ein Verbrauchsausweis vom 09.06.2020 vom Eigentümer/Vermieter vor. Die wesentlichen Energieträger der Liegenschaft sind Fernwärme, Strom. Der Endenergieverbrauch Strom beträgt 40,00 kWh/(m²*a). Der Endenergieverbrauch Wärme beträgt 57,00 kWh/(m²*a).Verfügbare Fläche
Lage und Verkehrsanbindung
Das Vermietungsobjekt befindet sich in der HafenCity, Hamburgs modernstem Stadtteil direkt an der Elbe. Die Premium-Lage bietet exzellente Verkehrsanbindung über die U4-Station HafenCity Universität sowie direkten Zugang zur Innenstadt und den Hauptverkehrsachsen. Das Umfeld ist geprägt von hochmodernen Bürogebäuden, der HafenCity Universität, gehobener Gastronomie und kulturellen Einrichtungen wie der nahegelegenen Elbphilharmonie. Die Wasserlage mit Hafenblick, die zeitgemäße Infrastruktur und die Nähe zu internationalen Unternehmen machen diese Adresse zu einem der prestigeträchtigsten und zukunftsorientiertesten Geschäftsstandorte Hamburgs mit höchster Attraktivität für Mitarbeiter und Geschäftspartner.
- Hauptbahnhof, Hauptbahnhof, Entfernung: 3 km
- U-Bahn, Baumwall, Gehzeit: 3 min
- Bundesautobahn, A 1, Fahrzeit: 13 min
- Bundesautobahn, A 7, Fahrzeit: 14 min
- Flughafen, Hamburg, Fahrzeit: 27 min
Ihr Kontakt

Jan-Philipp Scheibe
Ihr Kontakt
Marktinformationen
Mietmarkt
HafenCity, Hamburg
Gew. Ø-Miete
18 € / m²
siehe 11 passende MietobjekteErfahren Sie mehr* Durchschnittspreis auf Grundlage historischer Transaktionen.








