Büros
ID F3157Provisionsfrei
Aktualisiert
Büroimmobilie - Frankfurt am Main, Bahnhofsviertel - F3157
Bahnhofsviertel, 60329, Frankfurt am Main, Hessen
22,90 € / m²
- Fläche195 m²
- VerfügbarkeitSofort
- Objekt
- Ausstattung
- Lage und Verkehrsanbindung
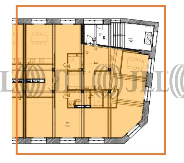
- Grundriss
- Exposé herunterladen
- Ihr Kontakt
- Anfrage senden
Objekt
Die stilvollen Büroflächen bieten nicht nur eine beeindruckende Architektur, sondern auch eine erstklassige Ausstattung, die keine Wünsche offen lässt. Das unter Denkmalschutz stehende Gebäude mit seiner historischen Jugendstil/Sandsteinfassade wurde 1910 erbaut und kürzlich einer umfassenden Sanierung unterzogen. Die großzügigen, weiß angelegten Räume mit hohen Decken, raumhohen Glaswänden und großen olivgrünen bzw. oxidroten Fensterrahmen aus Holz bieten eine agile und kreative Arbeitsumgebung kombiniert mit modernster Technik wie u.a. Telekom-Glasfaseranschluss für High-Speed Internet sowie eine vor konditionierte Be- und Entlüftung mit Sommer/Winter-Modus.
Zertifizierungen
Energieausweis
Für diese Liegenschaft liegt ein Bedarfsausweis vom 07.11.2023 vom Eigentümer/Vermieter vor. Die wesentlichen Energieträger der Liegenschaft sind Fernwärme, Strom. Der Endenergiebedarf Strom beträgt 46,3 kWh/(m²*a). Der Endenergiebedarf Wärme beträgt 214.2 kWh/(m²*a).Verfügbare Fläche
Lage und Verkehrsanbindung
Das Objekt befindet sich nahe dem Willy-Brandt-Platz/Schauspielhaus und dem traditionellen Frankfurter Bankenviertel. Das Intercontinental Hotel befindet sich in unmittelbarer Nähe. Über die U-Bahn-Stationen Willy-Brand-Platz und Baseler Platz besteht eine gute Anbindung an den öffentlichen Personennahverkehr. Die Anbindung zum Frankfurter Kreuz sowie zum Rhein-Main-Flughafen ist über das Westkreuz Frankfurt (A648/A66/A5) in wenigen Fahrtminuten erreichbar.
- Flughafen, Frankfurt am Main, Fahrzeit: 12 min
- Bundesautobahn, A 3, Fahrzeit: 10 min
- Bundesautobahn, A 5, Fahrzeit: 10 min
- Hauptbahnhof, Frankfurt am Main, Fahrzeit: 4 min
- Hauptbahnhof, Frankfurt am Main, Gehzeit: 3 min
- Straßenbahn/Tram, Frankfurt Hbf / Münchener Straße, Linie 11, 12, 14, 18, 22, Gehzeit: 4 min
- Bus, Weser / Münchener Straße, Linie N5, N5, N11, N12, Gehzeit: 3 min
Ihr Kontakt

Isha Pundir
Ihr Kontakt
Marktinformationen
Mietmarkt
Bahnhofsviertel, Frankfurt am Main
Gew. Ø-Miete
22,90 € / m²
siehe 39 passende MietobjekteErfahren Sie mehr* Durchschnittspreis auf Grundlage historischer Transaktionen.

















