Büros
ID F2805Provisionsfrei
Aktualisiert
Büroimmobilie - Frankfurt am Main, Bahnhofsviertel - F2805
Bahnhofsviertel, 60329, Frankfurt am Main, Hessen
19,90 € / m²
- Fläche167 - 1.053 m²
- VerfügbarkeitSofort
- Objekt
- Ausstattung
- Lage und Verkehrsanbindung
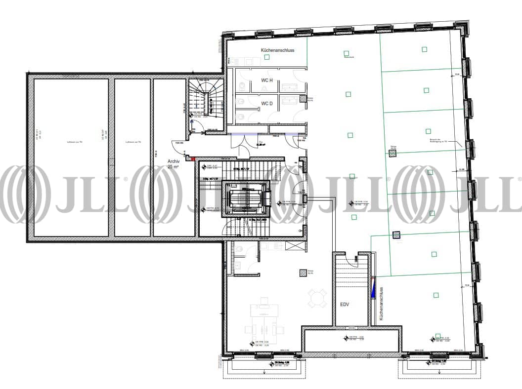
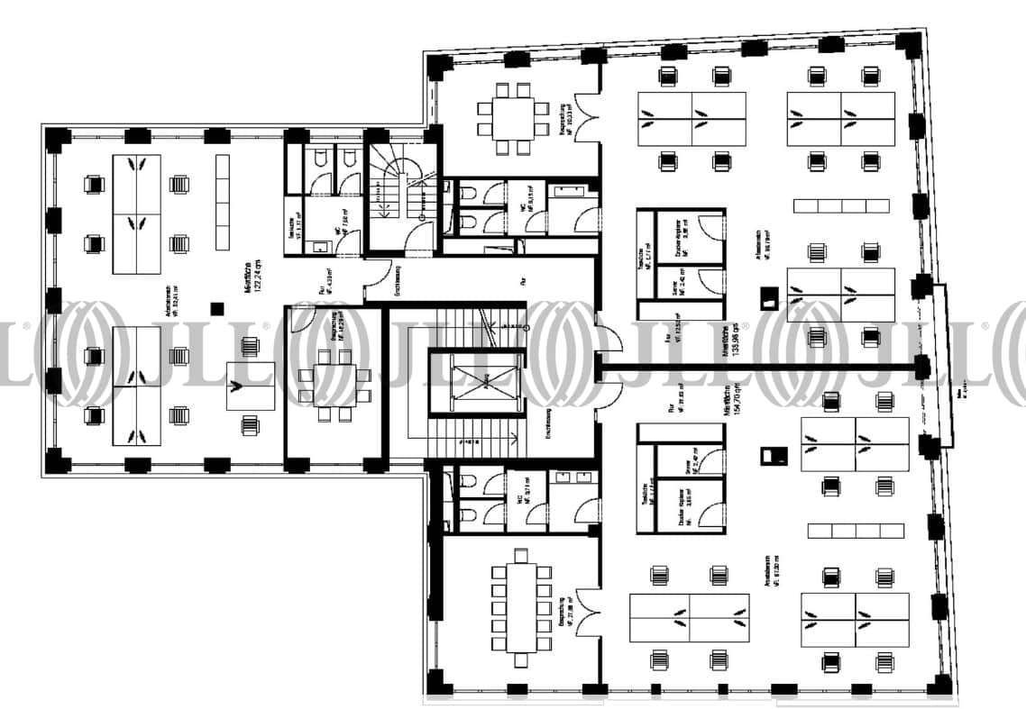
- Grundrisse
- Exposé herunterladen
- Ihr Kontakt
- Anfrage senden
Objekt
Die Premium Büroflächen nach neusten Standards, mit energetischer Heiz- und Kühlfunktion, Lüftungsanlage mit Wärmerückgewinnung, verfügen zudem über bodentiefe umlaufende Austritte und Balkone, zum Teil auch Dachterrassen. Flexible Grundrisse mit effizienter Flächennutzung machen Einzel-, Kombi-, Großraumbürolösungen möglich.
Verfügbare Fläche
Lage und Verkehrsanbindung
- Flughafen, Frankfurt am Main, Fahrzeit: 17 min
- Bundesautobahn, A 648, Fahrzeit: 10 min
- Bundesautobahn, A 5, Fahrzeit: 15 min
- Hauptbahnhof, Frankfurt am Main, Fahrzeit: 3 min
- Straßenbahn/Tram, Baseler Platz, Linie 12, 15, 16, 17, 18, 19, 20, 21, Gehzeit: 7 min
- Bus, Baseler Platz, Linie 64, Gehzeit: 7 min
- U-Bahn, Willy-Brandt-Platz, Linie 11, 12, 14, 18, Gehzeit: 8 min
Ihr Kontakt

Isha Pundir
Ihr Kontakt
Marktinformationen
Mietmarkt
Bahnhofsviertel, Frankfurt am Main
Gew. Ø-Miete
19,90 € / m²
siehe 37 passende MietobjekteErfahren Sie mehr* Durchschnittspreis auf Grundlage historischer Transaktionen.

























