Büros
ID F2289Provisionsfrei
Aktualisiert
Büroimmobilie - Frankfurt am Main, Bahnhofsviertel - F2289
Bahnhofsviertel, 60329, Frankfurt am Main, Hessen
21 € / m²
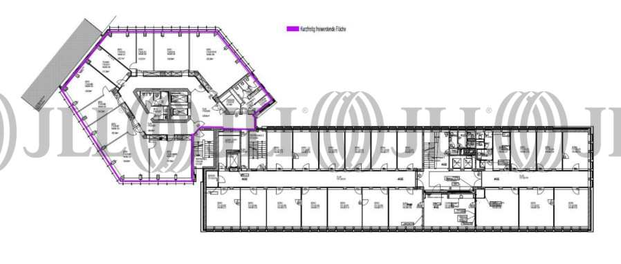
- Fläche360 m²
- VerfügbarkeitSofort
- Objekt
- Ausstattung
- Lage und Verkehrsanbindung
- Grundriss
- Exposé herunterladen
- Ihr Kontakt
- Anfrage senden
Objekt
Bei der Liegenschaft handelt es sich um ein 14-geschossiges Gebäude, das in 2015 totalsaniert wurde. Die Büroflächen sind qualitativ hochwertig ausgestattet.
Verfügbare Fläche
Lage und Verkehrsanbindung
- Flughafen, Frankfurt am Main, Fahrzeit: 17 min
- Bundesautobahn, A 648, Fahrzeit: 5 min
- Bundesautobahn, A 5, Fahrzeit: 10 min
- Straßenbahn/Tram, Platz der Republik, Linie 11, 16, 17, 21, Gehzeit: 11 min
- Hauptbahnhof, Frankfurt am Main, Fahrzeit: 4 min
Ihr Kontakt

Isha Pundir
Ihr Kontakt
Marktinformationen
Mietmarkt
Bahnhofsviertel, Frankfurt am Main
Gew. Ø-Miete
21 € / m²
siehe 38 passende MietobjekteErfahren Sie mehr* Durchschnittspreis auf Grundlage historischer Transaktionen.





