Büros
ID F1976Provisionsfrei
Aktualisiert
Büroimmobilie - Frankfurt am Main, Bahnhofsviertel - F1976
Bahnhofsviertel, 60329, Frankfurt am Main, Hessen
12,78 € / m²
- Fläche313 - 647 m²
- VerfügbarkeitSofort
- Objekt
- Ausstattung
- Lage und Verkehrsanbindung
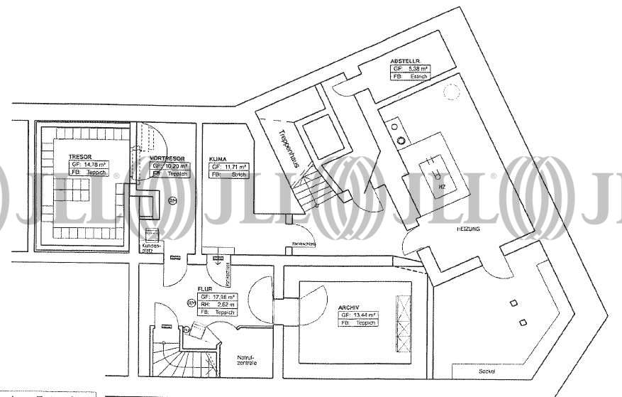
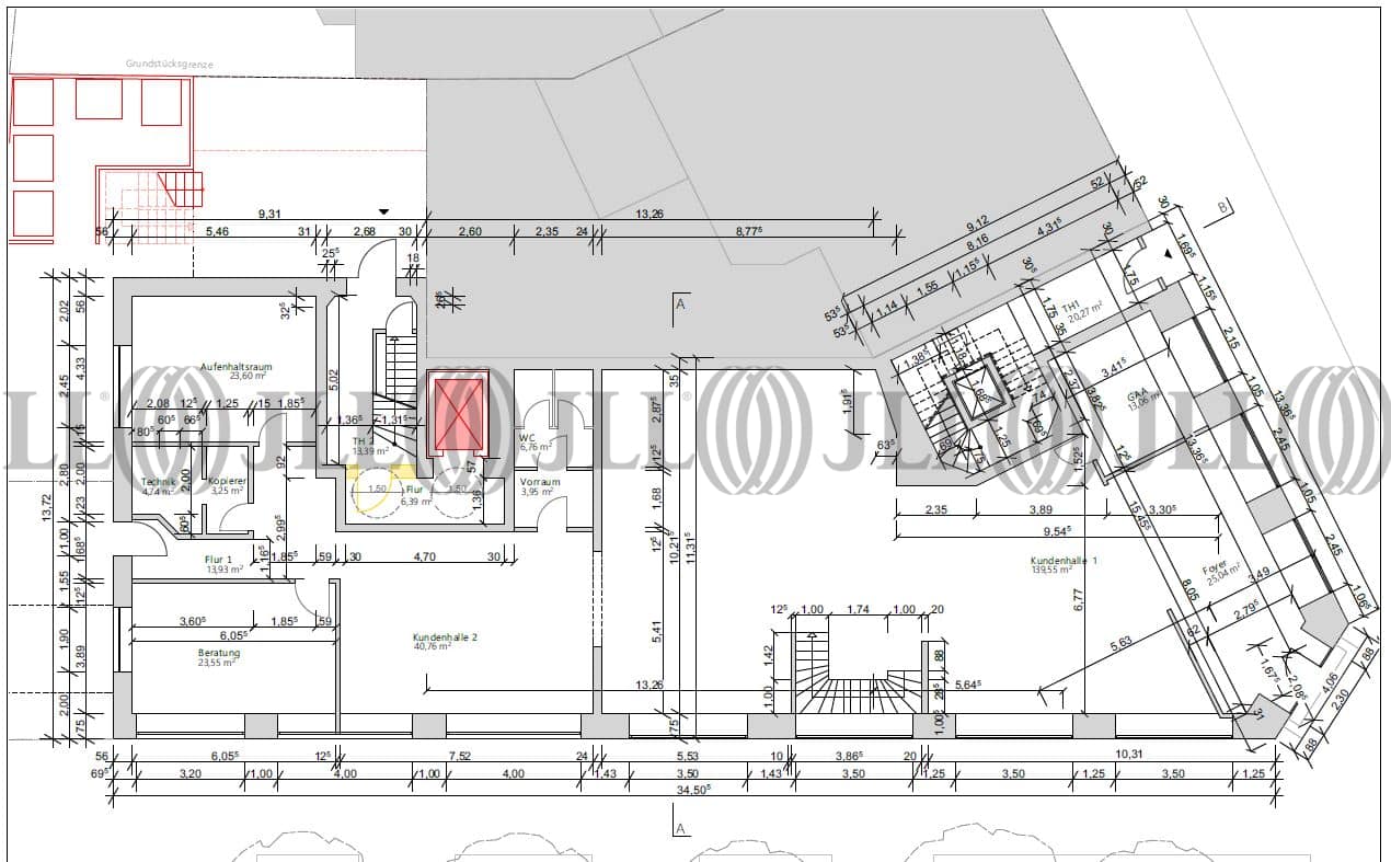
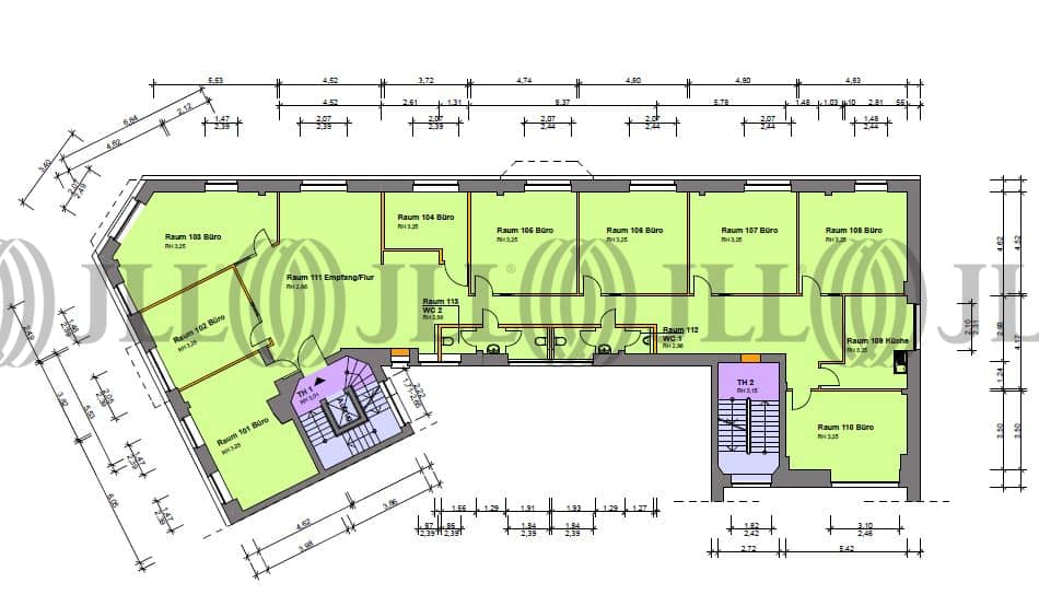
- Grundrisse
- Exposé herunterladen
- Ihr Kontakt
- Anfrage senden
Objekt
Bei der Liegenschaft handelt es sich um ein repräsentatives Büro- und Geschäftshaus. Der repräsentative und moderne Eingangsbereich und die Aufzugsanlage wurden aufwendig saniert. Die Büroflächen sind hell, freundlich und bieten eine effiziente Raumaufteilung.
Verfügbare Fläche
Lage und Verkehrsanbindung
Das Gebäude befindet sich zwischen dem Hauptbahnhof und dem Platz der Republik. Dadurch ist eine hervorragende Anbindung an den öffentlichen Nahverkehr gegeben.
- Flughafen, Frankfurt am Main, Fahrzeit: 17 min
- Bundesautobahn, A 648, Fahrzeit: 5 min
- Bundesautobahn, A 5, Fahrzeit: 10 min
- Straßenbahn/Tram, Platz der Republik, Linie 11, 16, 17, 21, Gehzeit: 1 min
- Hauptbahnhof, Frankfurt am Main, Fahrzeit: 2 min
- Hauptbahnhof, Frankfurt am Main, Gehzeit: 5 min
Ihr Kontakt

Isha Pundir
Ihr Kontakt
Marktinformationen
Mietmarkt
Bahnhofsviertel, Frankfurt am Main
Gew. Ø-Miete
12,78 € / m²
siehe 38 passende MietobjekteErfahren Sie mehr* Durchschnittspreis auf Grundlage historischer Transaktionen.


