Büros
ID F1858Provisionsfrei
Büroimmobilie - Bensheim - F1858
64625, Bensheim, Hessen
Kontaktieren Sie uns für den Preis
- Fläche720 - 3.941 m²
- VerfügbarkeitAuf Anfrage
- Objekt
- Ausstattung
- Lage und Verkehrsanbindung
- Grundrisse
- Exposé herunterladen
- Ihr Kontakt
- Anfrage senden
Objekt
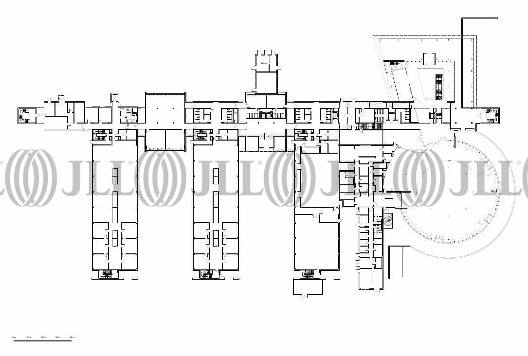
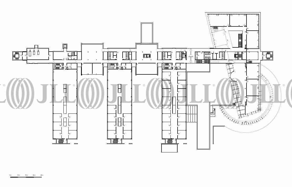
Der Gebäudekomplex befindet sich auf einem 40.000m² großen Grundstück und besteht aus parallel angeordneten, viergeschossigen Büroteilen (C-E), welche durch den Bauteil B verbunden sind. Die Empfangshalle, das Casino sowie der Konferenzbereich befinden sich in einem zweigeschossigen, raumhoch verglasten Rundbau (A) an der Nordseite des Geländes. Die Nutzungsfläche teilt sich auf in Büro- und Konferenzflächen sowie allgemeine Kommunikationszonen. Hervorzuheben ist der großflächig angelegte Teich, an welchem die mit Sitzfläche ausgestattete Terrasse des Casinos anschließt.
Die großzügigen, stützenfreien Innenräume, mit den flexibel nutzbaren Büroflächen, sind geeignet für die verschiedenstenen modernen Büroraumformen und bieten, je nach Konzept, Platz für 700-900 Arbeitsplätze. Das Casino verfügt über eine Kapazität von bis zu 400 Personen, die Küche kann bis zu 800 Mahlzeiten/Tag produzieren.
Die großzügigen, stützenfreien Innenräume, mit den flexibel nutzbaren Büroflächen, sind geeignet für die verschiedenstenen modernen Büroraumformen und bieten, je nach Konzept, Platz für 700-900 Arbeitsplätze. Das Casino verfügt über eine Kapazität von bis zu 400 Personen, die Küche kann bis zu 800 Mahlzeiten/Tag produzieren.
Zertifizierungen
Energieausweis
Für diese Liegenschaft liegt ein Verbrauchsausweis vom 2015-12-10 vom Eigentümer/Vermieter vor. Der wesentliche Energieträger der Liegenschaft ist Erdgas leicht. Der Endenergieverbrauch Strom beträgt 117.00 kWh/(m²*a). Der Endenergieverbrauch Wärme beträgt 91.00 kWh/(m²*a).Verfügbare Fläche
Lage und Verkehrsanbindung
Bensheim ist mit ca. 40.000 Einwohnern die größte Stadt im Landkreis Bergstraße. Die Stadt weist eine seit Jahren überdurchschnittliche Bevölkerungsentwicklung auf mit einer niedrigen Arbeitslosenquote von nur 4%, einem besonders hohen Akademikeranteil und einer überdurchschnittlichen Kaufkraft. In Bensheim befindet sich ein ausgewogener Branchenmix von internationalen und mittelständischen Unternehmen aus den Bereichen Software, Elektrotechnik, Kunststoffverarbeitung und Dienstleistung. Unternehmen wie Suzuki International Europe, Sirona Dental Systems GmbH, Kern GmbH (Kuvertiersysteme), Tyco Electronics AMP GmbH, HTV GmbH (Elektronik) haben ihren Sitz in Bensheim und profitieren von einem niedrigen Gewerbesteuerhebesatz von 355%. Eine Tankstelle befindet sich in der Nähe.
- Flughafen, Frankfurt am Main, Fahrzeit: 30 min
- Bundesautobahn, A 5, Fahrzeit: 5 min
- Bundesautobahn, A 67, Fahrzeit: 5 min
- Bus, Bushaltestelle Albert-Einstein-Allee Buslinien 674, Gehzeit: 1 min
Ihr Kontakt

Konstantinos Krikelis
Ihr Kontakt





