Büros
ID F1002Provisionsfrei
Aktualisiert
Büroimmobilie - Frankfurt am Main, Bahnhofsviertel - F1002
Bahnhofsviertel, 60329, Frankfurt am Main, Hessen
29,50 € / m²
- Fläche201 - 1.739 m²
- VerfügbarkeitAuf Anfrage
- Objekt
- Ausstattung
- Lage und Verkehrsanbindung
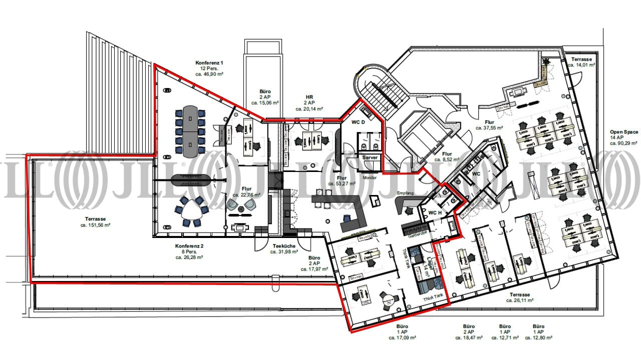
- Grundrisse
- Exposé herunterladen
- Ihr Kontakt
- Anfrage senden
Objekt
Ein Objekt mit einprägsamer Architektur. Charakteristisch ist die vertikale Zweiteilung des Bauwerks. Der obere Gebäudeteil erscheint als Würfel, der im 45-Grad-Winkel gedreht auf der Basis ruht. Das Gebäude öffnet sich nach außen mit einem großzügigen Glaskubus, der in einen ausdrucksstarken Empfang übergeht.
Zertifizierungen
Energieausweis
Für diese Liegenschaft liegt ein Bedarfsausweis vom 03.09.2014 vom Eigentümer/Vermieter vor. Die wesentlichen Energieträger der Liegenschaft sind Heizwerk, fossil, Strom. Der Endenergiebedarf Strom beträgt 58.60 kWh/(m²*a). Der Endenergiebedarf Wärme beträgt 67.50 kWh/(m²*a).Verfügbare Fläche
Lage und Verkehrsanbindung
- Flughafen, Frankfurt am Main, Fahrzeit: 16 min
- Bundesautobahn, A 648, Fahrzeit: 5 min
- Bundesautobahn, A 5, Fahrzeit: 10 min
- Hauptbahnhof, Frankfurt am Main, Fahrzeit: 7 min
- S-Bahn, Taunusanlage, Linie S1, S2, S3, S4, S5, S6, S8, S9, Gehzeit: 3 min
- Straßenbahn/Tram, Platz der Republik, Linie 11, 16, 17, 21, Gehzeit: 3 min
Ihr Kontakt

Isha Pundir
Ihr Kontakt
Marktinformationen
Mietmarkt
Bahnhofsviertel, Frankfurt am Main
Gew. Ø-Miete
29,50 € / m²
siehe 38 passende MietobjekteErfahren Sie mehr* Durchschnittspreis auf Grundlage historischer Transaktionen.


























