
Büros
ID F0907Provisionsfrei
Büroimmobilie - Frankfurt am Main, Bahnhofsviertel - F0907
Bahnhofsviertel, 60329, Frankfurt am Main, Hessen
17 € / m²
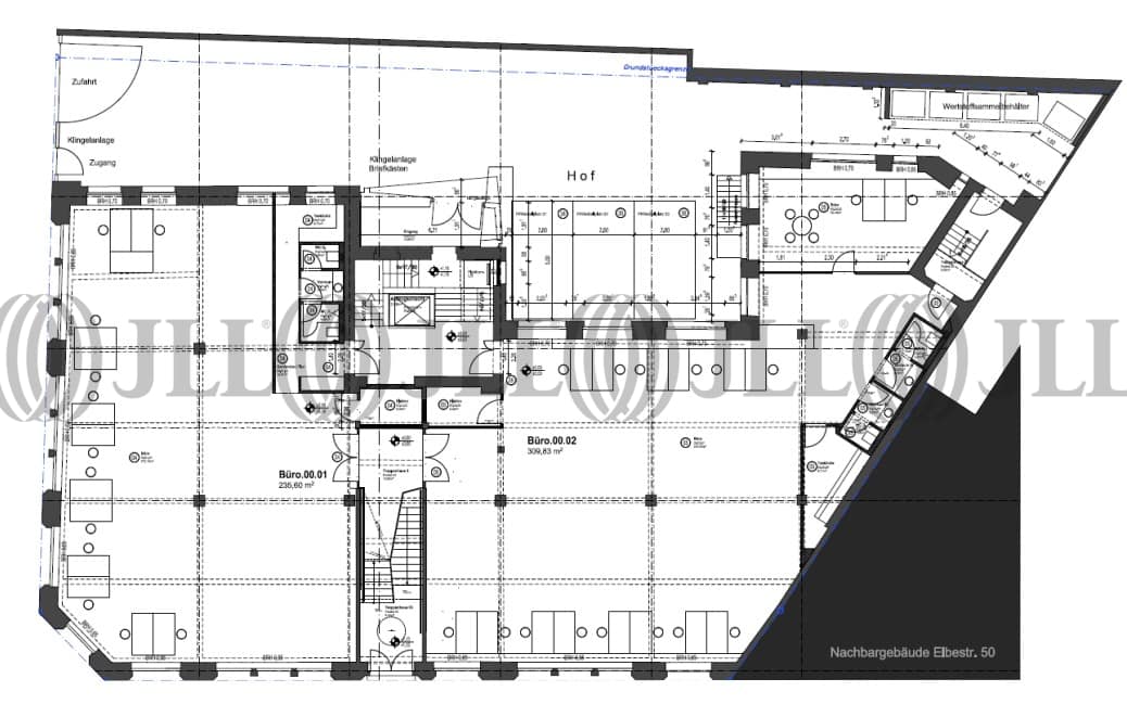
- Fläche236 - 1.058 m²
- VerfügbarkeitSofort
- Objekt
- Ausstattung
- Lage und Verkehrsanbindung
- Grundrisse
- Exposé herunterladen
- Ihr Kontakt
- Anfrage senden
Objekt
Der 5-geschossige Stilaltbau aus der Jahrhundertwende bietet hochwertige Büroflächen. Die Flächen verfügen über eine hochwertige Ausstattung und können nach Mieterwunsch aufgeteilt werden. Zudem ist eine Fußbodenheizung vorhanden.
Zu den ausgewiesenen Außenstellplätze im Haus können weitere 8 Stellplätze im Nachbarhaus zu 190 €/Stellplatz angemietet werden.
Zu den ausgewiesenen Außenstellplätze im Haus können weitere 8 Stellplätze im Nachbarhaus zu 190 €/Stellplatz angemietet werden.
Verfügbare Fläche
Lage und Verkehrsanbindung
- Flughafen, Frankfurt am Main, Fahrzeit: 16 min
- Bundesautobahn, A 648, Fahrzeit: 6 min
- Bus, Bushaltestelle Francois-Mitterrand-Platz Buslinien 64, Gehzeit: 3 min
Ihr Kontakt

Genia Eitan
Ihr Kontakt
Marktinformationen
Mietmarkt
Bahnhofsviertel, Frankfurt am Main
Gew. Ø-Miete
17 € / m²
siehe 39 passende MietobjekteErfahren Sie mehr* Durchschnittspreis auf Grundlage historischer Transaktionen.