
Büros
ID F0885Büroimmobilie - Frankfurt am Main, Bahnhofsviertel - F0885
Bahnhofsviertel, 60329, Frankfurt am Main, Hessen
Provisionspflichtig: bei Anmietung 4 Netto-Monatsmieten zzgl. gesetzlicher Umsatzsteuer.** der Wert kann je nach Vertragslaufzeit variieren.
13,50 € / m²
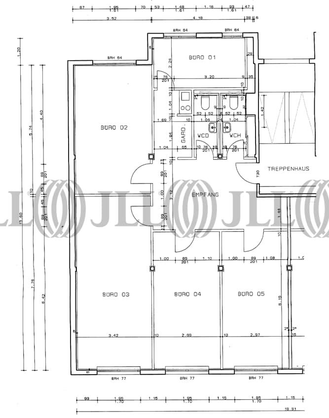
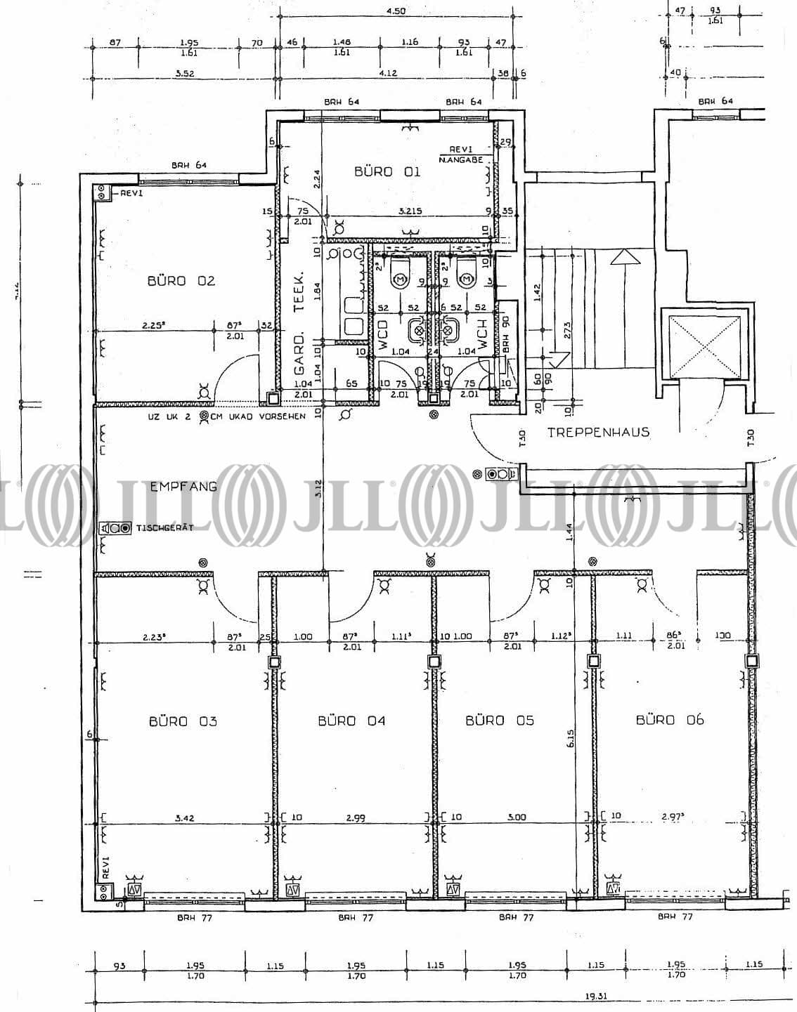
- Fläche125 - 280 m²
- VerfügbarkeitSofort
- Objekt
- Ausstattung
- Lage und Verkehrsanbindung
- Grundrisse
- Exposé herunterladen
- Ihr Kontakt
- Anfrage senden
Objekt
Bei der Liegenschaft handelt es sich um ein 6-geschossiges Bürogebäude mit einem repräsentativen und hochwertigen Eingangsbereich aus Granit.
Verfügbare Fläche
Lage und Verkehrsanbindung
- Hauptbahnhof, Frankfurt am Main, Gehzeit: 3 min
- Straßenbahn/Tram, Münchener Straße, Linie 11, 12, Gehzeit: 1 min
- Bundesautobahn, A 648, Fahrzeit: 5 min
- Bundesautobahn, A 5, Fahrzeit: 10 min
- Flughafen, Frankfurt am Main, Fahrzeit: 17 min
Ihr Kontakt

Irini Fenner
Ihr Kontakt
Marktinformationen
Mietmarkt
Bahnhofsviertel, Frankfurt am Main
Gew. Ø-Miete
13,50 € / m²
siehe 40 passende MietobjekteErfahren Sie mehr* Durchschnittspreis auf Grundlage historischer Transaktionen.