Büros
ID F0651Provisionsfrei
Büroimmobilie - Frankfurt am Main, Bahnhofsviertel - F0651
Bahnhofsviertel, 60329, Frankfurt am Main, Hessen
21 € / m²
- Fläche118 - 1.117 m²
- VerfügbarkeitSofort
- Objekt
- Ausstattung
- Lage und Verkehrsanbindung
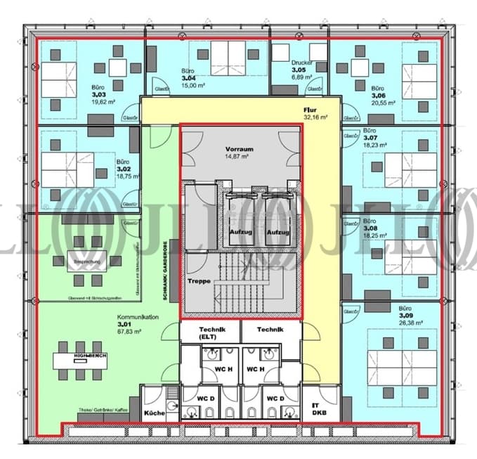
- Grundrisse
- Exposé herunterladen
- Ihr Kontakt
- Anfrage senden
Objekt
Das TETRAGON ist ein Bürohaus-Neubau mit 8 oberirdischen Geschossen und einem Untergeschoss. Das Gebäude verfügt über eine transparente, umlaufende alternierende Glasfassade mit einem raumhoch verglasten Sockelbereich. Die Büroflächen verfügen über eine hochwertige Ausstattung.
Zertifizierungen
Energieausweis
DGNB: GoldFür diese Liegenschaft liegt ein Verbrauchsausweis vom 03.06.2015 vom Eigentümer/Vermieter vor. Die wesentlichen Energieträger der Liegenschaft sind Fernwärme, Strom. Der Endenergieverbrauch Strom beträgt 84.00 kWh/(m²*a). Der Endenergieverbrauch Wärme beträgt 110.00 kWh/(m²*a).
Verfügbare Fläche
Lage und Verkehrsanbindung
- Hauptbahnhof, Frankfurt am Main, Fahrzeit: 2 min
- S-Bahn, Taunusanlage, Linie S1, S2, S3, S4, S5, S6, S8, S9, Gehzeit: 4 min
- Bus, Francois-Mitterrand-Platz, Linie 64, Gehzeit: 2 min
- Bundesautobahn, A 648, Fahrzeit: 6 min
- Bundesautobahn, A 5, Fahrzeit: 10 min
- Flughafen, Frankfurt am Main, Fahrzeit: 17 min
Ihr Kontakt

Genia Eitan
Ihr Kontakt
Marktinformationen
Mietmarkt
Bahnhofsviertel, Frankfurt am Main
Gew. Ø-Miete
21 € / m²
siehe 40 passende MietobjekteErfahren Sie mehr* Durchschnittspreis auf Grundlage historischer Transaktionen.














