Büros
ID F0121Büroimmobilie - Frankfurt am Main, Bahnhofsviertel - F0121
Bahnhofsviertel, 60329, Frankfurt am Main, Hessen
Provisionspflichtig: bei Anmietung 4 Netto-Monatsmieten zzgl. gesetzlicher Umsatzsteuer.** der Wert kann je nach Vertragslaufzeit variieren.
22 € / m²
- Fläche273 - 640 m²
- VerfügbarkeitAuf Anfrage
- Objekt
- Ausstattung
- Lage und Verkehrsanbindung
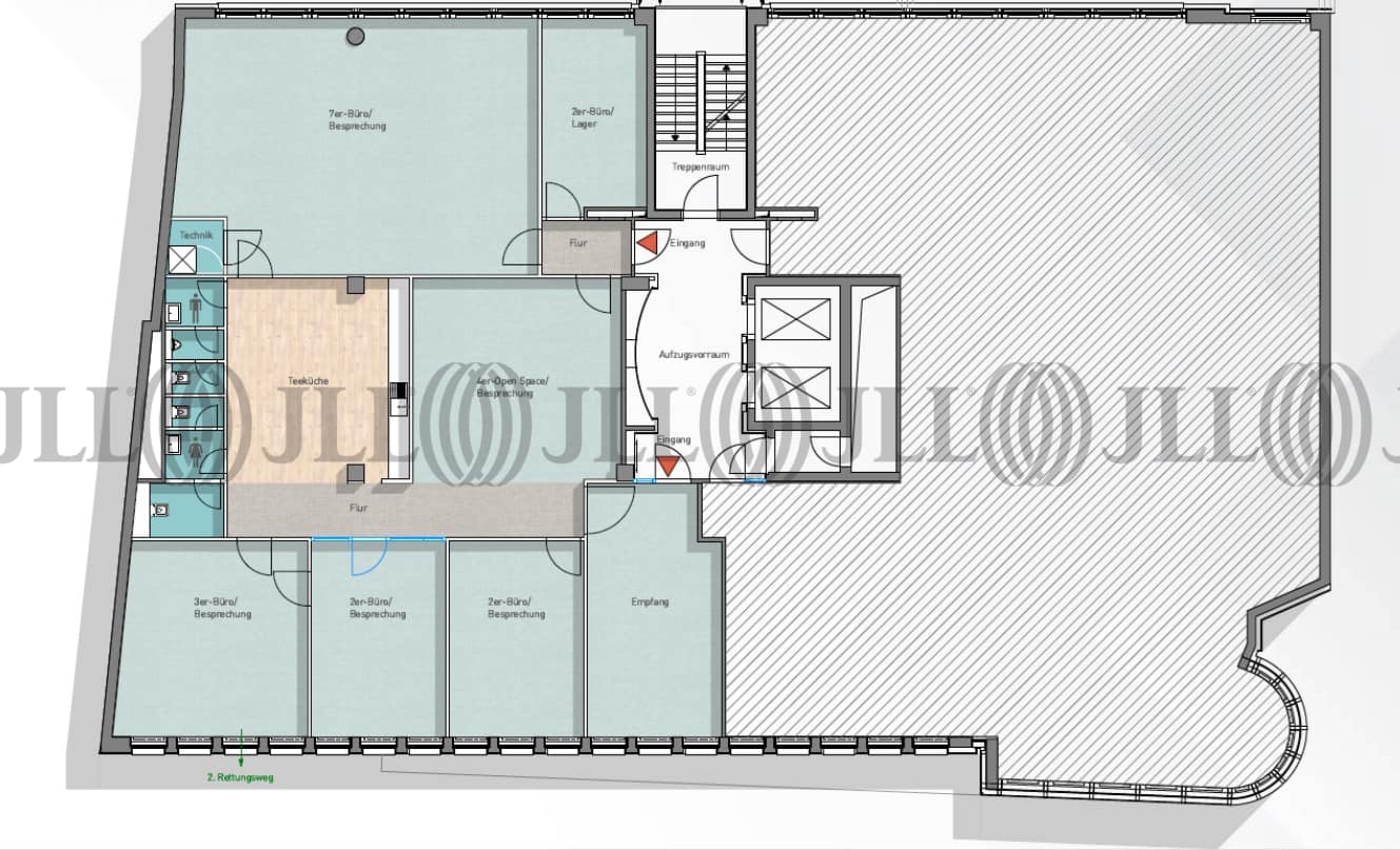
- Grundrisse
- Exposé herunterladen
- Ihr Kontakt
- Anfrage senden
Objekt
Bei der Liegenschaft handelt es sich um ein modernes, 7-geschossiges Bürogebäude mit einer Glasfassade. Für den repräsentativen Eingangsbereich wurden hochwertige Materialien, wie Granit, Edelstahl und Glas verwendet. Ein zentrales Treppenhaus und zwei Personenaufzüge erschließen die Büroebenen und das Untergeschoss mit den Lagerflächen und der Tiefgarage.
Zertifizierungen
Energieausweis
WIREDSCORE: SilverFür diese Liegenschaft liegt ein Bedarfsausweis vom 13.04.2015 vom Eigentümer/Vermieter vor. Die wesentlichen Energieträger der Liegenschaft sind Fernwärme, KWK, Nahwärme, Strom. Der Endenergiebedarf Strom beträgt 27.00 kWh/(m²*a). Der Endenergiebedarf Wärme beträgt 79.00 kWh/(m²*a).
Verfügbare Fläche
Lage und Verkehrsanbindung
Dienstleister des täglichen Bedarfs befinden sich in der Nähe.
- Flughafen, Frankfurt am Main, Fahrzeit: 17 min
- Bundesautobahn, A 648, Fahrzeit: 5 min
- Bundesautobahn, A 5, Fahrzeit: 10 min
- Hauptbahnhof, Frankfurt, Gehzeit: 5 min
- Straßenbahn/Tram, Platz der Republik (Linie: 11, 16, 17, 21), Gehzeit: 2 min
Ihr Kontakt

Irini Fenner
Ihr Kontakt
Marktinformationen
Mietmarkt
Bahnhofsviertel, Frankfurt am Main
Gew. Ø-Miete
22 € / m²
siehe 39 passende MietobjekteErfahren Sie mehr* Durchschnittspreis auf Grundlage historischer Transaktionen.
























