
Büros
ID D3402Büroimmobilie - Bochum, Querenburg - D3402
Querenburg, 44801, Bochum, Nordrhein-Westfalen
Provisionspflichtig: bei Anmietung 3 Netto-Monatsmieten zzgl. gesetzlicher Umsatzsteuer.** der Wert kann je nach Vertragslaufzeit variieren.
Kontaktieren Sie uns für den Preis
- Fläche806 - 6.580 m²
- VerfügbarkeitIV quartal 2027
- Objekt
- Ausstattung
- Lage und Verkehrsanbindung
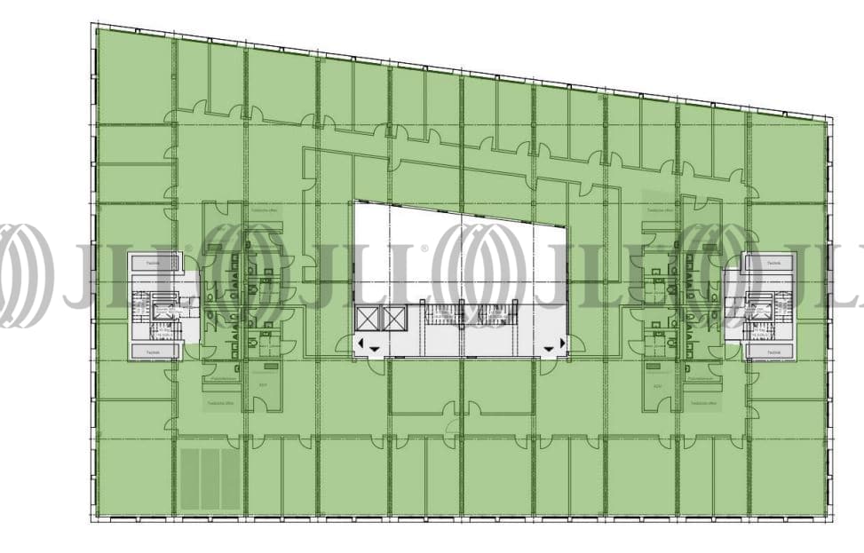
- Grundrisse
- Exposé herunterladen
- Ihr Kontakt
- Anfrage senden
Objekt
Die Liegenschaft bietet dem Nutzer helle und lichtdurchflutete Flächen. Gepaart mit dem repräsentativen äußeren Erscheinungsbild und den flexiblen Grundrissen, bietet das Objekt alles, was ein anspruchsvoller Mietinteressent wünscht.
Verfügbare Fläche
Lage und Verkehrsanbindung
Das Objekt liegt verkehrsgünstig innerhalb Bochums nur wenige Fahr-minuten von der A 40 sowie der A 448 entfernt, über die unmittelbar die A?43 und A 52 zu erreichen sind. Einrichtungen des täglichen Bedarfs wie Supermärkte, Ärzte, Schulen und Kindergärten sind innerhalb weniger Minuten fußläufig erreichbar. Die Innenstadt ist ebenfalls in wenigen Gehminuten erreichbar.
- U-Bahn, Ruhr-Universität U35, Gehzeit: 7 min
- Bus, Ruhr-Universität 356, 370, Gehzeit: 7 min
- Bundesautobahn, A 43, Fahrzeit: 3 min
- Bundesautobahn, A 44, Fahrzeit: 3 min
- Bundesautobahn, A 448, Fahrzeit: 4 min
- Flughafen, Düsseldorf, Fahrzeit: 35 min
Ihr Kontakt

Martin Jahnke
Ihr Kontakt