Büros
ID D3216Büroimmobilie - Bochum - D3216
44801, Bochum, Nordrhein-Westfalen
Provisionspflichtig: bei Anmietung 3 Netto-Monatsmieten zzgl. gesetzlicher Umsatzsteuer.** der Wert kann je nach Vertragslaufzeit variieren.
Kontaktieren Sie uns für den Preis
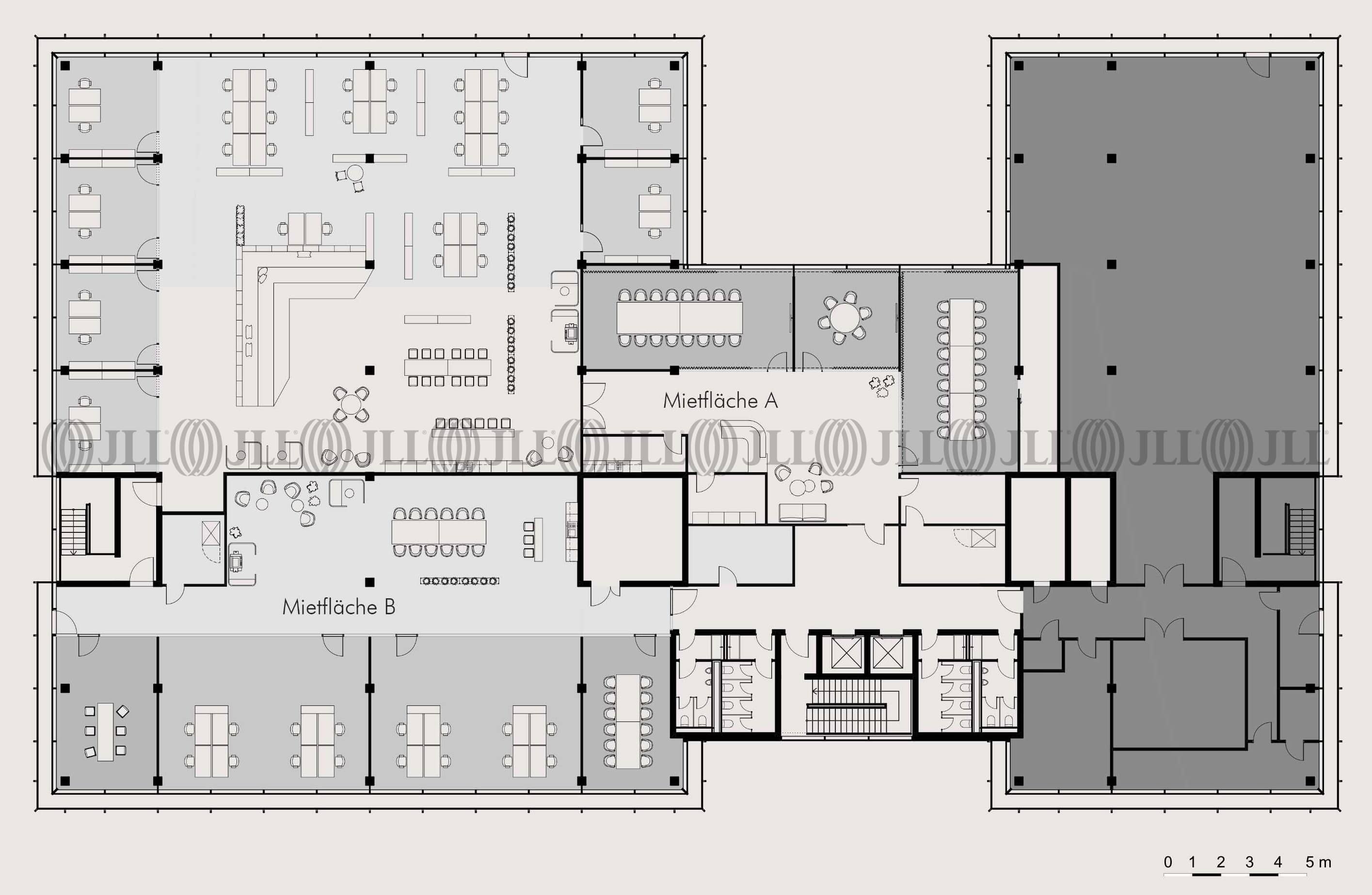
- Fläche520 - 1.560 m²
- VerfügbarkeitSofort
- Objekt
- Ausstattung
- Lage und Verkehrsanbindung
- Grundriss
- Exposé herunterladen
- Ihr Kontakt
- Anfrage senden
Objekt
Erleben Sie ein innovatives Bürokonzept in begehrter universitätsnaher Lage, das durch seine außergewöhnliche Flexibilität und moderne Ausstattung überzeugt. Dieses zeitgemäße Büroobjekt bietet Ihnen die perfekte Basis für eine erfolgreiche Unternehmensentwicklung. Profitieren Sie von hellen, freundlichen Flächen, die durch ihr modernes Lichtkonzept eine inspirierende und produktive Arbeitsumgebung schaffen. Die großzügigen Räumlichkeiten vermitteln Offenheit und fördern kreatives Arbeiten. Verwirklichen Sie Ihre individuellen Raumvorstellungen mit den vielseitigen Gestaltungsmöglichkeiten. Ob moderne Open-Space-Konzepte, klassische Bürostrukturen oder innovative Mischformen – hier haben Sie den Freiraum für Ihre Vision. Die universitätsnahe Lage bietet Ihnen Zugang zu qualifizierten Nachwuchskräften und schafft Synergien für Forschung, Entwicklung und Kooperationen. Ein dynamisches Umfeld, das Innovation und Wachstum fördert. Nutzen Sie den großzügigen Platz für freie Gestaltung und entwickeln Sie Arbeitswelten, die zu Ihrem Unternehmen passen – von kreativen Denkräumen bis hin zu funktionalen Arbeitsplätzen. Gestalten Sie Ihre Zukunft in einem Objekt, das so individuell ist wie Ihr Unternehmen.
Verfügbare Fläche
Lage und Verkehrsanbindung
Der Technologiepark liegt in unmittelbarer Nachbarschaft zur Ruhr-Universität-Bochum, Hochschule Bochum und zum Technologiezentrum Ruhr, auf dem ehemaligen Zeche Mansfeld V/VI und bietet einen zukunftsfähigen Unternehmerstandort für die moderne Arbeitswelt. Die Stadt Bochum verfolgte mit dem Bau dieser ca. 12 ha großen Fläche das Ziel vorhandene Forschungs- und Entwicklungspotenziale geographisch zu zentralisieren. Die Anbindung an das öffentliche Verkehrsnetz ist über die nur wenige Meter entfernte U-Bahn-Station optimal gewährleistet. Die Autobahnen A 43, A 44 und A 45 sind aufgrund der zentralen Lage im Bochumer Süden in kürzester Zeit erreichbar. Einkaufsmöglichkeiten sowie gastronomische Einrichtungen befinden sich im Uni-Center, dieses liegt in unmittelbarer Nähe zum Standort.
- Hauptbahnhof, Bochum, Fahrzeit: 12 min
- Bus, Technologiequartier 374, Gehzeit: 2 min
- Bundesautobahn, A 43, Fahrzeit: 3 min
- Bundesautobahn, A 40, Fahrzeit: 7 min
- Flughafen, Düsseldorf, Fahrzeit: 35 min
Ihr Kontakt

Martin Jahnke
Ihr Kontakt








