Büros
ID D3159Aktualisiert
Büroimmobilie - Bochum, Wattenscheid - D3159
Wattenscheid, 44866, Bochum, Nordrhein-Westfalen
Provisionspflichtig: bei Anmietung 3 Netto-Monatsmieten zzgl. gesetzlicher Umsatzsteuer.** der Wert kann je nach Vertragslaufzeit variieren.
Kontaktieren Sie uns für den Preis
- Fläche565 - 2.825 m²
- VerfügbarkeitSofort
- Objekt
- Ausstattung
- Lage und Verkehrsanbindung
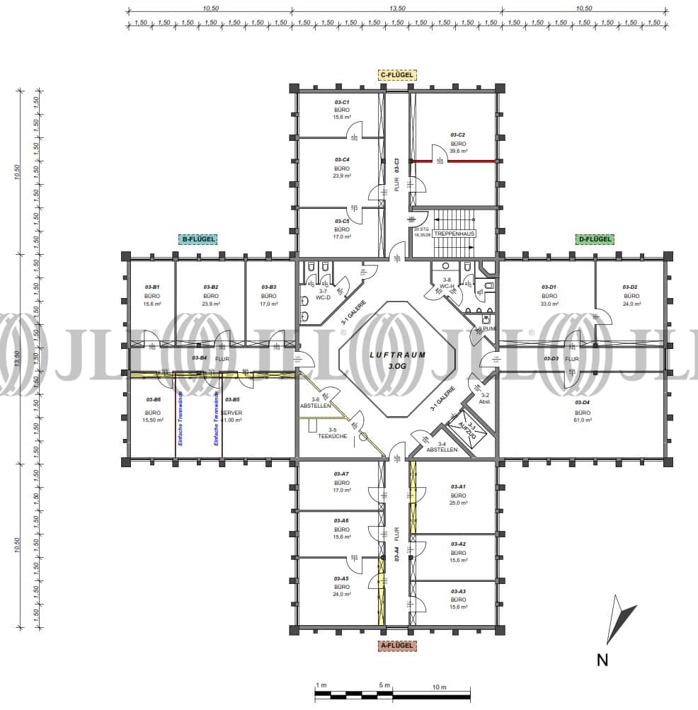
- Grundrisse
- Exposé herunterladen
- Ihr Kontakt
- Anfrage senden
Objekt
Die Solitärimmobilie liegt äußerst verkehrsgünstig und überzeugt mit seinem repräsentativem Äußeren. Die Flächen sind sehr effizient geschnitten und flexibel veränderbar. Die hellen Flächen und die Dachterrassen in alle vier Himmelsrichtungen runden das Gesamtangebot ab.
Verfügbare Fläche
Lage und Verkehrsanbindung
Der Teilmarkt Bochum Wattenscheid liegt im Westen Bochums und grenzt im Westen an die Städte Gelsenkirchen und Essen und im Norden an Herne. Bochum Wattenscheid ist durch die Autobahn A 40 sehr gut an den Verkehr angeschlossen. Die nationale sowie internationale Anbindung ist durch die Flughäfen Düsseldorf und Dortmund gewährleistet. Der Teilmarkt zeichnet sich durch eine sehr gute Nahversorgung, Einkaufsmöglichkeiten und Anbindung an das ÖPNV-Netz aus.
- Flughafen, Düsseldorf, Fahrzeit: 30 min
- Bundesautobahn, A 40, Fahrzeit: 4 min
- Bundesautobahn, A 448, Fahrzeit: 8 min
- Hauptbahnhof, Bochum, Fahrzeit: 17 min
- Straßenbahn/Tram, Lohrheidestraße 302, Gehzeit: 2 min
- Bus, Lohrheidestraße 365, Gehzeit: 2 min
Ihr Kontakt

Martin Jahnke
Ihr Kontakt





