Büros
ID D2939Büroimmobilie - Bochum, Querenburg - D2939
Querenburg, 44801, Bochum, Nordrhein-Westfalen
Provisionspflichtig: bei Anmietung 3 Netto-Monatsmieten zzgl. gesetzlicher Umsatzsteuer.** der Wert kann je nach Vertragslaufzeit variieren.
10,50 € / m²
- Fläche560 - 1.360 m²
- VerfügbarkeitSofort
- Objekt
- Ausstattung
- Lage und Verkehrsanbindung
- Grundrisse
- Exposé herunterladen
- Ihr Kontakt
- Anfrage senden
Objekt
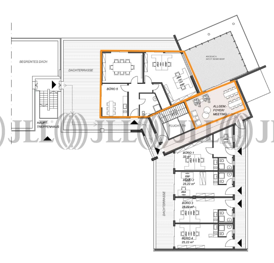
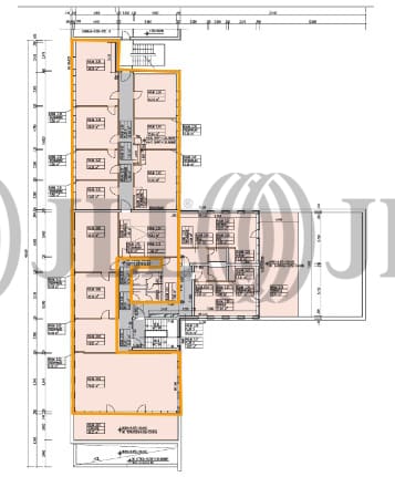
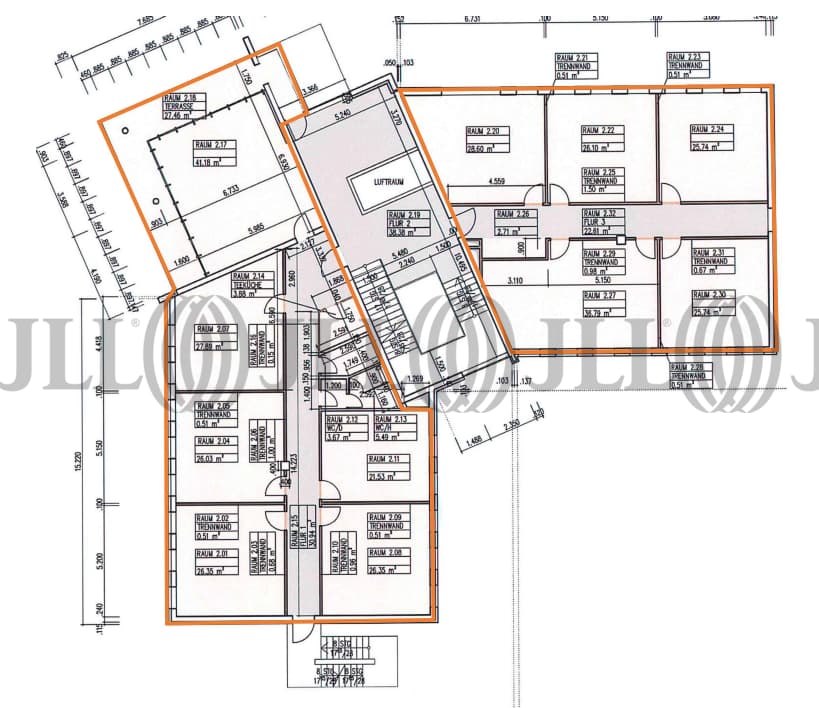
Das neuwertige Büro- und Geschäftshaus, dass sich im Technologie- Quartier Bochum Querenburg, in unmittelbarer Nähe zur Ruhr- Universität, befindet überzeugt sowohl mit seiner sowohl funktionalen als auch flexiblen Flächenaufteilung. Die hellen und einladenden Flächen bieten alle Annehmlichkeiten, die dem modernen Büronutzer wichtig sind. Die Mietflächen verfügen über bodentiefe Fenster, die einen Ausblick ins Grüne ermöglichen. Einige der Flächen verfügen sogar über einen kleinen Balkon, der einen Austritt nach Draußen ermöglicht. Erschlossen werden die Büroflächen über das gemeinschaftliche Treppenhaus und einen verbauten Personenfahrstuhl. Eine angenehme Arbeitsatmosphäre durch die großzügigen Fensterflächen mit außenliegendem Sonnenschutz ist garantiert. Das Objekt verfügt über ausreichend Außenstellplätze direkt am Objekt sowie Stellplatzmöglichkeiten in der Tiefgarage. Die zur Anmietung stehende Bürofläche im 3.OG mit 119 m² bietet darüber hinaus eine angrenzende Dachterrasse, die zur exklusiven Nutzung zur Verfügung steht.
Zertifizierungen
Energieausweis
Für diese Liegenschaft liegt ein Bedarfsausweis vom 2014-03-06 vom Eigentümer/Vermieter vor. Der wesentliche Energieträger der Liegenschaft ist Fernwärme. Endenergiebedarf: 59.03000 kWh/(m²*a).Verfügbare Fläche
Lage und Verkehrsanbindung
Der Technologiepark liegt in unmittelbarer Nachbarschaft zur Ruhr-Universität-Bochum, Hochschule Bochum und zum Technologiezentrum Ruhr, auf dem ehemaligen Zeche Mansfeld V/VI und bietet einen zukunftsfähigen Unternehmerstandort für die moderne Arbeitswelt. Die Stadt Bochum verfolgte mit dem Bau dieser ca. 12 ha großen Fläche das Ziel vorhandene Forschungs- und Entwicklungspotenziale geographisch zu zentralisieren. Die Anbindung an das öffentliche Verkehrsnetz ist über die nur wenige Meter entfernte U-Bahn-Station optimal gewährleistet. Die Autobahnen A 43, A 44 und A 45 sind aufgrund der zentralen Lage im Bochumer Süden in kürzester Zeit erreichbar. Einkaufsmöglichkeiten sowie gastronomische Einrichtungen befinden sich im Uni-Center, dieses liegt in unmittelbarer Nähe zum Standort.
- Hauptbahnhof, Bochum, Fahrzeit: 11 min
- U-Bahn, Hustadt (TQ) U35, Gehzeit: 7 min
- Bus, Bochum Technologiequartier 375, Gehzeit: 3 min
- Bundesautobahn, A 44, Fahrzeit: 4 min
- Bundesautobahn, A 43, Fahrzeit: 4 min
- Flughafen, Düsseldorf, Fahrzeit: 40 min
Ihr Kontakt

Martin Jahnke
Ihr Kontakt



