Büros
ID D1814Büroimmobilie - Bochum, Wiemelhausen - D1814
Wiemelhausen, 44799, Bochum, Nordrhein-Westfalen
Provisionspflichtig: bei Anmietung 3 Netto-Monatsmieten zzgl. gesetzlicher Umsatzsteuer.** der Wert kann je nach Vertragslaufzeit variieren.
10,50 € / m²
- Fläche862 m²
- VerfügbarkeitAuf Anfrage
- Objekt
- Ausstattung
- Lage und Verkehrsanbindung
- Grundrisse
- Exposé herunterladen
- Ihr Kontakt
- Anfrage senden
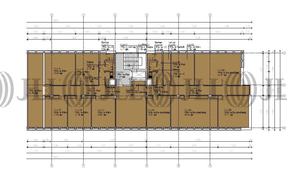
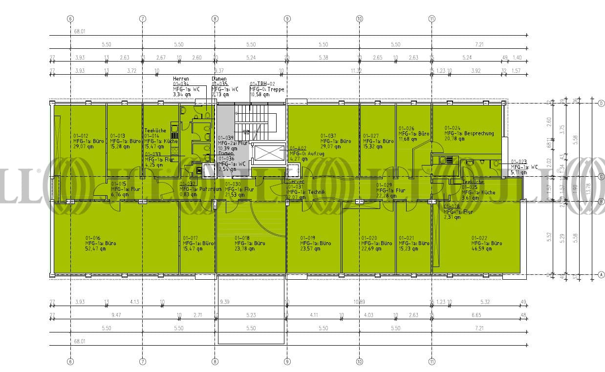
Objekt
Das moderne Büroobjekt überzeugt durch seine hochwertige Ausstattung und eine effiziente Grundrissgestaltung. Die Mietflächen werden in Abstimmung mit dem zukünftigen Nutzer aufgeteilt und renoviert übergeben. Auf dem Außengelände stehen ausreichend Stellplätze zur Anmietung zur Verfügung.
Zertifizierungen
Energieausweis
Für diese Liegenschaft liegt ein Verbrauchsausweis vom 21.02.2019 vom Eigentümer/Vermieter vor. Der wesentliche Energieträger der Liegenschaft ist Fernwärme. Der Endenergieverbrauch Strom beträgt 31.60 kWh/(m²*a). Der Endenergieverbrauch Wärme beträgt 65.80 kWh/(m²*a).Verfügbare Fläche
Lage und Verkehrsanbindung
Die Liegenschaft liegt sehr verkehrsgünstig mitten im Ruhrgebiet, im sogenannten „Trimonte Park“, wodurch dieser Standort insbesondere für Unternehmen der Informationstechnologie sehr attraktiv ist. Das Areal an der Wasserstraße ist hervorragend an den öffentlichen Nahverkehr und an die Autobahnen angebunden. Zwischen Universität und Innenstadt nutzen zukunftsorientierte Unternehmen Synergien des Umfeldes. Die bekannte Bochumer Königsallee grenzt direkt an den „Trimonte Park“. Dienstleister des täglichen Bedarfs befinden sich in der Nähe.
- Hauptbahnhof, Bochum, Fahrzeit: 6 min
- U-Bahn, Wasserstraße U35, Gehzeit: 10 min
- Bus, Werk Eickhoff CE31, 353, 360, 388, Gehzeit: 2 min
- Bundesautobahn, A 40, Fahrzeit: 6 min
- Bundesautobahn, A 44, Fahrzeit: 7 min
- Flughafen, Düsseldorf, Fahrzeit: 29 min
Ihr Kontakt

Martin Jahnke
Ihr Kontakt





