Büros
ID D1799Aktualisiert
Büroimmobilie - Bochum, Wiemelhausen - D1799
Wiemelhausen, 44799, Bochum, Nordrhein-Westfalen
Provisionspflichtig: bei Anmietung 3 Netto-Monatsmieten zzgl. gesetzlicher Umsatzsteuer.** der Wert kann je nach Vertragslaufzeit variieren.
Kontaktieren Sie uns für den Preis
- Fläche643 m²
- VerfügbarkeitSofort
- Objekt
- Ausstattung
- Lage und Verkehrsanbindung
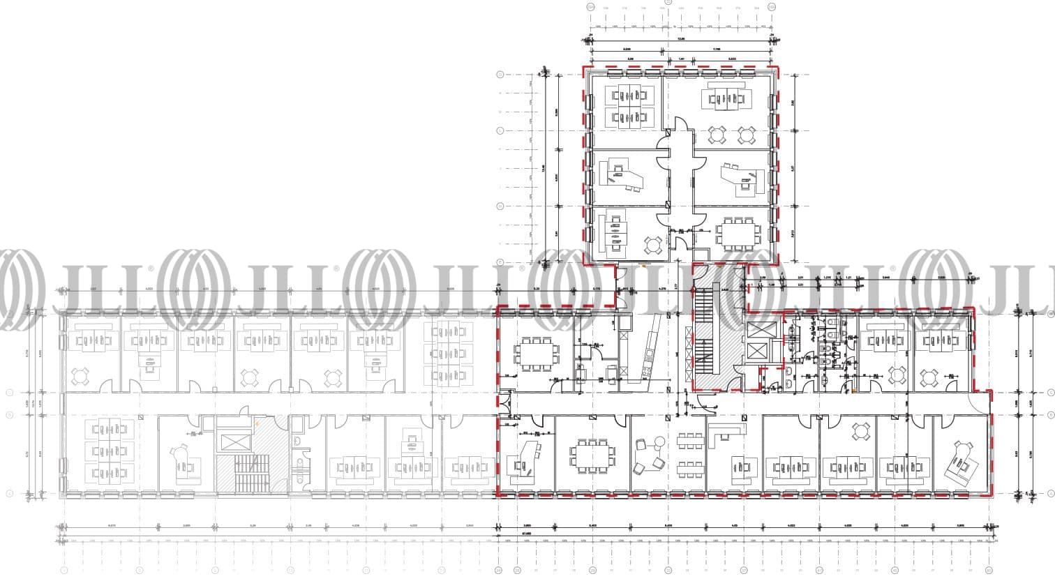
- Grundriss
- Exposé herunterladen
- Ihr Kontakt
- Anfrage senden
Objekt
Das neuwertige und sehr gepflegte Objekt überzeugt vor Allem durch seine hellen, flexiblen und modernen Flächen. Diese sind allesamt barrierefrei zu erreichen und lassen keine Wünsche offen.
Zertifizierungen
Energieausweis
Für diese Liegenschaft liegt ein Verbrauchsausweis vom 2014-10-28 vom Eigentümer/Vermieter vor. Der wesentliche Energieträger der Liegenschaft ist Fernwärme. Der Endenergieverbrauch Strom beträgt 65.60 kWh/(m²*a). Der Endenergieverbrauch Wärme beträgt 65.35 kWh/(m²*a).Verfügbare Fläche
Lage und Verkehrsanbindung
Die Liegenschaft liegt sehr verkehrsgünstig mitten im Ruhrgebiet, im sogenannten „Trimonte Park“, wodurch dieser Standort insbesondere für Unternehmen der Informationstechnologie sehr attraktiv ist. Das Areal an der Wasserstraße ist hervorragend an den öffentlichen Nahverkehr und an die Autobahnen angebunden. Zwischen Universität und Innenstadt nutzen zukunftsorientierte Unternehmen Synergien des Umfeldes. Die bekannte Bochumer Königsallee grenzt direkt an den „Trimonte Park“. Eine Tankstelle befindet sich in der Nähe. Dienstleister des täglichen Bedarfs befinden sich in der Nähe.
- Flughafen, Düsseldorf, Fahrzeit: 29 min
- Bundesautobahn, A 40, Fahrzeit: 6 min
- Bundesautobahn, A 44, Fahrzeit: 7 min
- Hauptbahnhof, Bochum, Fahrzeit: 6 min
- U-Bahn, Wasserstraße U35 , Gehzeit: 10 min
- Bus, Werk Eickhoff CE31, 353, 360, 388, Gehzeit: 2 min
Ihr Kontakt

Martin Jahnke
Ihr Kontakt





