Büros
ID D1780Büroimmobilie - Bochum, Sevinghausen - D1780
Sevinghausen, 44867, Bochum, Nordrhein-Westfalen
Provisionspflichtig: bei Anmietung 3 Netto-Monatsmieten zzgl. gesetzlicher Umsatzsteuer.** der Wert kann je nach Vertragslaufzeit variieren.
Kontaktieren Sie uns für den Preis
- Fläche500 - 2.405 m²
- Verfügbarkeit01.09.2026
- Objekt
- Ausstattung
- Lage und Verkehrsanbindung
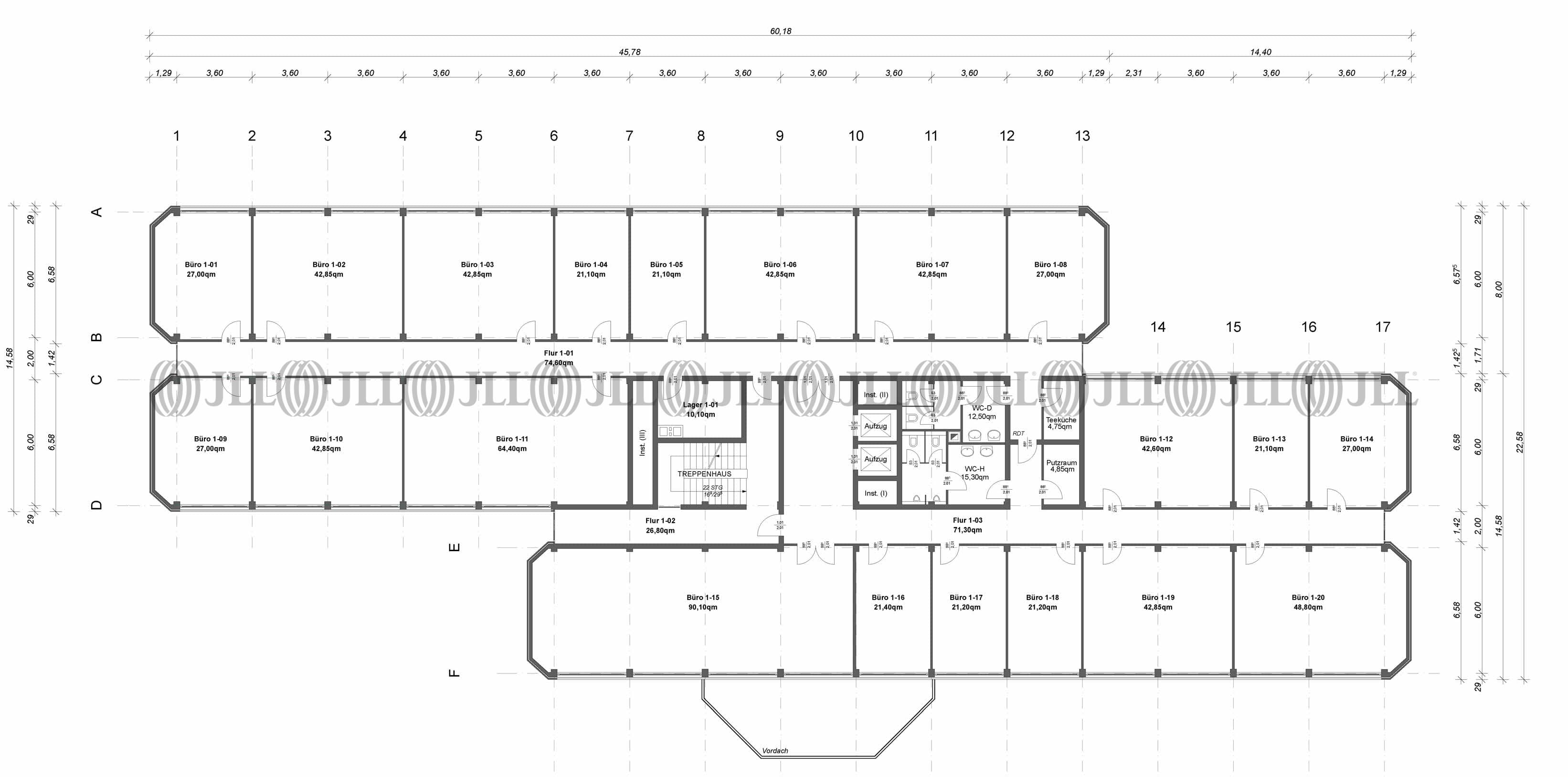
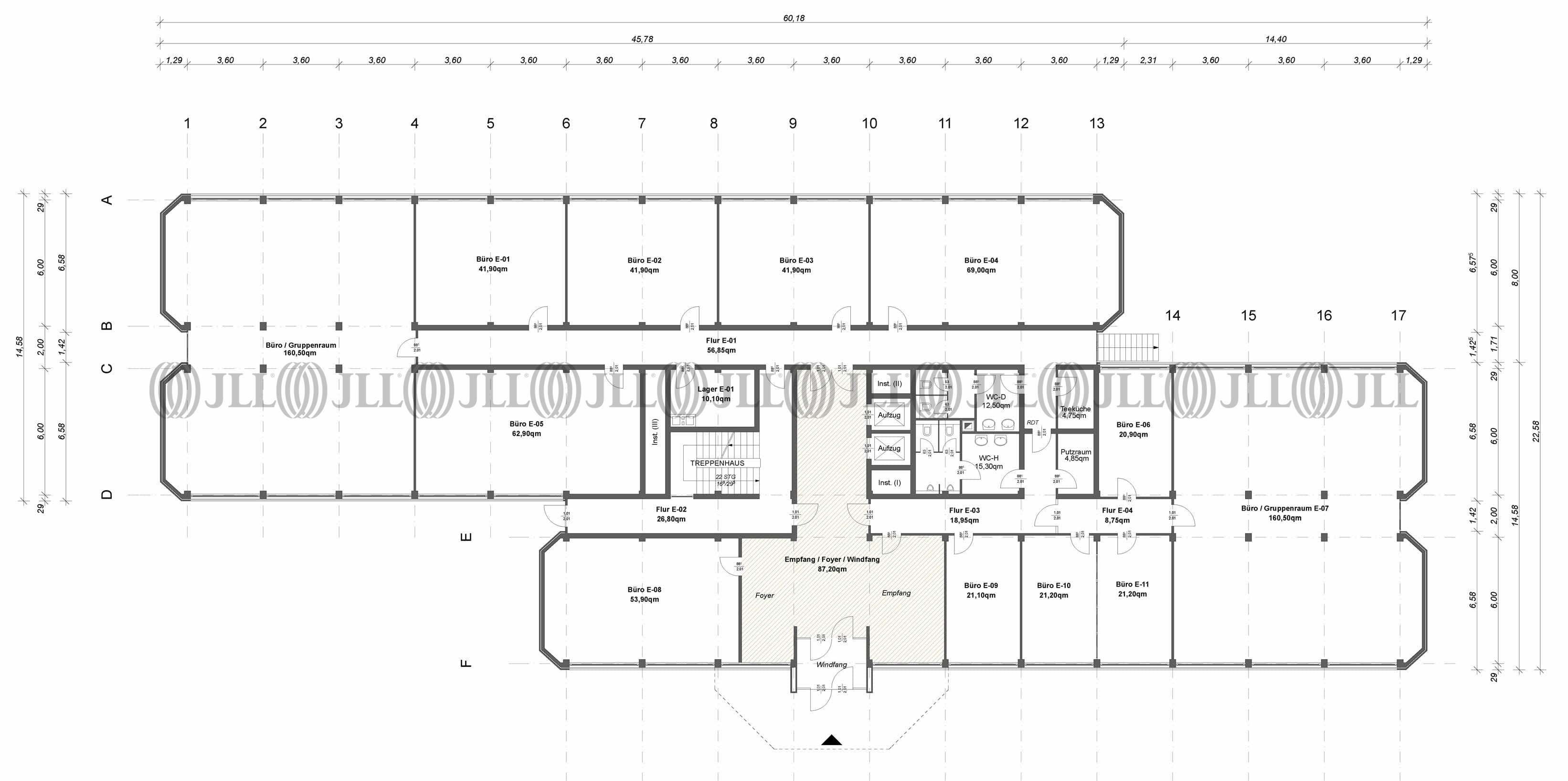
- Grundrisse
- Exposé herunterladen
- Ihr Kontakt
- Anfrage senden
Objekt
Die 3-geschossige Liegenschaft wurde im Jahre 1983 errichtet und eignet sich als freistehende Immobilie ideal für die Single-Tenant-Nutzung. Das Objekt befindet sich in einem für das Baujahr typischen Zustand und wird in Absprache mit dem neuen Mieter umfangreich renoviert. Der Grundriss kann flexibel gestaltet werden, sodass sowohl mit Doppel- / Teambüros als auch mit offenen Raumkonzepten gearbeitet werden kann.
Zertifizierungen
Energieausweis
Für diese Liegenschaft liegt ein Bedarfsausweis vom 2014-12-02 vom Eigentümer/Vermieter vor. Die wesentlichen Energieträger der Liegenschaft sind Strom,Erdgas schwer. Der Endenergiebedarf Strom beträgt 29.00 kWh/(m²*a). Der Endenergiebedarf Wärme beträgt 246.00 kWh/(m²*a).Verfügbare Fläche
Lage und Verkehrsanbindung
Die Liegenschaft befindet sich in einem Gewerbegebiet im Stadtteil Bochum Wattenscheid, angrenzend an die Städte Essen und Gelsenkirchen. Die Autobahn A 40 ist in wenigen Fahrminuten erreichbar. Zu den Nachbarbebauungen zählen klassische Büro- und Gewerbeimmobilien sowie Logistikflächen mit nicht störendem Gewerbe.
- Hauptbahnhof, Bochum, Fahrzeit: 18 min
- Bus, Metternichstraße 386, Gehzeit: 3 min
- Bundesautobahn, A 40, Fahrzeit: 4 min
- Bundesautobahn, A 52, Fahrzeit: 9 min
- Flughafen, Düsseldorf, Fahrzeit: 26 min
Ihr Kontakt

Martin Jahnke
Ihr Kontakt


