Büros
ID B3286Provisionsfrei
Büroimmobilie - Berlin, Kreuzberg - B3286
Kreuzberg, 10999, Berlin, Berlin
19 € / m²
- Fläche353 m²
- VerfügbarkeitSofort
- Objekt
- Ausstattung
- Lage und Verkehrsanbindung
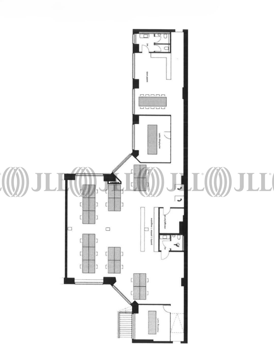
- Grundriss
- Exposé herunterladen
- Ihr Kontakt
- Anfrage senden
Objekt
Im Erdgeschoss eines sorgfältig sanierten, denkmalgeschützten Gewerbehofes aus dem Jahr 1908 steht eine lichtdurchflutete Gewerbeeinheit zur Verfügung. Die Räumlichkeiten befinden sich in ruhiger Innenhof-Lage und vereinen historischen Charme mit moderner Funktionalität. Hohe Decken und große Fensterfronten schaffen eine inspirierende Arbeitsatmosphäre, während das mixed-use Konzept Synergien zwischen verschiedenen Branchen fördert.
Verfügbare Fläche
Lage und Verkehrsanbindung
Das Objekt liegt im pulsierenden Herzen des Berliner Stadtteils Kreuzberg, einer der kreativsten und vielseitigsten Viertel der Stadt. In direkter Nachbarschaft zum historischen Checkpoint Charlie, einem der bekanntesten Wahrzeichen Berlins, bietet die Lage sowohl kulturelle als auch geschichtliche Reize. Zudem grenzt die Immobilie direkt an den idyllischen Landwehrkanal, der mit seinen grünen Uferbereichen ein beliebtes Ziel für Freizeitaktivitäten und Entspannung darstellt. Die hervorragende Anbindung an das öffentliche Nahverkehrsnetz garantiert optimale Erreichbarkeit, sodass sowohl der örtliche als auch der überregionale Verkehr problemlos genutzt werden kann.
Ihr Kontakt

Alexandra Teich
Ihr Kontakt
Marktinformationen
Mietmarkt
Kreuzberg, Berlin
Gew. Ø-Miete
19 € / m²
siehe 101 passende MietobjekteErfahren Sie mehr* Durchschnittspreis auf Grundlage historischer Transaktionen.




