Büros
ID B3252Provisionsfrei
Büroimmobilie - Berlin, Kreuzberg - B3252
Kreuzberg, 10999, Berlin, Berlin
19,72 € / m²
- Fläche570 m²
- VerfügbarkeitJuli 2026
- Objekt
- Ausstattung
- Lage und Verkehrsanbindung
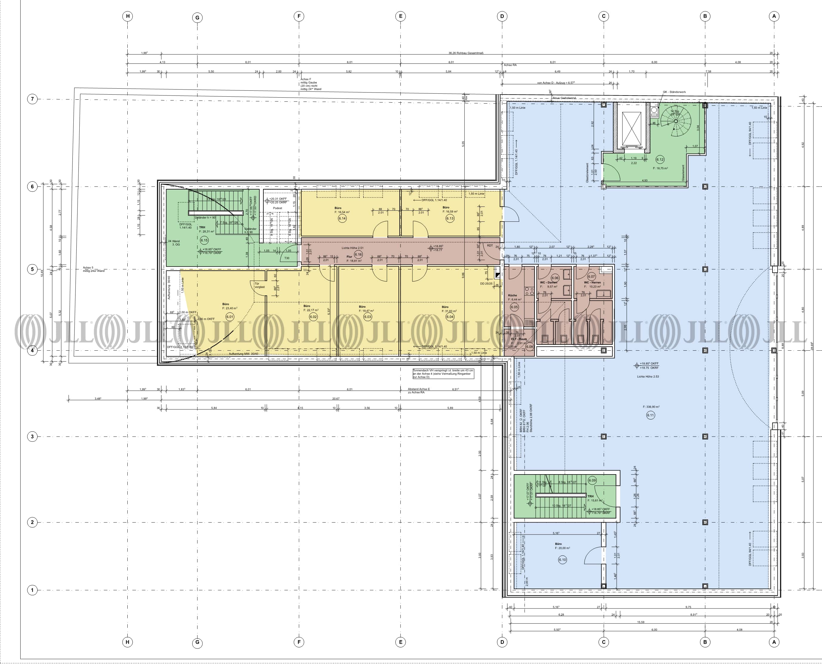
- Grundriss
- Exposé herunterladen
- Ihr Kontakt
- Anfrage senden
Objekt
Bei dem Gebäude handelt es sich um ein repräsentatives Büro- und Geschäftshaus, das sich durch eine historische Fassade auszeichnet. Die Architektur ist typisch für die Gründerzeit und verleiht dem Objekt einen klassischen und zugleich zeitlosen Charakter. Es beherbergt eine Mischung aus verschiedenen Unternehmen, darunter Verlage sowie Firmen aus der Kreativ- und Immobilienbranche. Dies deutet auf eine flexible und für diverse Branchen attraktive Flächenstruktur hin. Das mehrgeschossige Gebäude fügt sich nahtlos in die umgebende Bebauung ein und bietet modernen Arbeitsraum in einem historisch gewachsenen Umfeld.
Verfügbare Fläche
Lage und Verkehrsanbindung
Das Objekt befindet sich in einem der lebendigsten und gefragtesten Quartiere Berlins, im nordöstlichen Teil von Kreuzberg. Dieses Viertel ist geprägt von einer dynamischen und multikulturellen Atmosphäre und hat sich historisch als Zentrum der Alternativ- und Künstlerszene etabliert. Die Umgebung zeichnet sich durch eine hohe Dichte an Cafés, internationalen Restaurants, Bars und individuellen Geschäften aus, insbesondere entlang der nahegelegenen Oranienstraße, einer der wichtigsten und ältesten Einkaufsstraßen des Stadtteils. Die Lage bietet eine exzellente Infrastruktur und Anbindung an den öffentlichen Nahverkehr.
Ihr Kontakt

Alexandra Teich
Ihr Kontakt
Marktinformationen
Mietmarkt
Kreuzberg, Berlin
Gew. Ø-Miete
19,72 € / m²
siehe 101 passende MietobjekteErfahren Sie mehr* Durchschnittspreis auf Grundlage historischer Transaktionen.













