Büros
ID B3188Provisionsfrei
Büroimmobilie - Berlin, Kreuzberg - B3188
Kreuzberg, 10969, Berlin, Berlin
25 € / m²
- Fläche509 - 1.345 m²
- VerfügbarkeitSofort
- Objekt
- Ausstattung
- Lage und Verkehrsanbindung
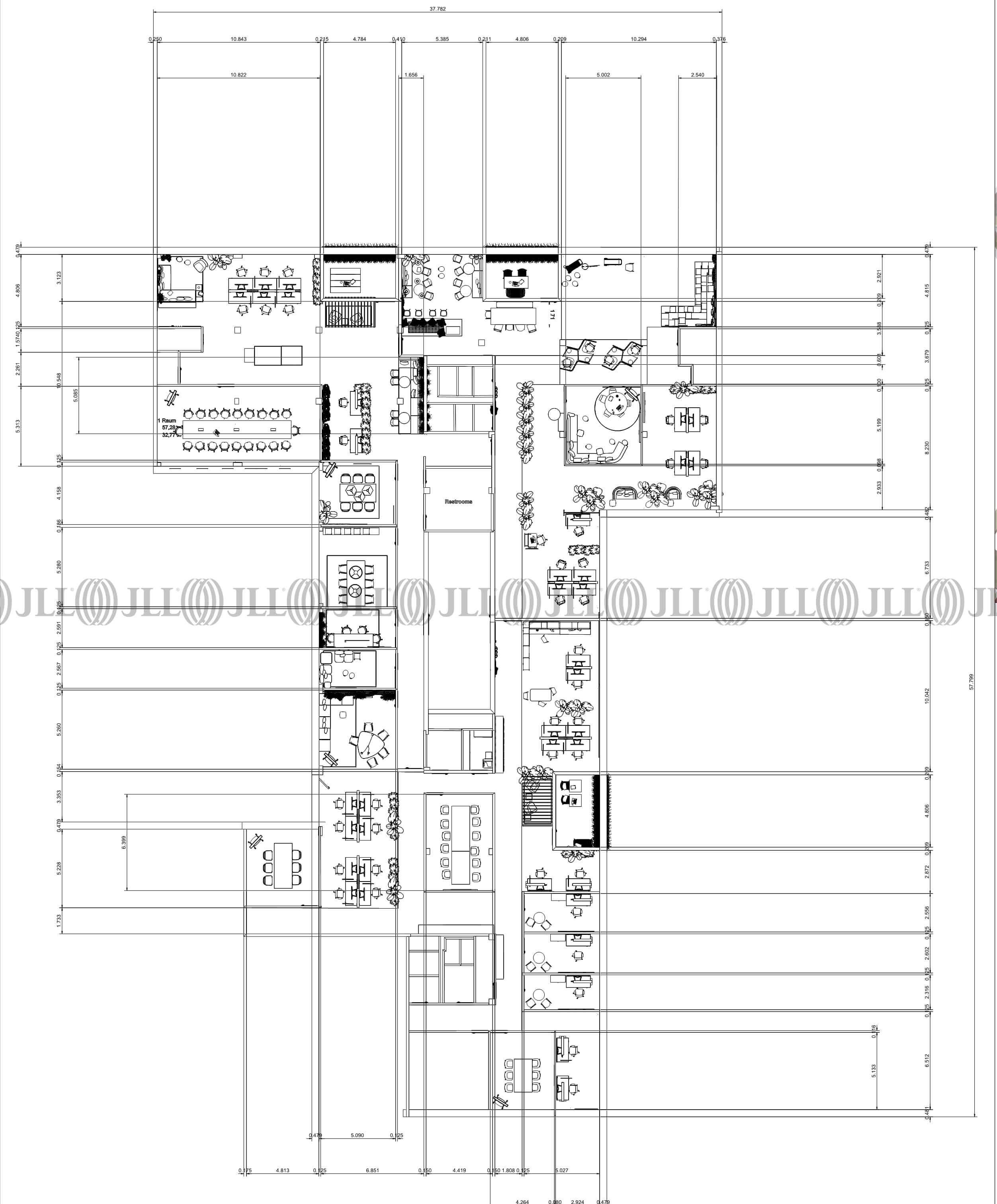
- Grundrisse
- Exposé herunterladen
- Ihr Kontakt
- Anfrage senden
Objekt
In Berlin, im pulsierenden Herzen der Stadt, ist ein innovatives Bürogebäude, das die Zukunft der Arbeitswelt neu definiert, entstanden. Alle 20 Stunden wird in Berlin eine neue Firma gegründet, und genau für diese wachsende Wirtschaft und aufstrebenden Unternehmen wurde dieses Projekt konzipiert. Rund um einen grünen Innenhof entstehen hochwertige Büroflächen für Zukunftsunternehmen, die kreative Lösungen und grüne Freiräume zu schätzen wissen.
Das Gebäude verfügt über insgesamt 12.764 m² Bürofläche, verteilt auf fünf Obergeschosse mit einer lichten Raumhöhe von 3,00 Metern und flexiblem Ausbauraster. Die geradlinige Fassade zitiert die klassische Formensprache Berlins, während bodentiefe Fenster mit außenliegendem Sonnenschutz für optimale Lichtverhältnisse sorgen.
Das Gebäude verfügt über insgesamt 12.764 m² Bürofläche, verteilt auf fünf Obergeschosse mit einer lichten Raumhöhe von 3,00 Metern und flexiblem Ausbauraster. Die geradlinige Fassade zitiert die klassische Formensprache Berlins, während bodentiefe Fenster mit außenliegendem Sonnenschutz für optimale Lichtverhältnisse sorgen.
Verfügbare Fläche
Lage und Verkehrsanbindung
Im spannenden Spannungsfeld zwischen den dynamischen Bezirken Mitte und Kreuzberg gelegen, befindet sich dieses Objekt in einem der vitalsten Kreativhubs der Hauptstadt. Hier treffen digitale Pioniere auf traditionelles Handwerk, internationale Unternehmen auf lokale Manufakturen und gehobene Gastronomie auf authentische Berliner Kultur. Im direkten Umfeld befinden sich namhafte Unternehmen sowie zahlreiche angesagte Restaurants, Cafés und Hotels. Diese besondere Lage im Epizentrum der digitalen Revolution Berlins macht das Objekt zum idealen Standort für zukunftsorientierte Unternehmen, die Wert auf Inspiration, Kreativität und urbanes Flair legen.
Ihr Kontakt

Tobias Rodewald
Ihr Kontakt
Marktinformationen
Mietmarkt
Kreuzberg, Berlin
Gew. Ø-Miete
25 € / m²
siehe 101 passende MietobjekteErfahren Sie mehr* Durchschnittspreis auf Grundlage historischer Transaktionen.

















