Büros
ID B3134Provisionsfrei
Büroimmobilie - Berlin, Kreuzberg - B3134
Kreuzberg, 10999, Berlin, Berlin
22 € / m²
- Fläche298 m²
- VerfügbarkeitSofort
- Ausstattung
- Lage und Verkehrsanbindung
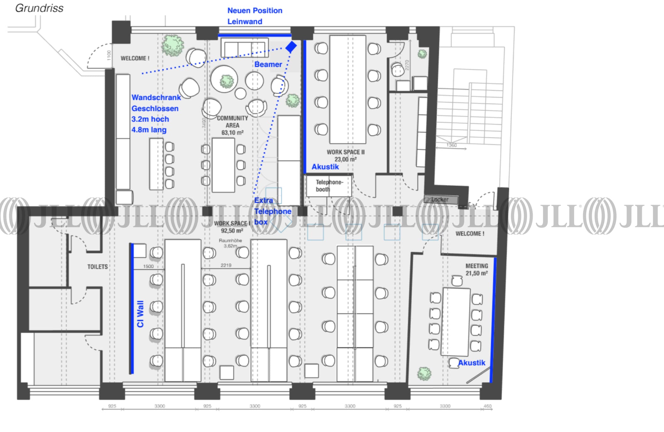
- Grundriss
- Exposé herunterladen
- Ihr Kontakt
- Anfrage senden
Verfügbare Fläche
Lage und Verkehrsanbindung
Der klassische, sanierte Gewerbehof mit historischem Charakter ermöglicht eine flexible und individuelle Nutzung seiner Büroflächen. Im Gebäude haben sich hier vorrangig Mieter aus dem kulturellen Bereich und der Kreativbranche angesiedelt.
Ihr Kontakt

Alexandra Teich
Ihr Kontakt
Marktinformationen
Mietmarkt
Kreuzberg, Berlin
Gew. Ø-Miete
22 € / m²
siehe 98 passende MietobjekteErfahren Sie mehr* Durchschnittspreis auf Grundlage historischer Transaktionen.










