Büros
ID B3094Provisionsfrei
Büroimmobilie - Berlin, Kreuzberg - B3094
Kreuzberg, 10999, Berlin, Berlin
18 € / m²
- Fläche213 - 1.082 m²
- VerfügbarkeitSofort
- Objekt
- Ausstattung
- Lage und Verkehrsanbindung
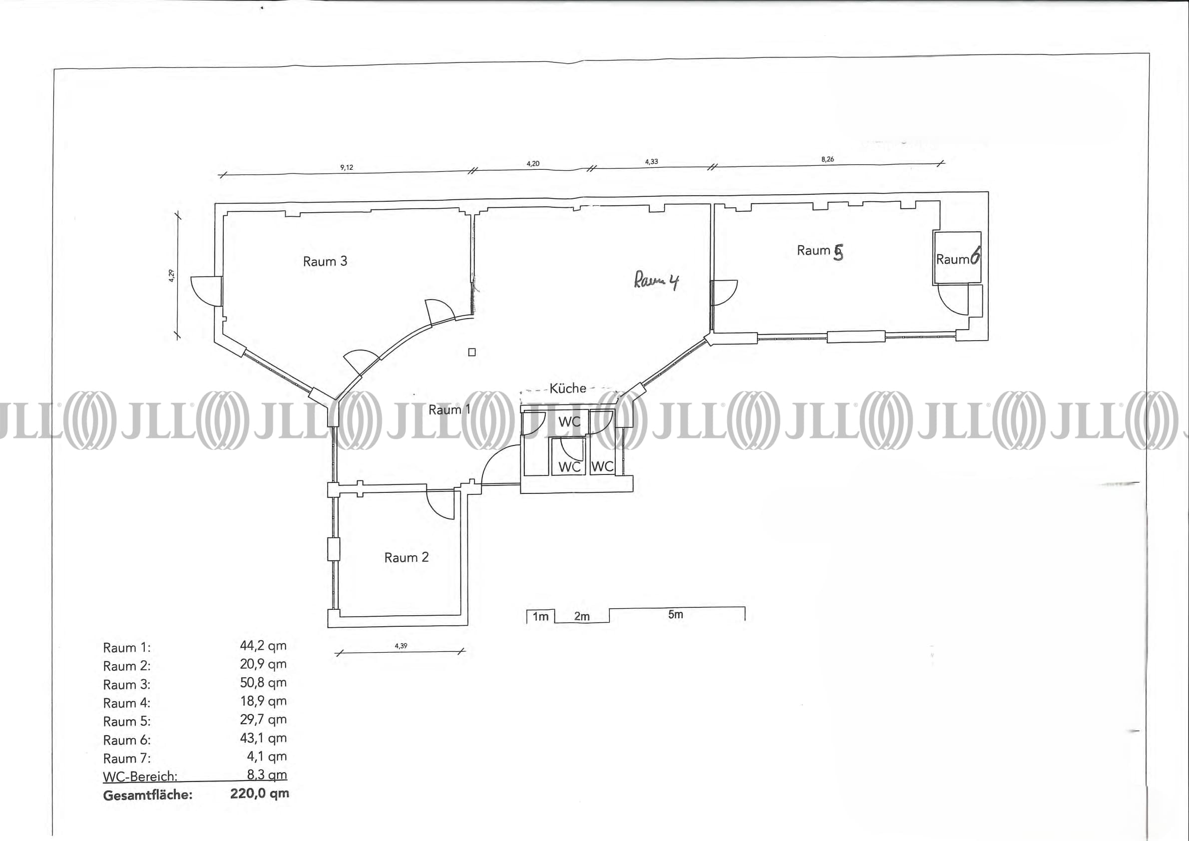
- Grundrisse
- Exposé herunterladen
- Ihr Kontakt
- Anfrage senden
Objekt
Das imposante historische Gewerbehof-Ensemble beeindruckt mit seinem charakteristischen Giebelbau im hanseatischen Stil, der sich markant von klassischer Berliner Industriearchitektur abhebt. Die fünfgeschossigen Fabriktrakte in eleganter Skelettbauweise umschließen sechs harmonisch gestaltete Innenhöfe und bieten vielseitige Nutzflächen. Bemerkenswerte Jugendstilelemente wie durchgehende Bogenstellungen und geschossübergreifende Erker zieren die Straßenfassade, während die weißen Glasurklinker der Hoftrakte für lichtdurchflutete Arbeitsräume sorgen.
Verfügbare Fläche
Lage und Verkehrsanbindung
Das Objekt besticht durch seine herausragende Lage in einem etablierten Stadtviertel, das direkt an einem geschichtsträchtigen Wasserlauf mit früheren Hafenfunktion liegt. Diese Umgebung vereint auf einzigartige Weise industrielles Erbe und zeitgemäßes urbanes Flair, während sie von einem pulsierenden Kreativquartier mit vielfältigem Nutzungsmix umgeben ist. Mieter profitieren von der besonderen Atmosphäre, die dieses denkmalgeschützte Ensemble bietet, und werden von der dynamischen Energie der Umgebung inspiriert. Dank seiner ausgezeichneten Verkehrsanbindung und der zentralen Lage präsentiert sich das Objekt als ein erstklassiger Standort für anspruchsvolle Unternehmen, die Wert auf Exklusivität und Inspiration legen.
- Flughafen, Berlin Brandenburg, Fahrzeit: 40 min
- Bundesautobahn, A 100, Fahrzeit: 15 min
- Bundesstraße, B 96, Fahrzeit: 7 min
- U-Bahn, Moritzplatz, Linie U8, Gehzeit: 10 min
- Bus, Waldemarstr./Adalbertstr., Linie 140, Gehzeit: 1 min
Ihr Kontakt

Alexandra Teich
Ihr Kontakt
Marktinformationen
Mietmarkt
Kreuzberg, Berlin
Gew. Ø-Miete
18 € / m²
siehe 98 passende MietobjekteErfahren Sie mehr* Durchschnittspreis auf Grundlage historischer Transaktionen.







