
Büros
ID B2811Provisionsfrei
Büroimmobilie - Berlin, Kreuzberg - B2811
Kreuzberg, 10999, Berlin, Berlin
14 € / m²
- Fläche417 m²
- VerfügbarkeitSofort
- Objekt
- Ausstattung
- Lage und Verkehrsanbindung
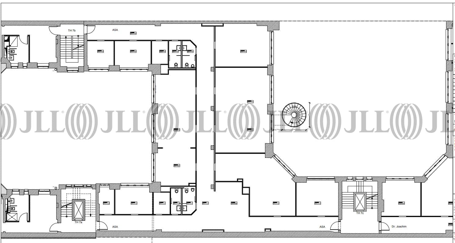
- Grundriss
- Exposé herunterladen
- Ihr Kontakt
- Anfrage senden
Objekt
Großzügige, helle Gewerbefläche, die im ruhigen Innenhof eines sanierten, denkmalsgeschützten Gewerbehofes von 1908 liegt. Das Gesamtobjekt zeichnet sich durch eine Mischung aus Wohnen und diversen Dienstleistern aus.
Zertifizierungen
Energieausweis
Für diese Liegenschaft liegt ein Bedarfsausweis vom 29.04.2016 vom Eigentümer/Vermieter vor. Die wesentlichen Energieträger der Liegenschaft sind Erdgas schwer, Strom. Endenergiebedarf: 254 kWh/(m²*a)Verfügbare Fläche
Lage und Verkehrsanbindung
Das Objekt befindet sich in dem Berliner Stadtteil Kreuzberg in unmittelbarer Umgebung zum Checkpoint Charlie und direkt am beliebten Landwehrkanal. Die Anbindung an das öffentliche Nahverkehrsnetz ist sehr gut.
- Flughafen, Berlin Brandenburg, Fahrzeit: 30 min
- Bundesstraße, B 96, Fahrzeit: 10 min
- Bus, Glogauer Straße, Linie M29, Gehzeit: 2 min
- U-Bahn, Görlitzer Bahnhof, Linien U1, U3, Gehzeit: 5 min
- S-Bahn, Hermannstraße, Linien S9, S41, S42, Gehzeit: 5 min
Ihr Kontakt

Alexandra Teich
Ihr Kontakt
Marktinformationen
Mietmarkt
Kreuzberg, Berlin
Gew. Ø-Miete
14 € / m²
siehe 98 passende MietobjekteErfahren Sie mehr* Durchschnittspreis auf Grundlage historischer Transaktionen.