Büros
ID B2785Provisionsfrei
Aktualisiert
Büroimmobilie - Berlin, Kreuzberg - B2785
Kreuzberg, 10963, Berlin, Berlin
29,50 € / m²
- Fläche284 - 4.159 m²
- VerfügbarkeitI quartal 2026
- Objekt
- Ausstattung
- Lage und Verkehrsanbindung
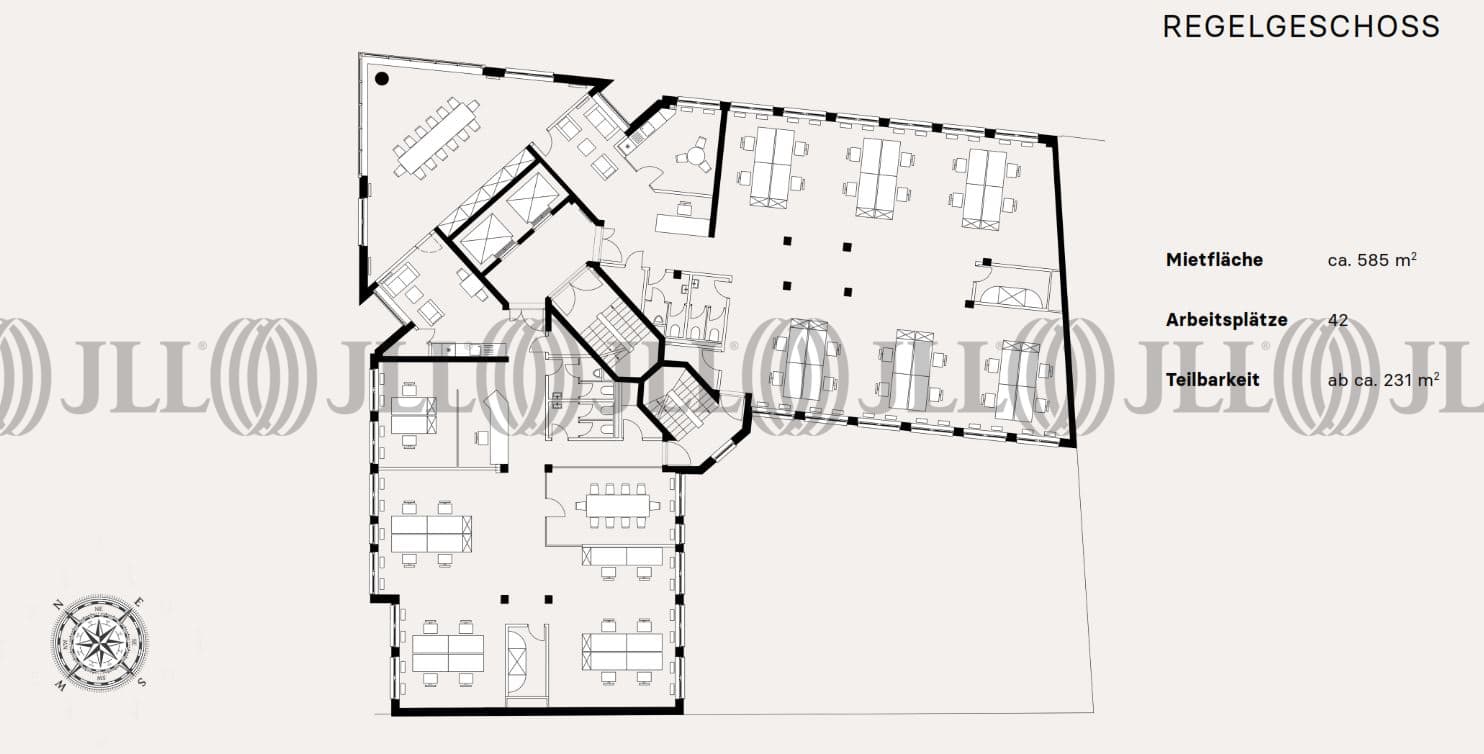
- Grundrisse
- Exposé herunterladen
- Ihr Kontakt
- Anfrage senden
Objekt
Die neue, zeitlose Farbgestaltung der Fassade und modernste Technik im Inneren bilden die Grundlage für dieses nachhaltige Gebäude der besonderen Art.
Mit einer Höhe von rund 23 Metern erwächst The Flagship in unmittelbarer Nähe zur Eventlocation STATION Berlin und dem Park am Gleisdreieck.
Das siebengeschossige Gebäude wird nach abgeschlossener Modernisierung modernste Büroflächen beherbergen, die vielfältige Raumkonfigurationen ermöglichen und die individuellen Bedürfnisse der Nutzer berücksichtigen.
Mit einer Höhe von rund 23 Metern erwächst The Flagship in unmittelbarer Nähe zur Eventlocation STATION Berlin und dem Park am Gleisdreieck.
Das siebengeschossige Gebäude wird nach abgeschlossener Modernisierung modernste Büroflächen beherbergen, die vielfältige Raumkonfigurationen ermöglichen und die individuellen Bedürfnisse der Nutzer berücksichtigen.
Zertifizierungen
Energieausweis
BREEAM: Very goodVerfügbare Fläche
Lage und Verkehrsanbindung
Das am Landwehrkanal gelegene Objekt befindet sich ca. 500 m vom Potsdamer Platz entfernt sowie direkt in dessen Sichtachse. Der Park am Gleisdreieck ist in wenigen Minuten erreichbar und bietet vielfältige Freizeit- und Erholungsmöglichkeiten. Die Anbindung an den öffentlichen Nahverkehr ist ausgezeichnet. Innerhalb von 3 Minuten sind die U-Bahnhöfe Mendelssohn-Bartholdy-Park sowie Gleisdreieck (U2/U1) zu erreichen und in ca.10 Minuten der S-Bahnhof Anhalter Bahnhof.
- Flughafen, Berlin Brandenburg, Fahrzeit: 25 min
- Hauptbahnhof, Berlin, Fahrzeit: 7 min
- S-Bahn, Potsdamer Platz, Linie S1, S2, S25, Fahrzeit: 4 min
- Bundesautobahn, A 100, Fahrzeit: 20 min
- Bundesstraße, B 1, Fahrzeit: 10 min
Ihr Kontakt

Steve Ritt
Ihr Kontakt
Marktinformationen
Mietmarkt
Kreuzberg, Berlin
Gew. Ø-Miete
29,50 € / m²
siehe 92 passende MietobjekteErfahren Sie mehr* Durchschnittspreis auf Grundlage historischer Transaktionen.



