Büros
ID B2712Provisionsfrei
Aktualisiert
Büroimmobilie - Berlin, Kreuzberg - B2712
Kreuzberg, 10967, Berlin, Berlin
21,90 € / m²
- Fläche337 - 2.637 m²
- VerfügbarkeitSofort
- Ausstattung
- Lage und Verkehrsanbindung
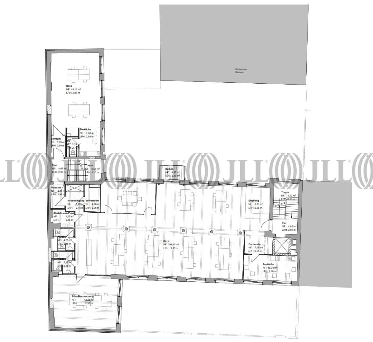
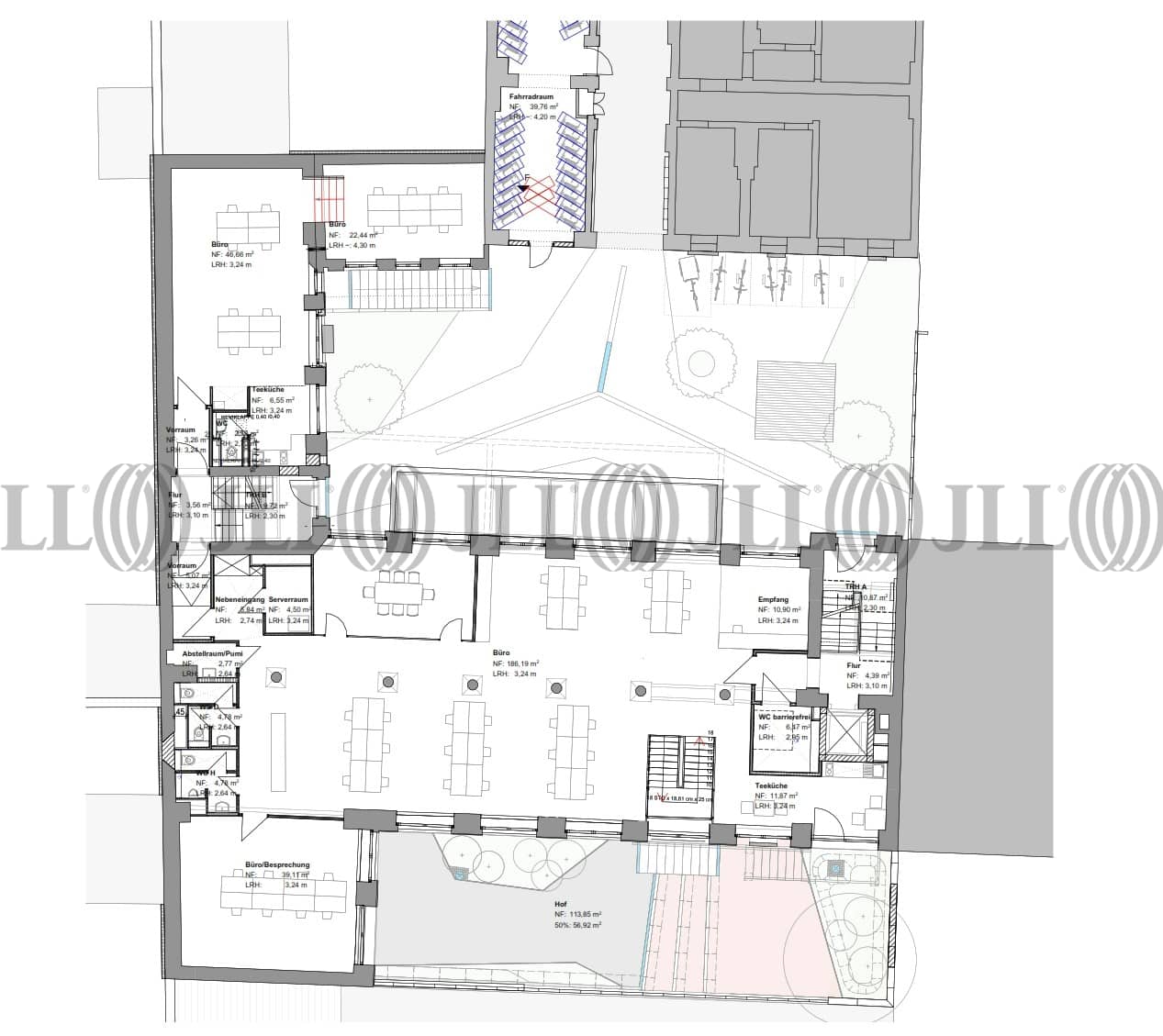
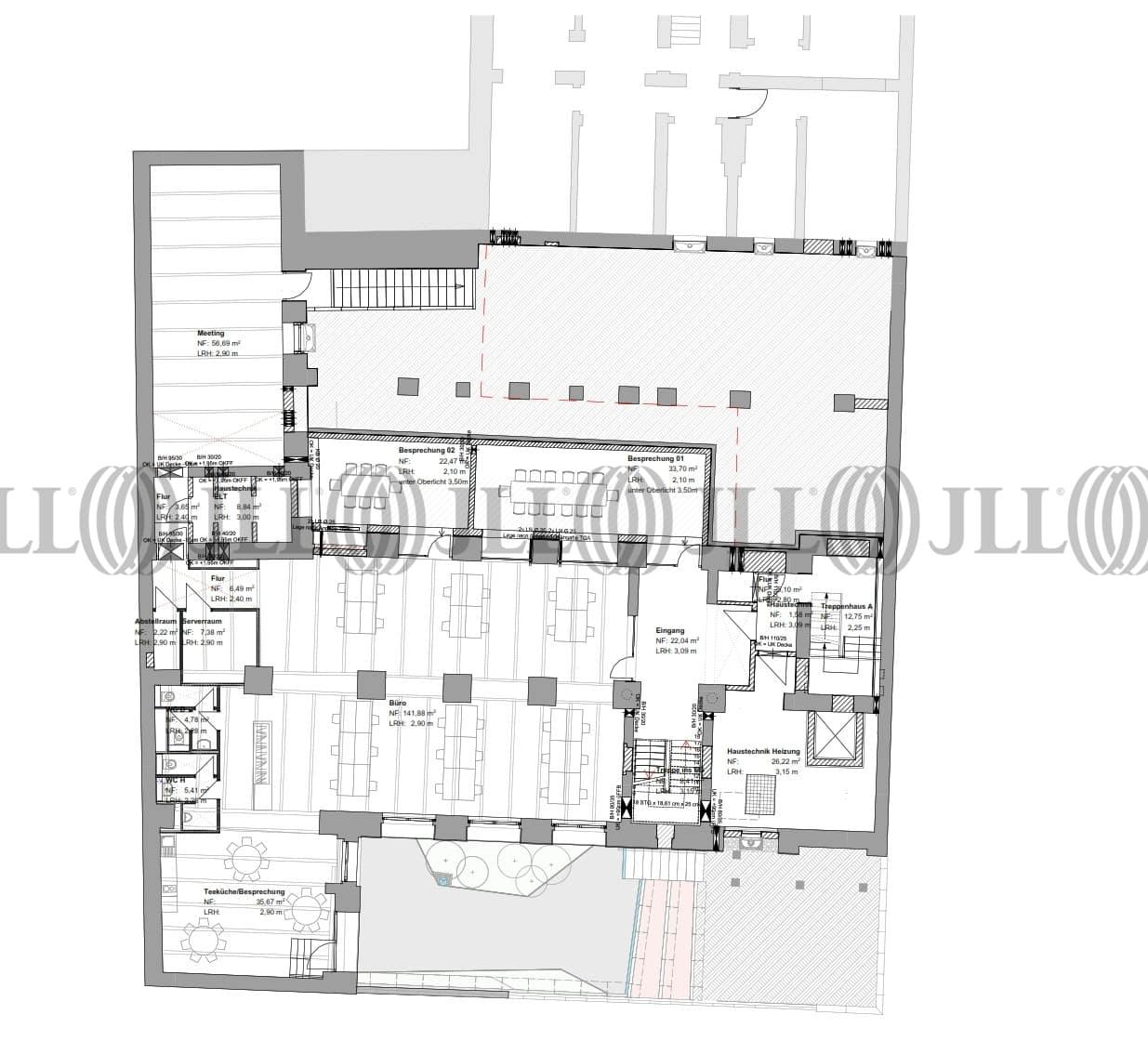
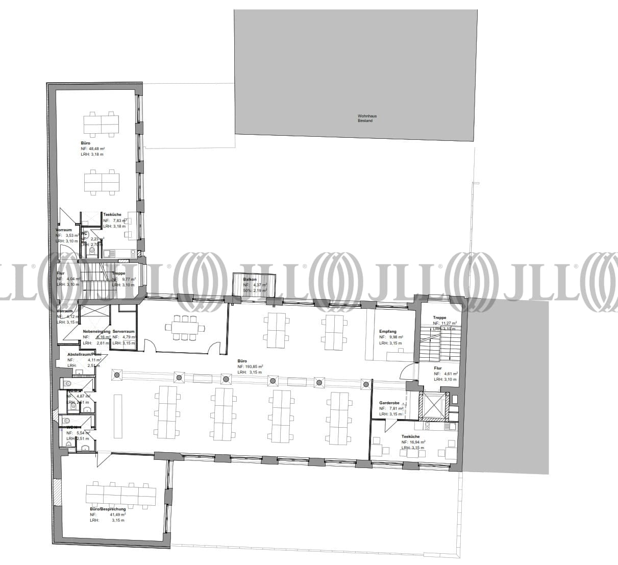
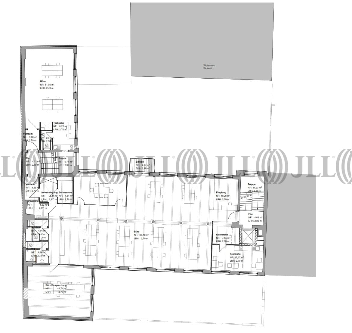
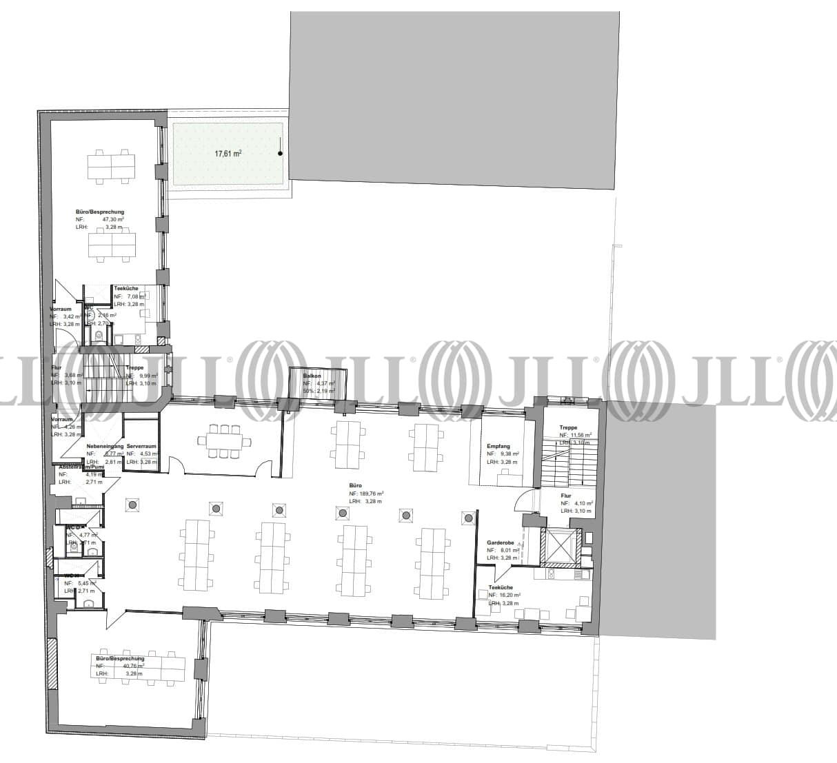
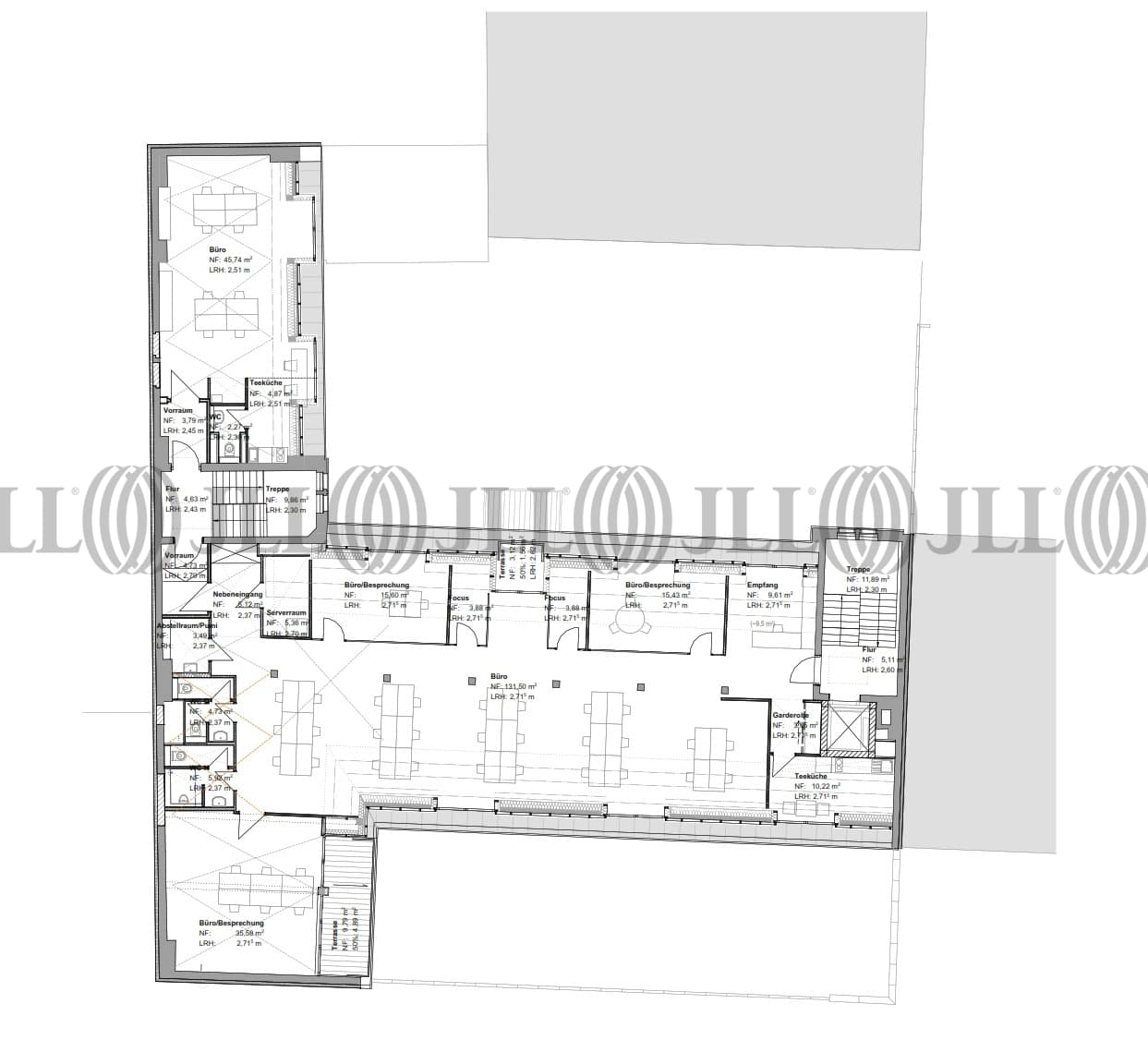
- Grundrisse
- Exposé herunterladen
- Ihr Kontakt
- Anfrage senden
Verfügbare Fläche
Lage und Verkehrsanbindung
Der charmante Altbau liegt im Herzen des beliebten Gräfekiezes in Berlin Neukölln und bietet eine erstklassige Lage, nur wenige Gehminuten vom lebendigen Hermannplatz entfernt.
- Flughafen, Berlin Brandenburg, Fahrzeit: 30 min
- Bundesautobahn, A 100, Fahrzeit: 10 min
- Bundesstraße, B 96 a, Fahrzeit: 10 min
- Bus, U Hermannplatz/Urbanstr.; Linien M29, M41, Gehzeit: 2 min
- U-Bahn, Hermannplatz; Linien U7, U8, Gehzeit: 4 min
- Hauptbahnhof, Berlin, Fahrzeit: 20 min
Ihr Kontakt

Chiara Costa Jacinto
Ihr Kontakt
Marktinformationen
Mietmarkt
Kreuzberg, Berlin
Gew. Ø-Miete
21,90 € / m²
siehe 98 passende MietobjekteErfahren Sie mehr* Durchschnittspreis auf Grundlage historischer Transaktionen.













