Büros
ID B2701Provisionsfrei
Büroimmobilie - Berlin, Kreuzberg - B2701
Kreuzberg, 10969, Berlin, Berlin
29 € - 35 € / m²
- Fläche241 - 1.206 m²
- VerfügbarkeitSofort
- Objekt
- Ausstattung
- Lage und Verkehrsanbindung
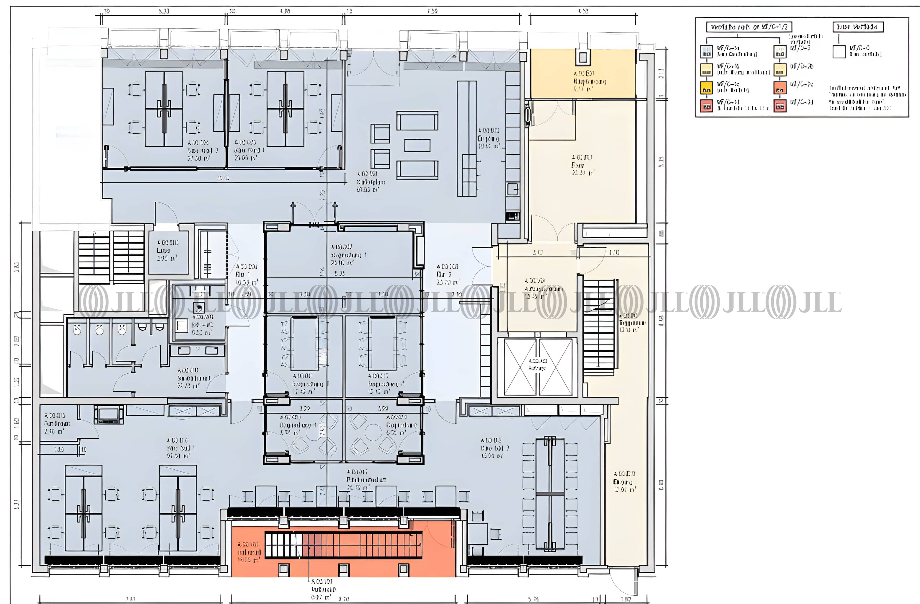
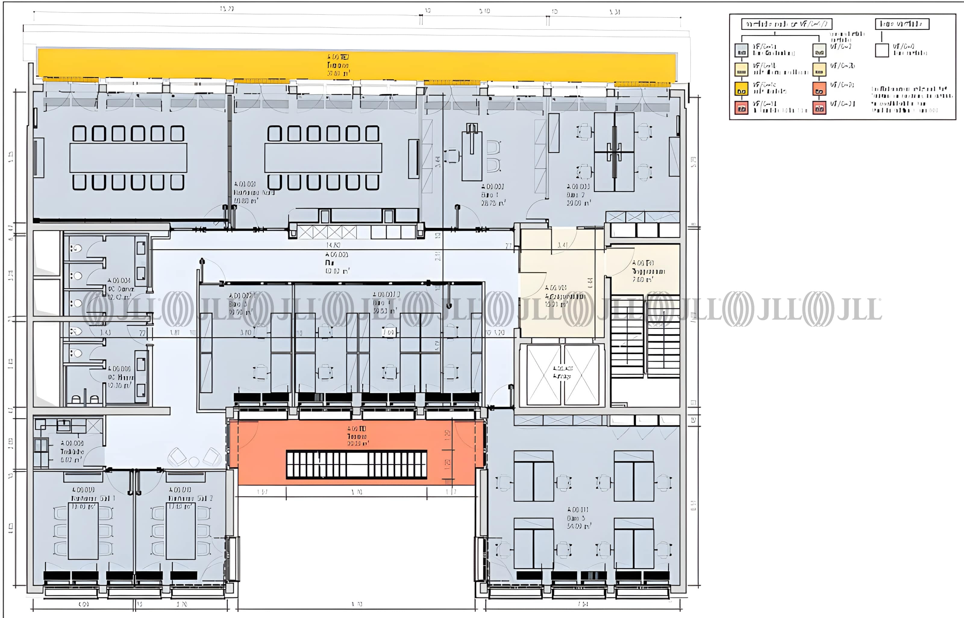
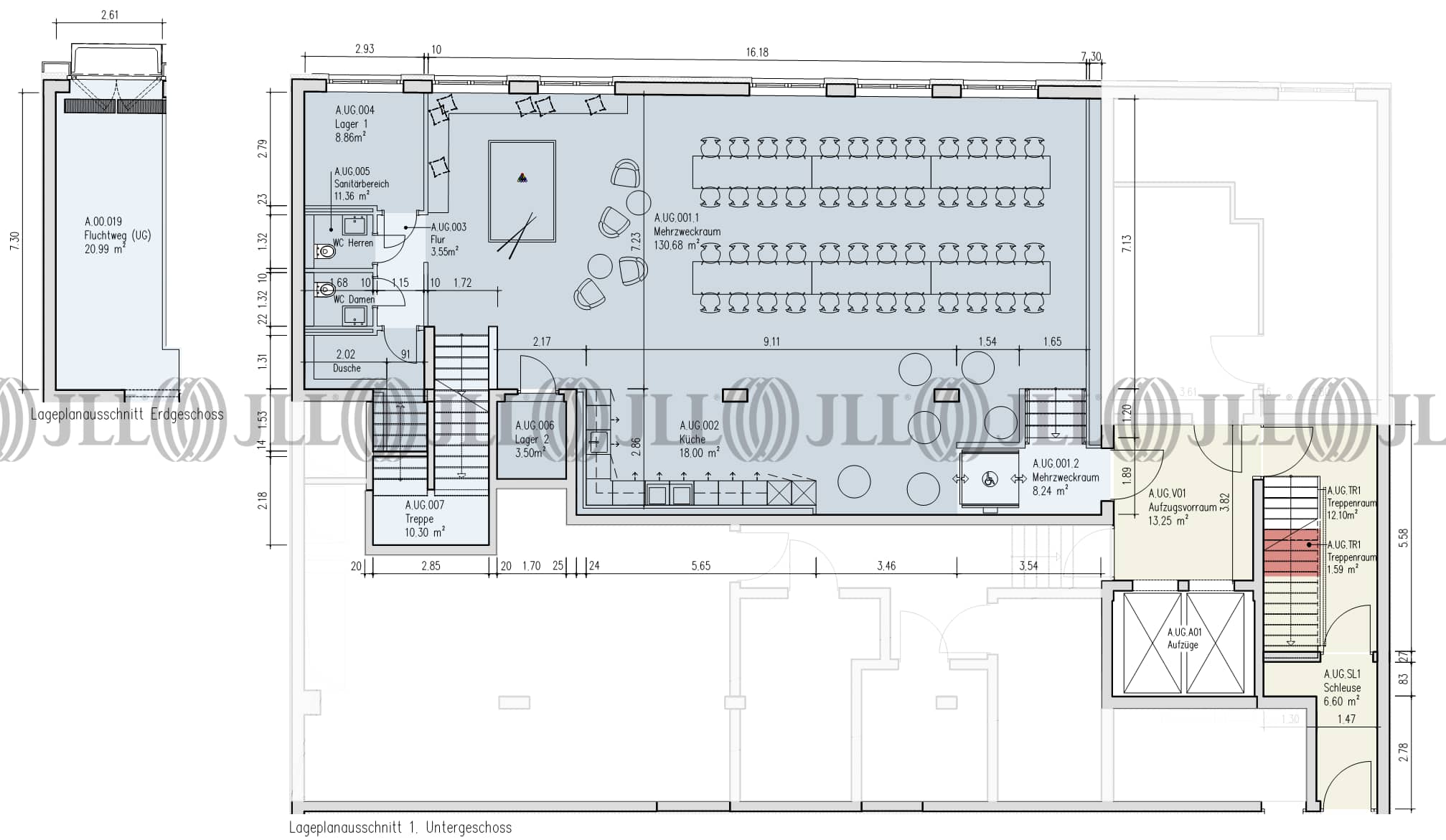
- Grundrisse
- Exposé herunterladen
- Ihr Kontakt
- Anfrage senden
Objekt
Der siebenstöckige Neubau beeindruckt mit einer Tiefgarage, zwei modernen Aufzügen und einer großzügigen Dachterrasse, die einen spektakulären Ausblick bietet. Diese Immobilie erfüllt höchste Ansprüche an Büroflächen und setzt Maßstäbe in Sachen Komfort und Funktionalität.
Zertifizierungen
Energieausweis
Für diese Liegenschaft liegt ein Bedarfsausweis vom 22.01.2019 vom Eigentümer/Vermieter vor. Die wesentlichen Energieträger der Liegenschaft sind Fernwärme, Nahwärme, Strom. Der Endenergiebedarf Strom beträgt 20 kWh/(m²*a). Der Endenergiebedarf Wärme beträgt 58 kWh/(m²*a).Verfügbare Fläche
Lage und Verkehrsanbindung
Das Objekt liegt im Bezirk Berlin Mitte in zentraler Lage unweit vom Checkpoint Charlie und ist über die U-Bahnstationen Kochstraße und Stadtmitte verkehrsgünstig an die U-Bahnlinien U6 und U2 sowie an den Bus M29 angebunden.
- Flughafen, Berlin Brandenburg, Fahrzeit: 30 min
- Bundesautobahn, A 100, Fahrzeit: 10 min
- Bundesautobahn, A 113, Fahrzeit: 20 min
- Bundesautobahn, A 103, Fahrzeit: 15 min
- Bundesstraße, B 1, Fahrzeit: 2 min
- Bus, Kochstraße, Linie M29, Gehzeit: 2 min
- Hauptbahnhof, Berlin, Fahrzeit: 10 min
- U-Bahn, Kochstraße, Linie U2, Gehzeit: 2 min
Ihr Kontakt

Alexandra Teich
Ihr Kontakt
Marktinformationen
Mietmarkt
Kreuzberg, Berlin
Gew. Ø-Miete
29 € - 35 € / m²
siehe 98 passende MietobjekteErfahren Sie mehr* Durchschnittspreis auf Grundlage historischer Transaktionen.







