Büros
ID B2530Provisionsfrei
Büroimmobilie - Berlin, Kreuzberg - B2530
Kreuzberg, 10969, Berlin, Berlin
27 € / m²
- Fläche846 - 4.303 m²
- VerfügbarkeitSofort
- Objekt
- Ausstattung
- Lage und Verkehrsanbindung
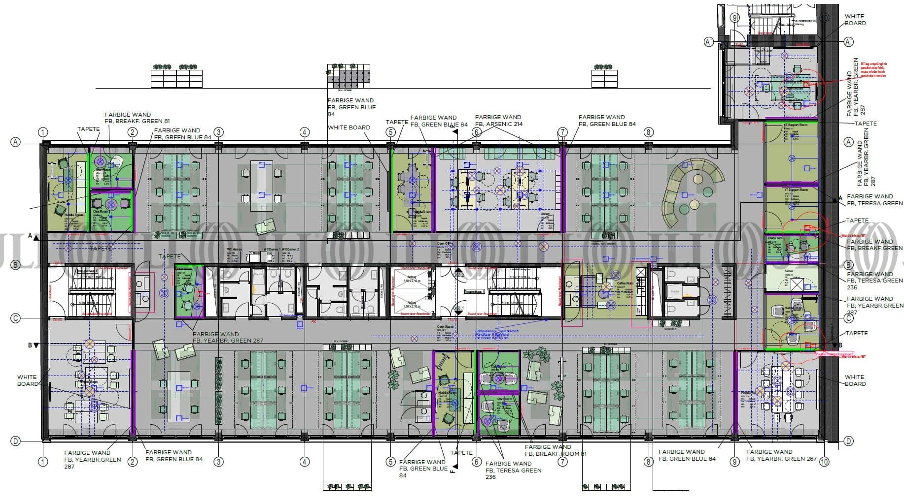
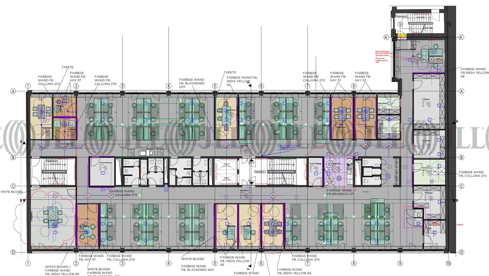
- Grundrisse
- Exposé herunterladen
- Ihr Kontakt
- Anfrage senden
Objekt
Innerhalb dieses markanten Gebäudeensembles, das historischen Industriecharme mit zeitgenössischer Architektur vereint, bietet sich die exklusive Möglichkeit, voll möblierte Büroflächen im Rahmen einer Untervermietung zu beziehen. Diese Flächen zeichnen sich durch einen außergewöhnlich hohen und designorientierten Ausbaustandard aus und ermöglichen ein sofort bezugsfertiges Arbeitsumfeld auf Premium-Niveau. Die Kombination aus dem inspirierenden Loft-Charakter des sanierten Altbaus und der modernen Effizienz des Neubaus schafft eine repräsentative Adresse für Unternehmen, die höchste Ansprüche an Ästhetik, Flexibilität und eine erstklassige Ausstattung stellen.
Um unterschiedlichen Flächenbedürfnissen gerecht zu werden, bieten die Flächen flexible Anmietmodelle. Für Unternehmen, die eine flexible und überschaubare Lösung suchen, besteht die Möglichkeit der individuellen Anmietung einzelner Etagen mit einer Laufzeit von 2 Jahren. Für Unternehmen mit einem größeren Flächenbedarf und dem Wunsch nach langfristiger Planungssicherheit wird alternativ die zusammenhängende Anmietung von mindestens 3 Etagen mit einer Vertragslaufzeit von 5 Jahren, mit der zusätzlichen Möglichkeit einer Verlängerung bis zum Ende des Hauptmietvertrages, angeboten. Eine Besonderheit hierbei ist das attraktive 5. OG, das exklusiv als Teil dieses größeren Flächenpakets – also in Verbindung mit mindestens zwei weiteren Etagen – zur Verfügung steht.
Um unterschiedlichen Flächenbedürfnissen gerecht zu werden, bieten die Flächen flexible Anmietmodelle. Für Unternehmen, die eine flexible und überschaubare Lösung suchen, besteht die Möglichkeit der individuellen Anmietung einzelner Etagen mit einer Laufzeit von 2 Jahren. Für Unternehmen mit einem größeren Flächenbedarf und dem Wunsch nach langfristiger Planungssicherheit wird alternativ die zusammenhängende Anmietung von mindestens 3 Etagen mit einer Vertragslaufzeit von 5 Jahren, mit der zusätzlichen Möglichkeit einer Verlängerung bis zum Ende des Hauptmietvertrages, angeboten. Eine Besonderheit hierbei ist das attraktive 5. OG, das exklusiv als Teil dieses größeren Flächenpakets – also in Verbindung mit mindestens zwei weiteren Etagen – zur Verfügung steht.
Verfügbare Fläche
Lage und Verkehrsanbindung
Die Immobilie befindet sich in einer der dynamischsten und begehrtesten Adressen Berlins, mitten im pulsierenden Herzen des kreativen Bezirks Kreuzberg. Diese außergewöhnliche Lage ist ein Schmelztiegel aus renommierten Medienhäusern, zukunftsweisenden Start-ups und inspirierenden kulturellen Einrichtungen, was sie zu einem Brennpunkt der Digital- und Kreativwirtschaft erhebt. Die Umgebung besticht durch eine exzellente Infrastruktur mit einer Fülle an erstklassigen Restaurants, charmanten Cafés und vielseitigen Einkaufsmöglichkeiten, die alle bequem zu Fuß erreichbar sind. Die öffentliche Verkehrsanbindung ist hervorragend ausgeprägt, mit mehreren U-Bahn-Linien nur wenige Schritte entfernt, was eine schnelle und mühelose Erreichbarkeit aus allen Teilen Berlins sicherstellt. Diese Immobilie bietet nicht nur eine unvergleichliche geografische Lage, sondern auch eine inspirierende Atmosphäre für Visionäre und Kreative.
- Hauptbahnhof, Berlin, Fahrzeit: 15 min
- U-Bahn, Moritzplatz; Linie U8, Gehzeit: 4 min
- Bus, Prinzenstr./ Ritterstr. ; Linie 140, Gehzeit: 2 min
- Bundesautobahn, A 100, Fahrzeit: 17 min
- Flughafen, Berlin Brandenburg, Fahrzeit: 35 min
Ihr Kontakt

Sophie Schröter
Ihr Kontakt
Marktinformationen
Mietmarkt
Kreuzberg, Berlin
Gew. Ø-Miete
27 € / m²
siehe 101 passende MietobjekteErfahren Sie mehr* Durchschnittspreis auf Grundlage historischer Transaktionen.






















