Büros
ID B2529Provisionsfrei
Büroimmobilie - Berlin, Kreuzberg - B2529
Kreuzberg, 10997, Berlin, Berlin
Kontaktieren Sie uns für den Preis
- Fläche498 - 17.245 m²
- VerfügbarkeitSofort
- Objekt
- Ausstattung
- Lage und Verkehrsanbindung
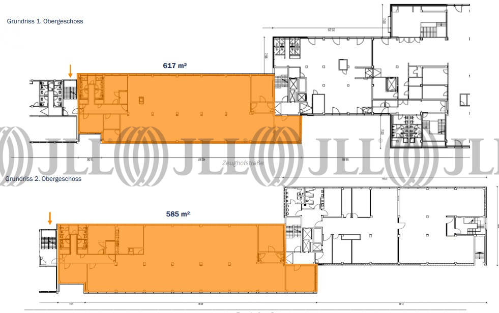
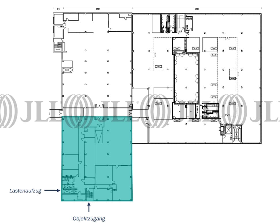
- Grundrisse
- Exposé herunterladen
- Ihr Kontakt
- Anfrage senden
Objekt
Das Gewerbeensemble besteht aus zwölf Gebäudeteilen mit einer vermietbaren Fläche von insgesamt ca. 54.100 m². 45 Prozent davon stehen als Hallen-, Produktions- und Lagerfläche zur Verfügung und 55 Prozent dienen als Büroflächen. Die rund um die Uhr bewachte Liegenschaft kann über zwei Einfahrten angefahren werden.
Nach Baustart 1958 wurde das Gewerbeareal sukzessive bis 1982 erweitert und seither mehrmals renoviert. Zwischen 2014 und 2018 wurde auf dem Areal ein neues Gesamtkonzept umgesetzt, wodurch die Aufenthaltsqualität um ein Vielfaches verbessert werden konnte. Unter anderem wurden Treppenhäuser, Fassaden und Dächer erneuert, die Stellplätze und die Wärmeversorgung optimiert sowie ein neues, einheitliches Gebäudeleitsystem installiert.
Der Großteil der Büroflächen wurde im Jahr 2023 saniert.
Grundsätzlich wäre die Vermietung an einen Gesamtnutzer wünschenswert. Eine Trennung der Mietflächen wäre aber auch etagenweise möglich.
Nach Baustart 1958 wurde das Gewerbeareal sukzessive bis 1982 erweitert und seither mehrmals renoviert. Zwischen 2014 und 2018 wurde auf dem Areal ein neues Gesamtkonzept umgesetzt, wodurch die Aufenthaltsqualität um ein Vielfaches verbessert werden konnte. Unter anderem wurden Treppenhäuser, Fassaden und Dächer erneuert, die Stellplätze und die Wärmeversorgung optimiert sowie ein neues, einheitliches Gebäudeleitsystem installiert.
Der Großteil der Büroflächen wurde im Jahr 2023 saniert.
Grundsätzlich wäre die Vermietung an einen Gesamtnutzer wünschenswert. Eine Trennung der Mietflächen wäre aber auch etagenweise möglich.
Zertifizierungen
Energieausweis
Für diese Liegenschaft liegt ein Bedarfsausweis vom 27.05.2013 vom Eigentümer/Vermieter vor. Der wesentliche Energieträger der Liegenschaft ist Öl. Endenergiebedarf: 281.00000 kWh/(m²*a)Verfügbare Fläche
Lage und Verkehrsanbindung
Das Objekt befindet sich im Berliner Stadtbezirk Kreuzberg, unmittelbar an der Spree und unweit der East Side Gallery. Attraktive Restaurants sowie Szene-Cafés des Kreuzberger Kiezes prägen das unmittelbare Umfeld.
- Hauptbahnhof, Berlin, Fahrzeit: 19 min
- U-Bahn, Schlesisches Tor; Linie U1, U3, Gehzeit: 6 min
- Bus, Eisenbahnstraße; Llinien 165, 265, Gehzeit: 6 min
- Bundesautobahn, A 100, Fahrzeit: 20 min
- Bundesstraße, B 96 a, Fahrzeit: 4 min
- Flughafen, Berlin Brandenburg, Fahrzeit: 30 min
Ihr Kontakt

Tobias Rodewald
Ihr Kontakt
Marktinformationen
Mietmarkt
Kreuzberg, Berlin
siehe 101 passende MietobjekteErfahren Sie mehr
* Durchschnittspreis auf Grundlage historischer Transaktionen.










