Büros
ID B2460Provisionsfrei
Büroimmobilie - Potsdam, Babelsberg - B2460
Babelsberg, 14482, Potsdam, Brandenburg
12,50 € / m²
- Fläche428 - 871 m²
- VerfügbarkeitSofort
- Objekt
- Ausstattung
- Lage und Verkehrsanbindung
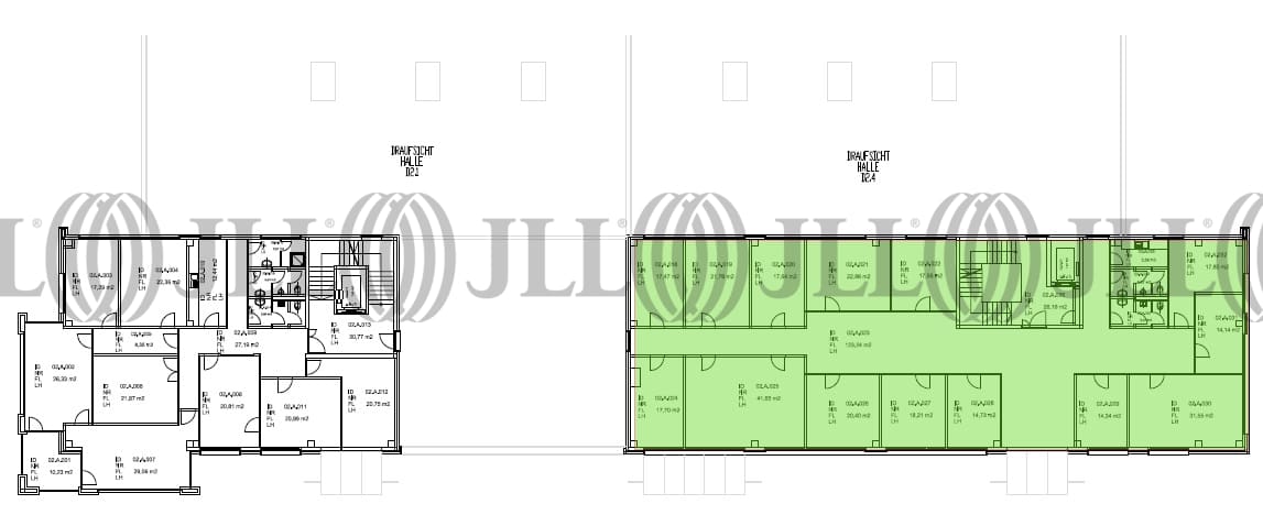
- Grundrisse
- Exposé herunterladen
- Ihr Kontakt
- Anfrage senden
Objekt
Der Gewerbekomplex besteht aus mehreren Gebäudeeinheiten, die flexible Büro-/ Service- und Hallenflächen bieten. Die Flächen verfügen über einen gehobenen Ausstattungsstandard.
Zertifizierungen
Energieausweis
Für diese Liegenschaft liegt ein Bedarfsausweis vom 2009-06-11 vom Eigentümer/Vermieter vor. Die wesentlichen Energieträger der Liegenschaft sind Erdgas schwer,Strom. Endenergiebedarf: 186.30000 kWh/(m²*a).Verfügbare Fläche
Lage und Verkehrsanbindung
Der Business Park befindet sich in Potsdam-Babelsberg, direkt gegenüber den Filmstudios. Die Potsdamer Innenstadt ist in wenigen Fahrminuten erreichbar. Über die Wetzlarer Straße und Nuthestraße ist eine direkte Anbindung zur Autobahn A 115 und somit nach Berlin gewährleistet.
- Flughafen, Berlin Brandenburg, Fahrzeit: 30 min
- Bundesautobahn, A 115, Fahrzeit: 7 min
- Bundesautobahn, A 10, Fahrzeit: 10 min
- Bus, Medienstadt Babelsberg; Linien 601, 619, 690, 696, Gehzeit: 5 min
- Bahnhof, Medienstadt Babelsberg; Linien RE7, RB37, Gehzeit: 5 min
Ihr Kontakt

Alexandra Teich
Ihr Kontakt

