Büros
ID B2371Provisionsfrei
Büroimmobilie - Potsdam, Westliche Vorstädte - B2371
Westliche Vorstädte, 14471, Potsdam, Brandenburg
Kontaktieren Sie uns für den Preis
- Fläche247 - 1.400 m²
- VerfügbarkeitSofort
- Objekt
- Ausstattung
- Lage und Verkehrsanbindung
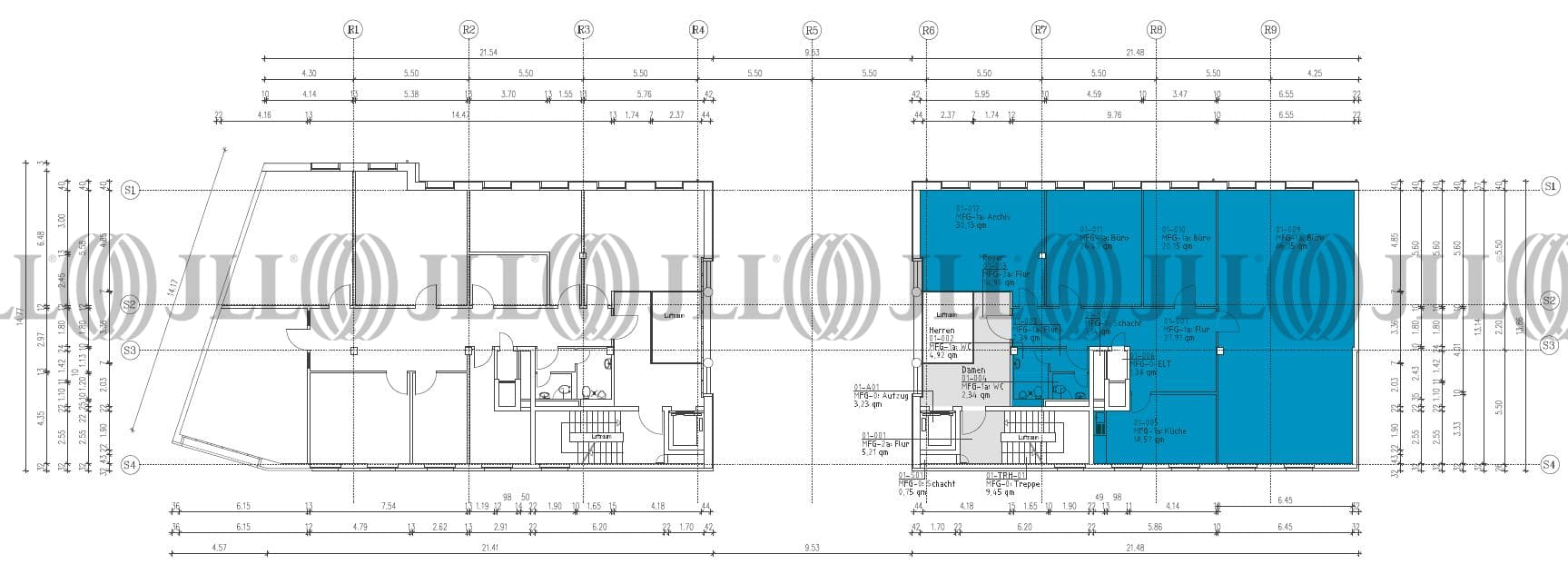
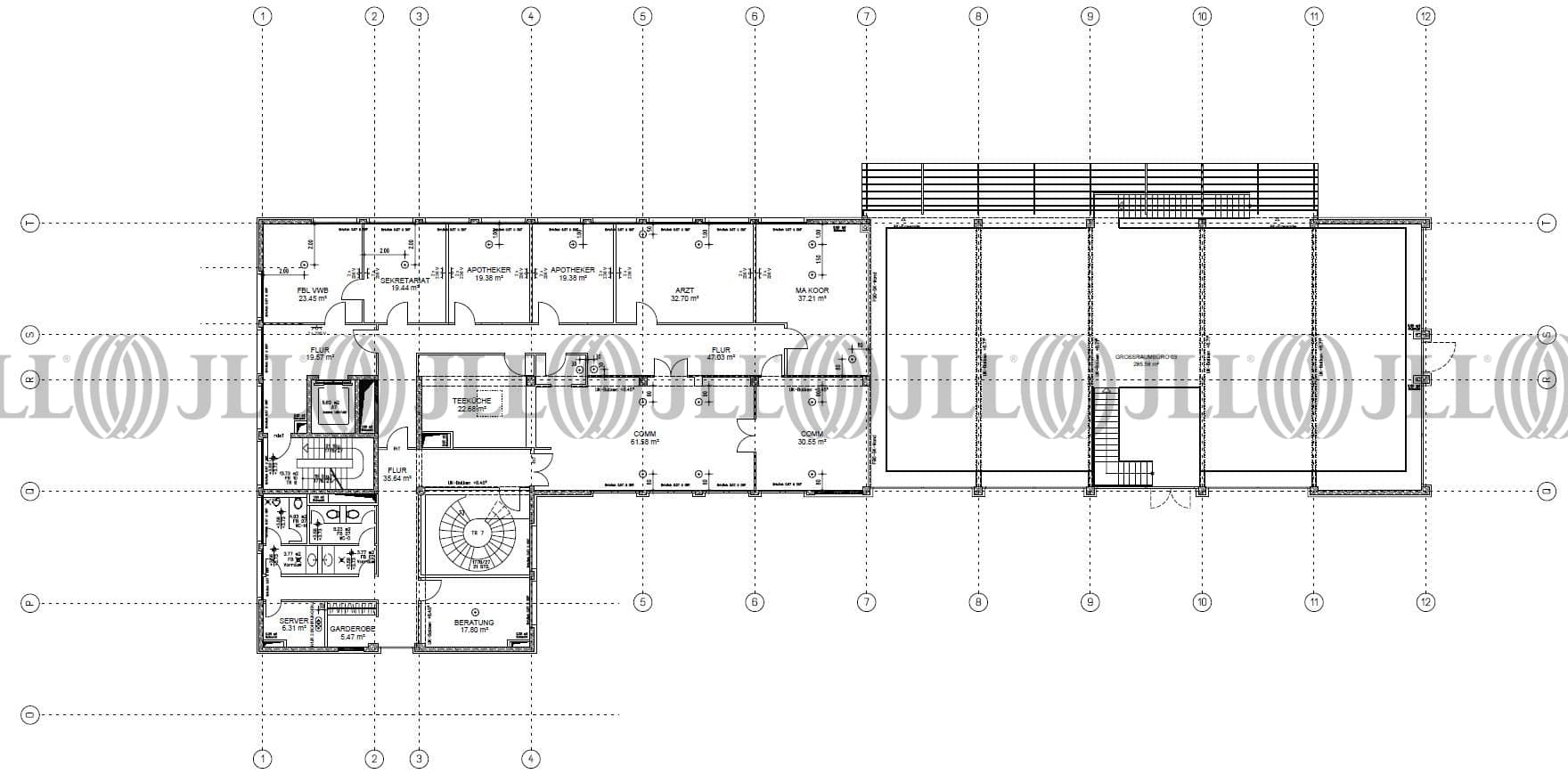
- Grundrisse
- Exposé herunterladen
- Ihr Kontakt
- Anfrage senden
Objekt
Es handelt sich hier um einen innerstädtischen Bürokomplex, der 1998 errichtet wurde. Das Ensemble verfügt über insgesamt fünf Gebäude.
Zertifizierungen
Energieausweis
Für diese Liegenschaft liegt ein Verbrauchsausweis vom 17.04.2024 vom Eigentümer/Vermieter vor. Die wesentlichen Energieträger der Liegenschaft sind Fernwärme, Heizwerk, fossil, KWK, Nahwärme. Der Endenergieverbrauch Strom beträgt 39 kWh/(m²*a). Der Endenergieverbrauch Wärme beträgt 117 kWh/(m²*a).Verfügbare Fläche
Lage und Verkehrsanbindung
- Hauptbahnhof, Berlin, Fahrzeit: 45 min
- Straßenbahn/Tram, Potsdam Charlottenhof; Linien 91, 94, 98, Gehzeit: 2 min
- Bus, Potsdam Charlottenhof; Linien 58, 605, 606, 610, 631, Gehzeit: 2 min
- Bundesautobahn, A 10, Fahrzeit: 20 min
- Bundesautobahn, A 9, Fahrzeit: 25 min
- Bundesautobahn, A 100, Fahrzeit: 30 min
- Flughafen, Berlin Brandenburg, Fahrzeit: 50 min
Ihr Kontakt

Steve Ritt
Ihr Kontakt















